Sceon + Berne says ..
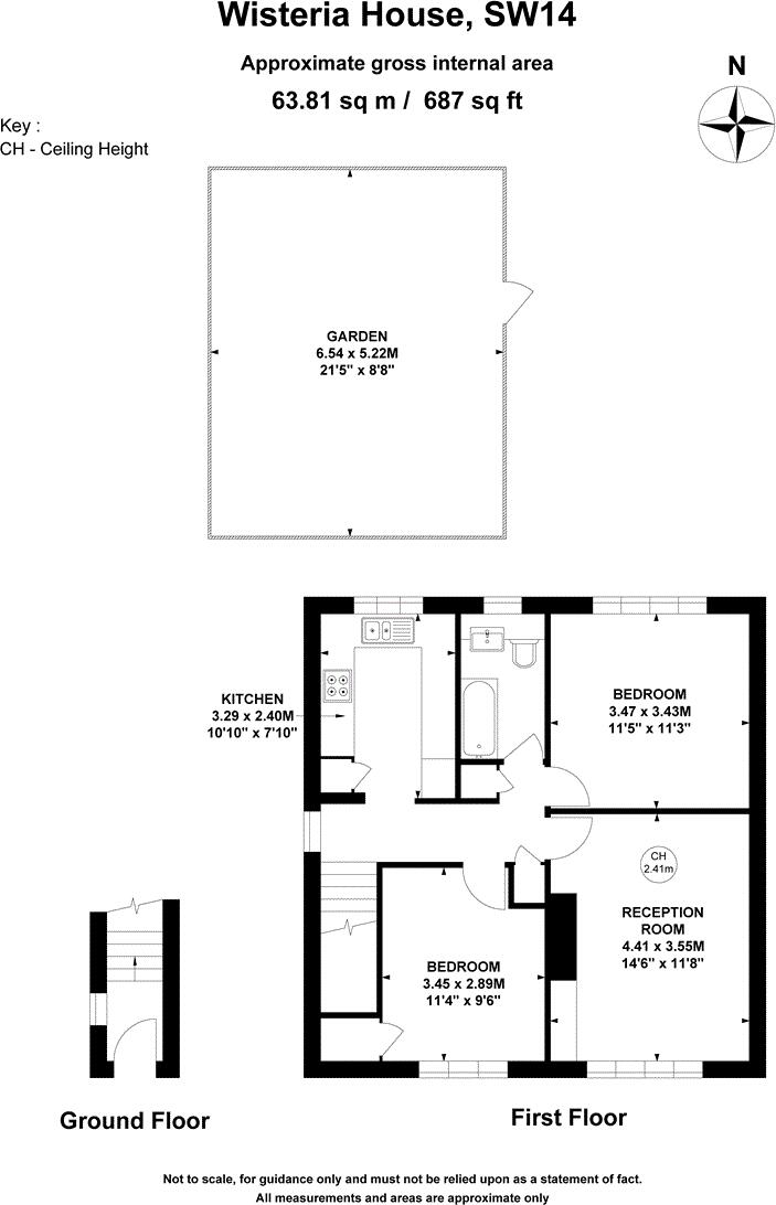
A first floor, two double bedroom maisonette with a long extended lease, private garden and no onward chain. The property features double glazing, wood flooring, good storage, own private entrance and light, airy living rooms. Vineyard Path is a popular and convenient location in the heart of SW14.
Property Oracle says ..
Therefore, we give this property 7 / 10. *Disclaimer: This is our option and does constitute a recommendation or financial advice. Do your own research. *
- Price
- 8
- Condition
- 7
- Location
- 8
- Land
- 6
- Bedrooms
- 2
- Bathrooms
- 1
- Sqft (est)
- 856.48
The heatmap indicates the level of crime in the area. The color of the heatmap indicates the crime severity and recency.
Metrics Year-on-Year
- Average area value
- 754,167.00 £Decreased by 18.85 %
- Est sale value
- 684,327.52 £Decreased by 21.67 %
- Average area rental value
- 3,542.00 £/moIncreased by 18.22 %
- Est letting value
- 2,569.44 £/moUnchanged by 0.00 %
- Est rental Yield
- 5.64 %Increased by 45.74 %
- Crime Rate
- 14.00 %Unchanged by 0.00 %
from 929,312.00 £
from 873,609.60 £
from 2,996.00 £/mo
from 2,569.44 £/mo
from 3.87 %
from 14.00 %
Agent Activity
Sceon + Berne created the listing.
Nearby Schools
| Name | Type | Ofsted | Distance |
|---|---|---|---|
| Thomson House School | Free Schools | Outstanding | 0.15 KM |
| St Mary Magdalen'S Catholic Primary School | Voluntary Aided School | Outstanding | 0.37 KM |
| Mortlake Hall Children'S Centre | Children's Centre Linked Site | 0.72 KM | |
| Tower House School | Other Independent School | 0.81 KM | |
| Richmond Park Academy | Academy Sponsor Led | Good | 0.99 KM |
Images
Nearby Streets
| Name | Average Price | Average Sqft | Distance |
|---|---|---|---|
| Sheengate Mansions Passage | £ 0 | 0 | 0.00 KM |
| Chestnut Mews | £ 0 | 0 | 0.00 KM |
| Park Avenue | £ 0 | 0 | 0.00 KM |
| Gordon Avenue | £ 0 | 0 | 0.00 KM |
| Firs Avenue | £ 0 | 0 | 0.00 KM |
Nearby Transport
| Name | NLC | TLC | Distance |
|---|---|---|---|
| Mortlake | 5600 | MTL | 0.25 KM |
| Chiswick | 5583 | CHK | 1.37 KM |
| Barnes Bridge | 5580 | BNI | 1.42 KM |
| Kew Gardens | 5594 | KWG | 2.38 KM |
| Barnes | 5551 | BNS | 2.55 KM |
Nearby Listings
| Address | Price | Type | Score | Distance |
|---|---|---|---|---|
| Vineyard Path, SW14 | £ 500,000 | BUY | 7 / 10 | 0.00 KM |
| Alder Road, Barnes | £ 650,000 | BUY | 7 / 10 | 0.01 KM |
| Vineyard Path, London, SW14 | £ 600,000 | BUY | Unknown | 0.05 KM |
| Alder Road, East Sheen, London, SW14 | £ 1,150,000 | BUY | 7 / 10 | 0.07 KM |
| Mortlake High Street, Mortlake Green | £ 1,180,000 | BUY | 7 / 10 | 0.08 KM |
Nearby Properties
| Address | Price | Distance |
|---|---|---|
| 43 Vineyard Path | £ 625,000 | 0.05 KM |
| 35 Vineyard Path | £ 640,000 | 0.05 KM |
| 37 Vineyard Path | £ 425,000 | 0.05 KM |
| 33 Vineyard Path | £ 381,000 | 0.05 KM |
| 6 Wrights Walk | £ 790,000 | 0.06 KM |