CU
Maple Croft, 14 Stapleton Close, Egham, TW20
By Curchods Estate Agents
£ 840,000
Reviews
3 out of 5 stars
Curchods Estate Agents says ..
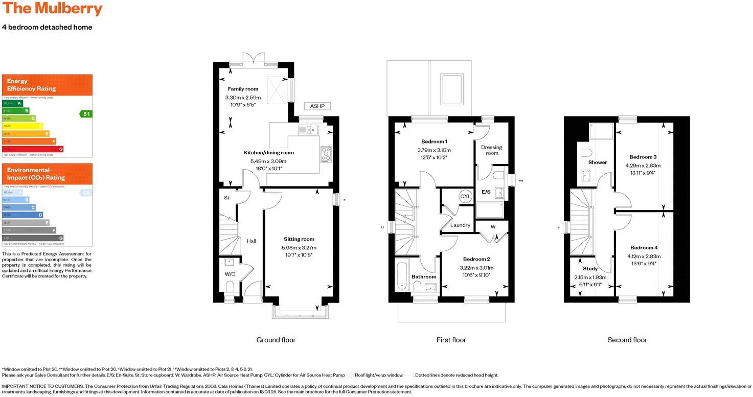
This beautifully crafted, four-bedroom detached home features high-quality specifications with a strong focus on sustainability. The real hub of the home is its stunning open-plan kitchen/dining area, equipped with cutting-edge technology. In addition, there is a separate sitting r...
Property Oracle says ..
Therefore, we give this property 6 / 10. *Disclaimer: This is our option and does constitute a recommendation or financial advice. Do your own research. *
- Price
- 4
- Condition
- 9
- Location
- 7
- Land
- 7
- Bedrooms
- 4
- Bathrooms
- 3
- Sqft (est)
- 1,016.22
The heatmap indicates the level of crime in the area. The color of the heatmap indicates the crime severity and recency.
Metrics Year-on-Year
- Average area value
- 518,161.00 £Decreased by 11.11 %
- Est sale value
- 507,093.78 £Increased by 19.09 %
- Average area rental value
- 1,618.00 £/moDecreased by 8.54 %
- Est letting value
- 1,016.22 £/moUnchanged by 0.00 %
- Est rental Yield
- 3.75 %Increased by 3.02 %
- Crime Rate
- 4.00 %Unchanged by 0.00 %
from 582,913.00 £
from 425,796.18 £
from 1,769.00 £/mo
from 1,016.22 £/mo
from 3.64 %
from 4.00 %
Agent Activity
Curchods Estate Agents created the listing.
Nearby Schools
| Name | Type | Ofsted | Distance |
|---|---|---|---|
| Manorcroft Primary School | Community School | Good | 0.86 KM |
| Thorpe Lea Primary School | Community School | Good | 1.38 KM |
| Hythe Primary School | Community School | Good | 1.61 KM |
| The Magna Carta School | Academy Converter | Good | 1.75 KM |
| The Haven Sure Start Children'S Centre | Children's Centre | 1.78 KM |
Images
Nearby Streets
| Name | Average Price | Average Sqft | Distance |
|---|---|---|---|
| Borrowdale Close | £ 665,000 | 0 | 0.00 KM |
| The Lea | £ 0 | 0 | 0.00 KM |
| De Ros Place | £ 0 | 0 | 0.00 KM |
| Pooley Green Close | £ 0 | 0 | 0.00 KM |
| Vicarage Crescent | £ 0 | 0 | 0.00 KM |
Nearby Transport
| Name | NLC | TLC | Distance |
|---|---|---|---|
| Egham | 5669 | EGH | 1.19 KM |
| Wraysbury | 5673 | WRY | 3.73 KM |
| Virginia Water | 5676 | VIR | 3.75 KM |
| Staines | 5670 | SNS | 3.86 KM |
| Chertsey | 5553 | CHY | 5.18 KM |
Nearby Listings
| Address | Price | Type | Score | Distance |
|---|---|---|---|---|
| Maple Croft, 14 Stapleton Close, Egham, TW20 | £ 630,000 | BUY | 6 / 10 | 0.00 KM |
| Maple Croft, 14 Stapleton Close, Egham, TW20 | £ 835,000 | BUY | 6 / 10 | 0.00 KM |
| Maple Croft, 14 Stapleton Close, Egham, TW20 | £ 635,000 | BUY | 7 / 10 | 0.00 KM |
| Maple Croft, 14 Stapleton Close, Egham, TW20 | £ 840,000 | BUY | 6 / 10 | 0.00 KM |
| Maple Croft, 14 Stapleton Close, Egham, TW20 | £ 675,000 | BUY | 7 / 10 | 0.00 KM |
Nearby Properties
| Address | Price | Distance |
|---|---|---|
| 19 Windermere Close | £ 245,000 | 0.08 KM |
| 30 Windermere Close | £ 315,000 | 0.08 KM |
| 24 Windermere Close | £ 265,000 | 0.08 KM |
| 31 Windermere Close | £ 172,000 | 0.08 KM |
| 29 Windermere Close | £ 315,000 | 0.08 KM |