Foxtons says ..
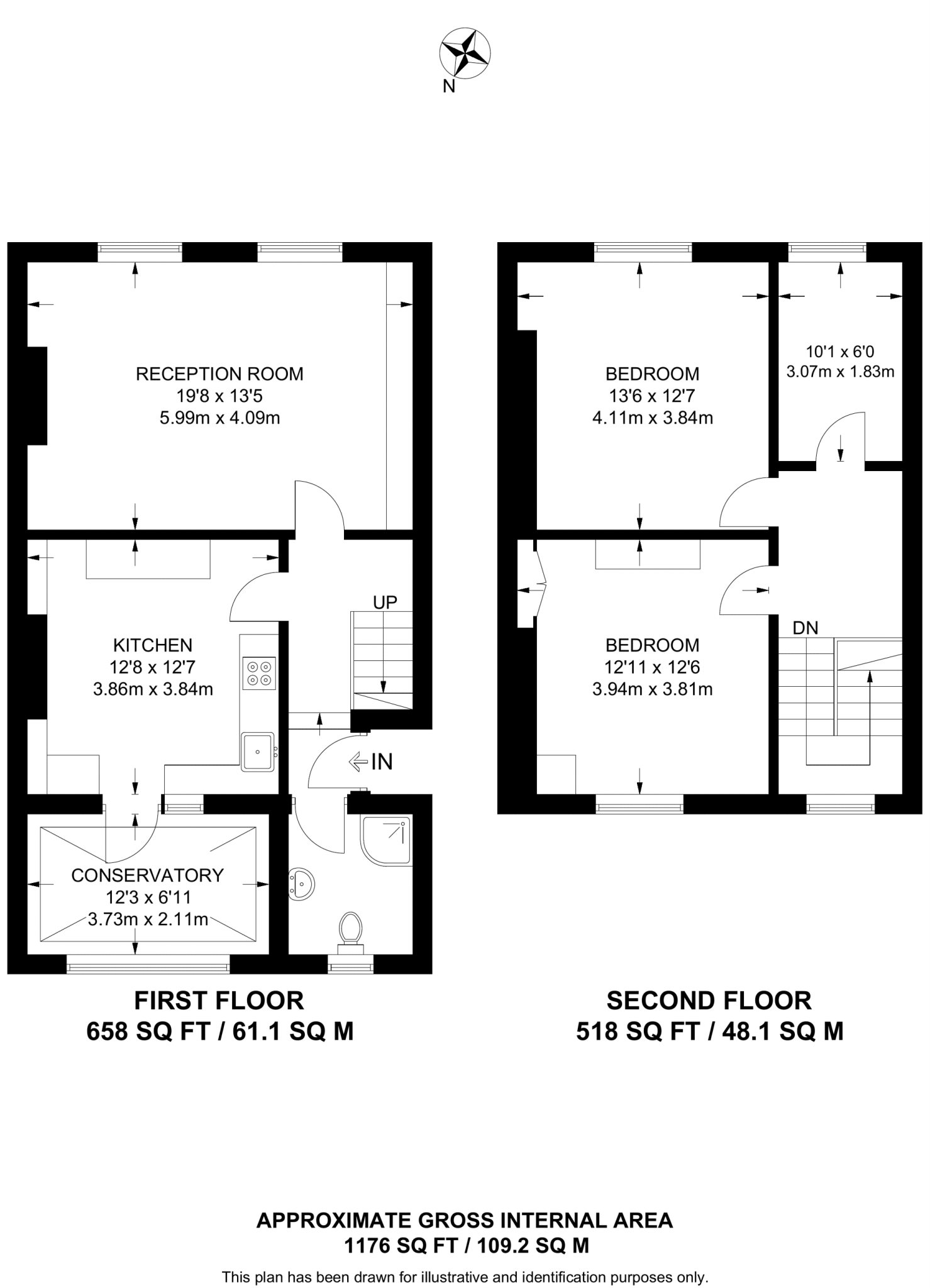
A charming 3 bedroom flat arranged over 2 floors of a period conversion boasting generously proportioned accommodation throughout, and an excellent location moments from Hackney Downs.
Property Oracle says ..
Therefore, we give this property 4 / 10. *Disclaimer: This is our option and does constitute a recommendation or financial advice. Do your own research. *
- Price
- 7
- Condition
- 3
- Location
- 8
- Land
- 1
- Bedrooms
- 3
- Bathrooms
- 1
- Sqft (est)
- 1,175.42
The heatmap indicates the level of crime in the area. The color of the heatmap indicates the crime severity and recency.
Metrics Year-on-Year
- Average area value
- 309,833.00 £Decreased by 53.44 %
- Est sale value
- 756,970.48 £Decreased by 7.87 %
- Average area rental value
- 2,396.00 £/moIncreased by 9.71 %
- Est letting value
- 4,701.68 £/moIncreased by 100.00 %
- Est rental Yield
- 9.28 %Increased by 135.53 %
- Crime Rate
- 5.00 %Unchanged by 0.00 %
from 665,458.00 £
from 821,618.58 £
from 2,184.00 £/mo
from 2,350.84 £/mo
from 3.94 %
from 5.00 %
Agent Activity
Foxtons created the listing.
Nearby Schools
| Name | Type | Ofsted | Distance |
|---|---|---|---|
| Baden-Powell School | Community School | Good | 0.19 KM |
| Nightingale Primary School | Community School | Good | 0.21 KM |
| Al-Falah Primary School | Other Independent School | Good | 0.29 KM |
| Stormont House School | Community Special School | Outstanding | 0.37 KM |
| The Brooke House Sixth Form College | Further Education | Good | 0.43 KM |
Images
Nearby Streets
| Name | Average Price | Average Sqft | Distance |
|---|---|---|---|
| Baron's Walk | £ 299,950 | 0 | 0.00 KM |
| Tilia Road | £ 425,000 | 0 | 0.00 KM |
| Maitland Place | £ 0 | 0 | 0.00 KM |
| Clarence Road | £ 0 | 0 | 0.00 KM |
| Tolsford Road | £ 0 | 0 | 0.00 KM |
Nearby Transport
| Name | NLC | TLC | Distance |
|---|---|---|---|
| Clapton | 6926 | CPT | 0.68 KM |
| Hackney Downs | 6867 | HAC | 0.83 KM |
| Hackney Central | 6977 | HKC | 0.98 KM |
| Rectory Road | 6967 | REC | 1.17 KM |
| London Fields | 6966 | LOF | 1.61 KM |
Nearby Listings
| Address | Price | Type | Score | Distance |
|---|---|---|---|---|
| Downs Road, Clapton, London, E5 | £ 725,000 | BUY | 4 / 10 | 0.00 KM |
| Downs Road, London | £ 450,000 | BUY | 7 / 10 | 0.04 KM |
| Downs Road, Hackney | £ 450,000 | BUY | 6 / 10 | 0.04 KM |
| Downs Road, London | £ 525,000 | BUY | Unknown | 0.04 KM |
| Queensdown Road, LONDON E5 | £ 650,000 | BUY | 6 / 10 | 0.05 KM |
Nearby Properties
| Address | Price | Distance |
|---|---|---|
| 91b Downs Road | £ 320,000 | 0.02 KM |
| 83c Downs Road | £ 577,000 | 0.02 KM |
| 83d Downs Road | £ 493,000 | 0.02 KM |
| 89b Downs Road | £ 475,000 | 0.02 KM |
| 79d Downs Road | £ 605,500 | 0.02 KM |