Barnes Kingsnorth says ..
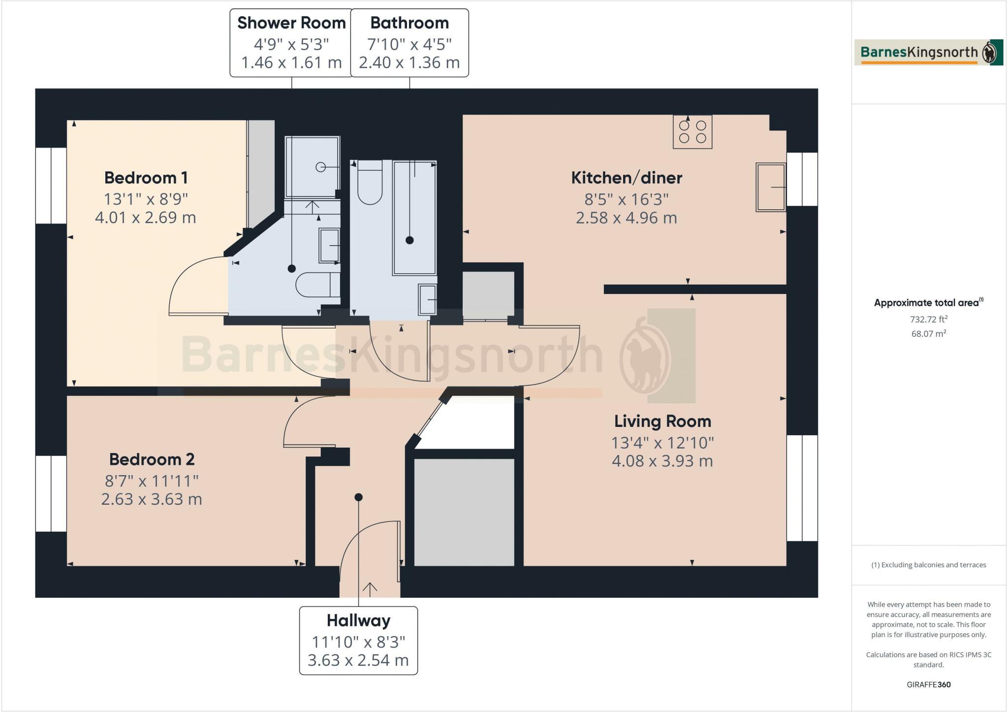
LOOKING TO DOWNSIZE? Then take a look at this spacious, second floor apartment in converted Brewery. Offered for the over 55's the property has two double bedrooms, bathroom, en-suite shower room, living room and a kitchen/diner. In addition there is allocated parking, lift and telephone entry ...
Property Oracle says ..
This two-bedroom apartment in Hadlow, Kent, presents a potentially appealing option for buyers seeking a retirement property or a smaller home in a convenient village setting. The location benefits from nearby primary and further education institutions and is within reasonable driving distance of several train stations. While the apartment is presented in generally good condition, aspects such as the kitchen and bathrooms could benefit from modernisation. The lack of significant private outdoor space, though typical for an apartment of this type, might be a limiting factor for some potential buyers. The price appears consistent with other nearby apartment listings, making it reasonably priced within its immediate market context. It is important to consider that, further details, such as the age of the property, building features, and details concerning service charges, might influence the overall assessment.
Therefore, we give this property 5 / 10. *Disclaimer: This is our option and does constitute a recommendation or financial advice. Do your own research. *
- Price
- 7
- Condition
- 6
- Location
- 7
- Land
- 2
- Bedrooms
- 2
- Bathrooms
- 2
- Sqft (est)
- 732.70
The heatmap indicates the level of crime in the area. The color of the heatmap indicates the crime severity and recency.
Metrics Year-on-Year
- Average area value
- 654,000.00 £Increased by 30.35 %
- Est sale value
- 402,252.30 £Increased by 23.09 %
- Average area rental value
- 2,739.00 £/moIncreased by 43.78 %
- Est letting value
- 1,465.40 £/moIncreased by 100.00 %
- Est rental Yield
- 5.03 %Increased by 10.31 %
- Crime Rate
- 52.00 %Unchanged by 0.00 %
Agent Activity
Barnes Kingsnorth created the listing.
Nearby Schools
| Name | Type | Ofsted | Distance |
|---|---|---|---|
| Hadlow Primary School | Community School | Good | 0.20 KM |
| Hadlow College | Further Education | Outstanding | 0.81 KM |
| Hadlow Rural Community School | Free Schools | Good | 0.82 KM |
| Capel Primary School | Community School | Good | 4.75 KM |
| Woodlands Primary School | Community School | Good | 4.76 KM |
Images
Nearby Streets
| Name | Average Price | Average Sqft | Distance |
|---|---|---|---|
| Dray Court | £ 0 | 0 | 0.00 KM |
| Brookfields | £ 350,500 | 0 | 0.00 KM |
| Water Slippe | £ 300,000 | 0 | 0.00 KM |
| Mill View | £ 0 | 0 | 0.00 KM |
| Common Road | £ 965,000 | 0 | 0.00 KM |
Nearby Transport
| Name | NLC | TLC | Distance |
|---|---|---|---|
| Paddock Wood | 5224 | PDW | 7.47 KM |
| Beltring | 5227 | BEG | 7.75 KM |
| Tonbridge | 5229 | TON | 8.04 KM |
| Borough Green And Wrotham | 5130 | BRG | 8.41 KM |
| Yalding | 5232 | YAL | 8.43 KM |
Nearby Listings
| Address | Price | Type | Score | Distance |
|---|---|---|---|---|
| Carpenters Lane, Hadlow | £ 265,000 | BUY | 5 / 10 | 0.00 KM |
| Carpenters Lane, Tonbridge | £ 179,950 | BUY | 6 / 10 | 0.00 KM |
| Carpenters Lane, Hadlow | £ 240,000 | BUY | 5 / 10 | 0.00 KM |
| Carpenters Lane, Hadlow | £ 265,000 | BUY | 5 / 10 | 0.00 KM |
| Hadlow | £ 195,000 | BUY | 6 / 10 | 0.00 KM |
Nearby Properties
| Address | Price | Distance |
|---|---|---|
| 30 Maltings Close | £ 391,000 | 0.07 KM |
| 38 Maltings Close | £ 242,000 | 0.07 KM |
| 33 Maltings Close | £ 122,950 | 0.07 KM |
| 36 Maltings Close | £ 412,500 | 0.07 KM |
| 35 Maltings Close | £ 510,000 | 0.07 KM |