Joseph Scott says ..
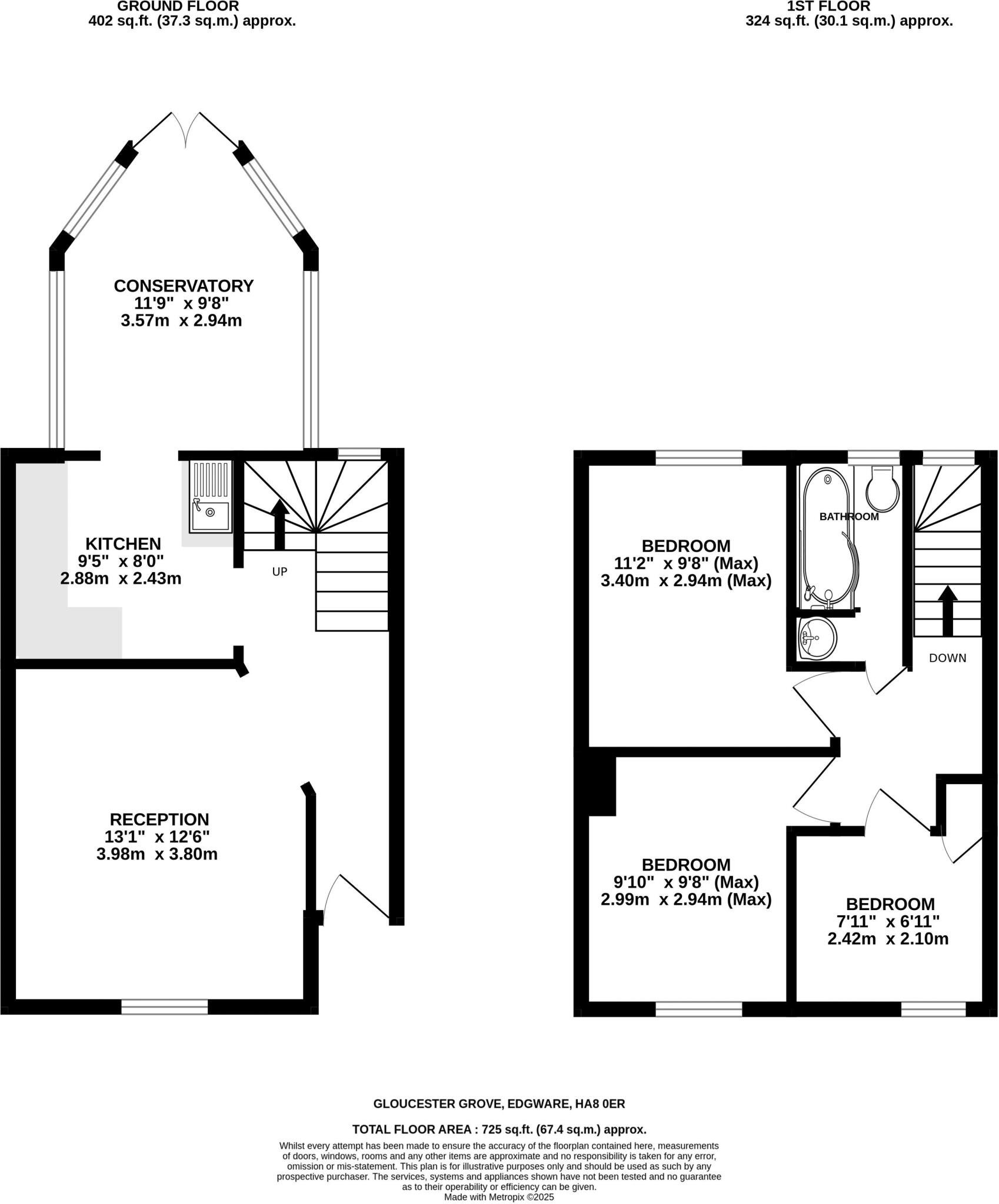
Joseph Scott Presents: A Well Presented Three Bedroom House, Located Only 0.3 Miles From Burnt Oak Station This family home comprises a spacious lounge area and separate kitchen, a further extension out into the conservatory and complete with direct access onto the private garden and patio a...
Property Oracle says ..
This three-bedroom terraced house in Gloucester Grove, Edgware, is presented in generally good condition and benefits from a family-friendly location. The property features a modern kitchen, a conservatory extending the living space, and what seems like a reasonably sized garden. The inclusion of a conservatory is a positive feature, adding extra living space and potential value. The proximity to Burnt Oak Underground Station provides good transport links, and the location is convenient for several ‘Outstanding’-rated primary schools, making it suitable for families with young children. However, several aspects remain unclear. The lack of square footage for the property and the land makes it difficult to fully assess the price per square foot and therefore the value for money. Also, the quality of the images provided does not allow for a comprehensive assessment of the property’s condition. Additional details regarding the property’s size, renovations, and any potential issues would enhance the overall evaluation. In conclusion, this property offers a satisfactory combination of location and condition but would need more comprehensive information to confidently determine its overall value.
Therefore, we give this property 6 / 10. *Disclaimer: This is our option and does constitute a recommendation or financial advice. Do your own research. *
- Price
- 6
- Condition
- 7
- Location
- 7
- Land
- 5
- Bedrooms
- 3
- Bathrooms
- 1
The heatmap indicates the level of crime in the area. The color of the heatmap indicates the crime severity and recency.
Metrics Year-on-Year
- Average area value
- 425,000.00 £Increased by 10.51 %
- Average area rental value
- 1,646.00 £/moDecreased by 0.60 %
- Est rental Yield
- 4.65 %Decreased by 10.06 %
- Crime Rate
- 7.00 %Unchanged by 0.00 %
Agent Activity
Joseph Scott created the listing.
Nearby Schools
| Name | Type | Ofsted | Distance |
|---|---|---|---|
| The Annunciation Catholic Infant School | Voluntary Aided School | Outstanding | 0.17 KM |
| Goldbeaters Primary School | Community School | Outstanding | 0.27 KM |
| Silkstream Children'S Centre | Children's Centre | 0.67 KM | |
| Barnfield Primary School | Community School | Outstanding | 0.67 KM |
| Menorah Grammar School | Other Independent School | Inadequate | 0.86 KM |
Images
Nearby Streets
| Name | Average Price | Average Sqft | Distance |
|---|---|---|---|
| Hanshaw Drive | £ 275,000 | 0 | 0.00 KM |
| Market Lane | £ 0 | 0 | 0.00 KM |
| Mostyn Road | £ 550,000 | 0 | 0.00 KM |
| Wagtail Close | £ 0 | 0 | 0.00 KM |
| Back Lane | £ 0 | 0 | 0.00 KM |
Nearby Transport
| Name | NLC | TLC | Distance |
|---|---|---|---|
| Mill Hill Broadway | 1527 | MIL | 1.61 KM |
| Hendon | 1522 | HEN | 3.31 KM |
| Wembley Stadium | 1509 | WCX | 6.09 KM |
| Elstree And Borehamwood | 1542 | ELS | 6.14 KM |
| South Kenton | 1453 | SOK | 6.55 KM |
Nearby Listings
| Address | Price | Type | Score | Distance |
|---|---|---|---|---|
| Gloucester Grove, Edgware, HA8 | £ 525,000 | BUY | 7 / 10 | 0.00 KM |
| Gloucester Grove, Edgware, HA8 | £ 485,000 | BUY | 6 / 10 | 0.05 KM |
| Gloucester Grove, Edgware, HA8 | £ 550,000 | BUY | 6 / 10 | 0.12 KM |
| Gloucester Grove, Edgware, HA8 | £ 425,000 | BUY | Unknown | 0.12 KM |
| Trevor Road, Edgware, HA8 | £ 550,000 | BUY | Unknown | 0.16 KM |
Nearby Properties
| Address | Price | Distance |
|---|---|---|
| 21 Gloucester Grove | £ 225,000 | 0.01 KM |
| 27 Gloucester Grove | £ 230,000 | 0.01 KM |
| 23 Gloucester Grove | £ 228,000 | 0.01 KM |
| 55 Gloucester Grove | £ 249,000 | 0.01 KM |
| 33 Gloucester Grove | £ 250,000 | 0.01 KM |