Goodfellows says ..
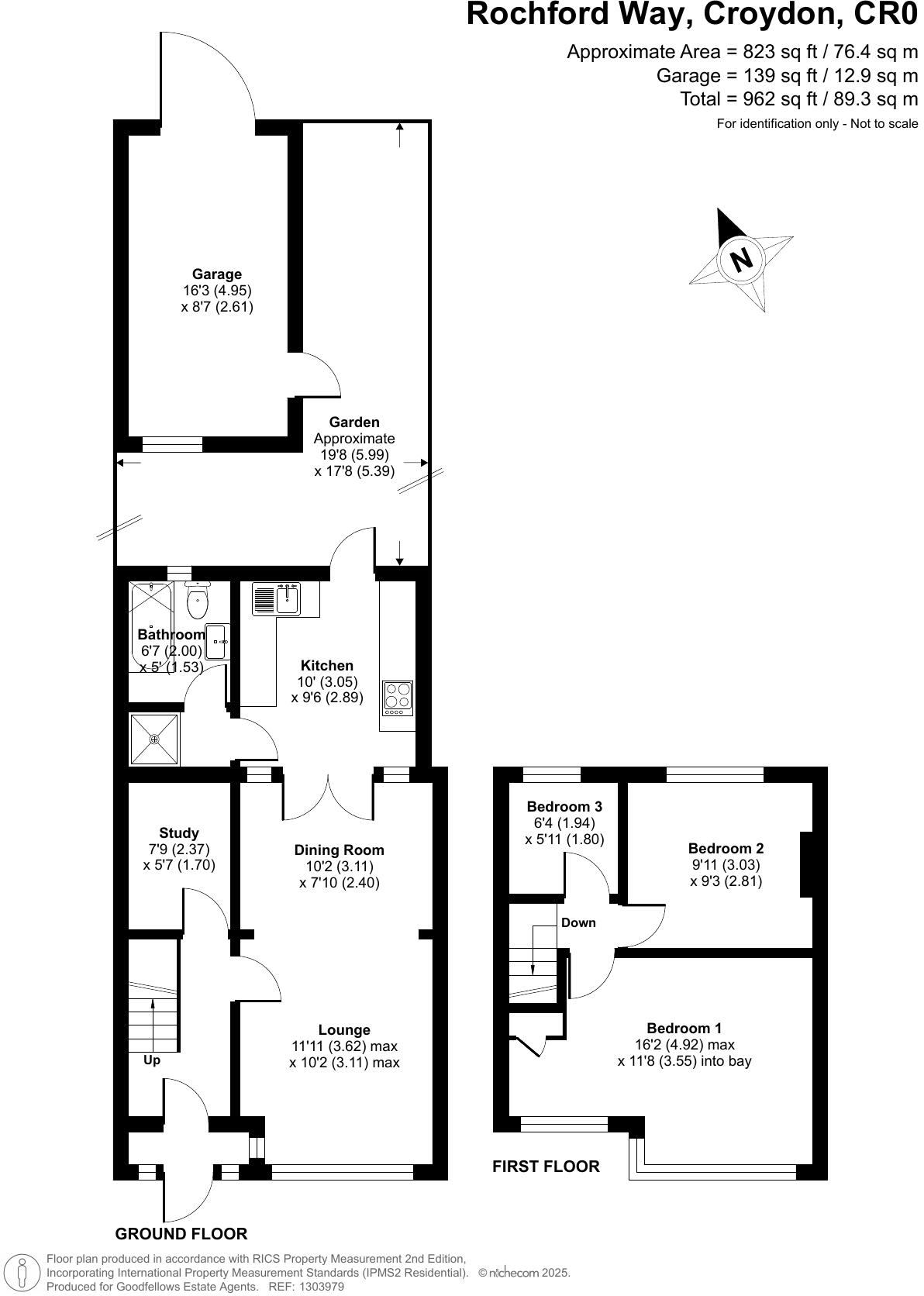
Beautifully Presented Three-Bedroom Home with Off-Street Parking. Located on the sought-after Rochford Way, this charming three-bedroom house has been lovingly maintained by the current owners and offers approximately 962 sq. ft. of well-appointed internal living space. The ...
Property Oracle says ..
Therefore, we give this property 6 / 10. *Disclaimer: This is our option and does constitute a recommendation or financial advice. Do your own research. *
- Price
- 6
- Condition
- 6
- Location
- 7
- Land
- 5
- Bedrooms
- 3
- Bathrooms
- 1
- Sqft (est)
- 962.00
The heatmap indicates the level of crime in the area. The color of the heatmap indicates the crime severity and recency.
Metrics Year-on-Year
- Average area value
- 299,286.00 £Decreased by 12.95 %
- Est sale value
- 415,584.00 £Increased by 3.60 %
- Average area rental value
- 1,709.00 £/moDecreased by 4.68 %
- Est letting value
- 1,924.00 £/moUnchanged by 0.00 %
- Est rental Yield
- 6.85 %Increased by 9.42 %
- Crime Rate
- 9.00 %Unchanged by 0.00 %
from 343,794.00 £
from 401,154.00 £
from 1,793.00 £/mo
from 1,924.00 £/mo
from 6.26 %
from 9.00 %
Agent Activity
Goodfellows created the listing.
Nearby Schools
| Name | Type | Ofsted | Distance |
|---|---|---|---|
| The Archbishop Lanfranc Academy | Academy Sponsor Led | Good | 0.26 KM |
| Peppermint Children'S Centre | Children's Centre Linked Site | 0.65 KM | |
| West Thornton Primary School | Academy Sponsor Led | 1.17 KM | |
| Gonville Academy | Academy Converter | Good | 1.26 KM |
| Ivy Gardens Children'S Centre | Children's Centre Linked Site | 1.36 KM |
Images
Nearby Streets
| Name | Average Price | Average Sqft | Distance |
|---|---|---|---|
| A236 | £ 425,000 | 0 | 0.00 KM |
| Rosemary Close | £ 0 | 0 | 0.00 KM |
| Franklin Way | £ 0 | 0 | 0.00 KM |
| Hertford Way | £ 0 | 0 | 0.00 KM |
| Fern Avenue | £ 0 | 0 | 0.00 KM |
Nearby Transport
| Name | NLC | TLC | Distance |
|---|---|---|---|
| Norbury | 5428 | NRB | 2.69 KM |
| Hackbridge | 5364 | HCB | 2.72 KM |
| Mitcham Junction | 5427 | MIJ | 2.84 KM |
| Waddon | 5392 | WDO | 2.97 KM |
| Mitcham Eastfields | 5069 | MTC | 3.20 KM |
Nearby Listings
| Address | Price | Type | Score | Distance |
|---|---|---|---|---|
| Rochford Way, Croydon, CR0 | £ 450,000 | BUY | 6 / 10 | 0.00 KM |
| Rochford Way, Croydon | £ 450,000 | BUY | Unknown | 0.06 KM |
| Mitcham Road, Croydon | £ 365,000 | BUY | 6 / 10 | 0.16 KM |
| Rochford Way, Croydon, CR0 | £ 375,000 | BUY | 4 / 10 | 0.27 KM |
| Rochford Way, Croydon, CR0 3AH | £ 425,000 | BUY | Unknown | 0.28 KM |
Nearby Properties
| Address | Price | Distance |
|---|---|---|
| 643 Mitcham Road | £ 200,000 | 0.03 KM |
| 605 Mitcham Road | £ 105,000 | 0.03 KM |
| 661 Mitcham Road | £ 183,000 | 0.04 KM |
| 627 Mitcham Road | £ 280,000 | 0.04 KM |
| 625 Mitcham Road | £ 391,000 | 0.04 KM |