117, Stone Road, Stafford, ST16 2RB, Stafford, ST16 2RB
By Under The Hammer
£ 29,000
Reviews
3 out of 5 stars
Under The Hammer says ..
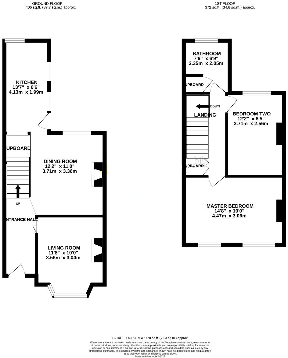
For sale by Under the Hammer online auction on Thursday 18th December 2025.A vacant freehold two bedroom property located in Stafford.The property has an entrance hallway, lounge, dining room, kitchen, two bedrooms and an upstairs bathroom.Externally the property benefits dr
Property Oracle says ..
This end-of-terrace property on Stone Road, Stafford, presents a compelling opportunity, particularly for investors or first-time buyers willing to undertake some cosmetic improvements. The house offers 778 sqft of living space, including two bedrooms and one bathroom. While the kitchen and bathroom have been modernized, some areas of the property may benefit from further renovation. The property benefits from a garden. Its location offers convenient access to local schools and transportation, including Stafford station. The list price of £29,000 makes this property an attractive investment.
Therefore, we give this property 7 / 10. *Disclaimer: This is our option and does constitute a recommendation or financial advice. Do your own research. *
- Price
- 9
- Condition
- 6
- Location
- 6
- Land
- 7
- Bedrooms
- 2
- Bathrooms
- 1
- Sqft (est)
- 778.00
The heatmap indicates the level of crime in the area. The color of the heatmap indicates the crime severity and recency.
Metrics Year-on-Year
- Average area value
- 165,250.00 £Decreased by 0.79 %
- Est sale value
- 158,712.00 £Increased by 2.00 %
- Average area rental value
- 824.00 £/moIncreased by 29.97 %
- Est letting value
- 778.00 £/mo
- Est rental Yield
- 5.98 %Increased by 30.85 %
- Crime Rate
- 0.00 %
Agent Activity
Under The Hammer created the listing.
Nearby Schools
| Name | Type | Ofsted | Distance |
|---|---|---|---|
| Tillington Manor Primary School | Community School | Good | 0.73 KM |
| St Patrick'S Catholic Primary School | Academy Converter | Requires improvement | 0.76 KM |
| Sir Graham Balfour High School | Academy Converter | Good | 1.16 KM |
| Parkside Primary School | Academy Converter | Good | 1.23 KM |
| John Wheeldon Primary Academy | Academy Sponsor Led | Good | 1.23 KM |
Images
Nearby Streets
| Name | Average Price | Average Sqft | Distance |
|---|---|---|---|
| Glebe Avenue | £ 0 | 0 | 0.00 KM |
| Pitt Street | £ 0 | 0 | 0.00 KM |
| Bettyhatch Lane | £ 0 | 0 | 0.00 KM |
| George Street | £ 0 | 0 | 0.00 KM |
| Kenworthy Road | £ 0 | 0 | 0.00 KM |
Nearby Transport
| Name | NLC | TLC | Distance |
|---|---|---|---|
| Stafford | 1268 | STA | 1.60 KM |
Nearby Listings
| Address | Price | Type | Score | Distance |
|---|---|---|---|---|
| 117, Stone Road, Stafford, ST16 2RB, Stafford, ST16 2RB | £ 29,000 | BUY | 7 / 10 | 0.00 KM |
| Stone Road, Stafford, ST16 | £ 39,000 | BUY | 7 / 10 | 0.06 KM |
| 39 Izaak Walton Close, Stafford, Staffordshire ST16 1HU | £ 75,000 | BUY | 5 / 10 | 0.13 KM |
| Tillington Street, Stafford, ST16 | £ 170,000 | BUY | 6 / 10 | 0.22 KM |
| Izaak Walton Street, Shallowford Mews Izaak Walton Street, ST16 | £ 100,000 | BUY | Unknown | 0.26 KM |
Nearby Properties
| Address | Price | Distance |
|---|---|---|
| 77 Stone Road | £ 124,950 | 0.06 KM |
| 75 Stone Road | £ 137,000 | 0.06 KM |
| 117 Stone Road | £ 72,000 | 0.06 KM |
| 119 Stone Road | £ 129,950 | 0.06 KM |
| 81 Stone Road | £ 138,000 | 0.06 KM |