Bowerham Road, Lancaster, Lancashire, LA1 4HJ
By Fisher Wrathall Commercial
£ 215,000
Reviews
2 out of 5 stars
Fisher Wrathall Commercial says ..
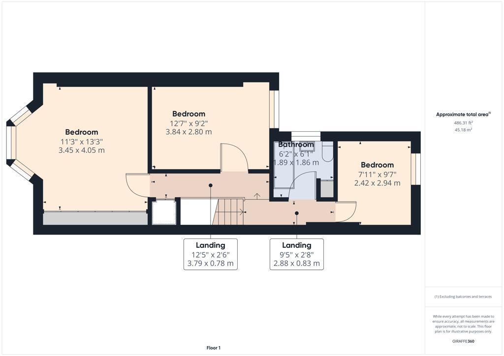
*** INCOME PRODUCING HMO STUDENT PROPERTY *** 4 LETTING BEDROOMS *** BATHROOM/W.C. & SEPARATE W.C. *** IDEAL FOR UNIVERSITY OF CUMBRIA *** EXCELLENT LETTING HISTORY *** .This property has the possibility of being sold as part of a portfolio with three other properties which offer some unique ad...
Property Oracle says ..
Located on Bowerham Road, Lancaster, this house of multiple occupation (HMO) is near several schools and Lancaster train station. The property appears to need renovation, with wear and tear visible in the kitchen and living areas. The exterior and garden also require attention. The asking price of £215,000 equates to £215.01 per square foot, below the area average of £293.00. Nearby properties are listed around £220,000 - £288,000.
Therefore, we give this property 5 / 10. *Disclaimer: This is our option and does constitute a recommendation or financial advice. Do your own research. *
- Price
- 7
- Condition
- 4
- Location
- 7
- Land
- 3
- Bedrooms
- 0
- Bathrooms
- 0
- Sqft (est)
- 999.95
The heatmap indicates the level of crime in the area. The color of the heatmap indicates the crime severity and recency.
Metrics Year-on-Year
- Average area value
- 216,667.00 £Increased by 6.72 %
- Est sale value
- 292,985.35 £Increased by 19.59 %
- Average area rental value
- 634.00 £/moIncreased by 11.82 %
- Est letting value
- 0.00 £/mo
- Est rental Yield
- 3.51 %Increased by 4.78 %
- Crime Rate
- 8.00 %Unchanged by 0.00 %
Agent Activity
Fisher Wrathall Commercial created the listing.
Nearby Schools
| Name | Type | Ofsted | Distance |
|---|---|---|---|
| St Bernadette'S Catholic Primary School, Lancaster | Voluntary Aided School | Outstanding | 0.45 KM |
| Stepping Stones School | Pupil Referral Unit | Outstanding | 0.58 KM |
| Moorside Primary School | Community School | Good | 0.58 KM |
| Bowerham Primary & Nursery School | Community School | Good | 0.64 KM |
| Scotforth St Paul'S Church Of England Primary And Nursery School | Voluntary Aided School | Outstanding | 0.85 KM |
Images
Nearby Streets
| Name | Average Price | Average Sqft | Distance |
|---|---|---|---|
| Cambridge Avenue | £ 0 | 0 | 0.00 KM |
| Connaught Road | £ 0 | 0 | 0.00 KM |
| Montbegon | £ 0 | 0 | 0.00 KM |
| Belle Vue Avenue | £ 0 | 0 | 0.00 KM |
| Thirsk Road | £ 0 | 0 | 0.00 KM |
Nearby Transport
| Name | NLC | TLC | Distance |
|---|---|---|---|
| Lancaster | 2685 | LAN | 2.54 KM |
| Bare Lane | 2690 | BAR | 6.73 KM |
| Morecambe | 2695 | MCM | 9.74 KM |
Nearby Listings
| Address | Price | Type | Score | Distance |
|---|---|---|---|---|
| Bowerham Road, Lancaster, Lancashire, LA1 4HJ | £ 215,000 | BUY | 5 / 10 | 0.00 KM |
| Bowerham Road, Lancaster, LA1 | £ 165,000 | BUY | 6 / 10 | 0.01 KM |
| Palatine Avenue, Lancaster | £ 265,000 | BUY | 6 / 10 | 0.08 KM |
| Bowerham Road, Lancaster | £ 225,000 | BUY | 5 / 10 | 0.11 KM |
| Cambridge Avenue, Lancaster, Lancashire, LA1 | £ 288,000 | BUY | 7 / 10 | 0.11 KM |
Nearby Properties
| Address | Price | Distance |
|---|---|---|
| 89 Bowerham Road | £ 185,000 | 0.01 KM |
| 125 Bowerham Road | £ 230,000 | 0.01 KM |
| 91 Bowerham Road | £ 190,000 | 0.01 KM |
| 103 Bowerham Road | £ 205,000 | 0.01 KM |
| 87 Bowerham Road | £ 148,000 | 0.01 KM |