Honeywell Road, SW11
RA

Honeywell Road, SW11

By Rampton Baseley

£ 3,850,000

Reviews

3 out of 5 stars

Rampton Baseley says ..

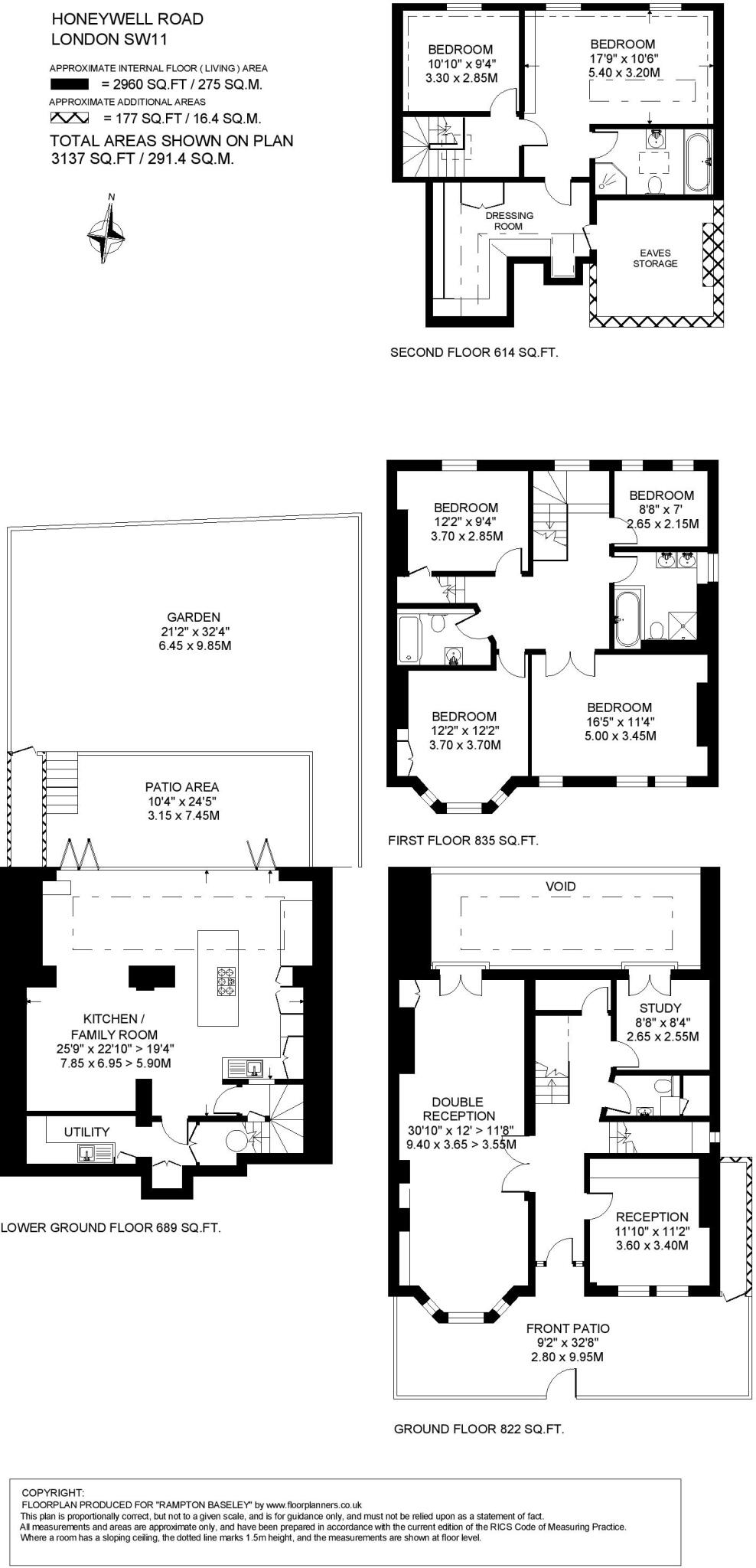
A spectacular double-fronted six-bedroom family house positioned on arguably the most sought-after residential street between the commons. The property offers approximately 2,960 sq ft of stunning living space, including a striking kitchen family room in the basement conversion. This features a s...

Property Oracle says ..

This is a well-presented detached property located in the desirable area of Northcote, Wandsworth. The house offers six bedrooms and three bathrooms, making it suitable for a large family. The property benefits from a modern interior, a good-sized garden, and proximity to local amenities, including schools and transport links. While the listing price is relatively high, it aligns with the average price for detached properties in the area.

Therefore, we give this property 7 / 10. *Disclaimer: This is our option and does constitute a recommendation or financial advice. Do your own research. *

Price
6
Condition
8
Location
8
Land
7
Bedrooms
6
Bathrooms
3

The heatmap indicates the level of crime in the area. The color of the heatmap indicates the crime severity and recency.

Metrics Year-on-Year

Average area value
939,476.00 £
Decreased by 7.90 %
from 1,020,087.00 £
Average area rental value
3,276.00 £/mo
Increased by 16.67 %
from 2,808.00 £/mo
Est rental Yield
4.18 %
Increased by 26.67 %
from 3.30 %
Crime Rate
3.00 %
Unchanged by 0.00 %
from 3.00 %

Agent Activity

  • Rampton Baseley created the listing.

Nearby Schools

NameTypeOfstedDistance
Northcote Lodge SchoolOther Independent School0.23 KM
Honeywell Junior SchoolFoundation SchoolOutstanding0.24 KM
Honeywell Infant SchoolFoundation SchoolOutstanding0.24 KM
Belleville Primary SchoolAcademy Converter0.37 KM
Dolphin School (Incorporating Noahs Ark Nursery Schools)Other Independent School0.38 KM

Images

Picture No. 47 Picture No. 34 Picture No. 38 Picture No. 39 Picture No. 16 Picture No. 54 Picture No. 13 Picture No. 40 Picture No. 03 Picture No. 61 Picture No. 44 Picture No. 58 Picture No. 14 Picture No. 28 Picture No. 32 Picture No. 30 Picture No. 23 Picture No. 22 Picture No. 33 Picture No. 25 Picture No. 31 Picture No. 20

Nearby Streets

NameAverage PriceAverage SqftDistance
Stonell's Road £ 000.00 KM
Cairns Road £ 818,75000.00 KM
Jaggard Way £ 575,00000.00 KM
Auckland Road £ 701,81800.00 KM
Aliwal Road £ 000.00 KM

Nearby Transport

NameNLCTLCDistance
Wandsworth Common5395WSW0.88 KM
Clapham Junction5595CLJ1.29 KM
Balham5399BAL1.82 KM
Wandsworth Town5576WNT2.70 KM
Earlsfield5584EAD2.85 KM

Nearby Listings

AddressPriceTypeScoreDistance
Honeywell Road, SW11 £ 3,850,000BUY7 / 100.00 KM
Honeywell Road, SW11 £ 825,000BUYUnknown0.07 KM
Broomwood Road, London, SW11 £ 800,000BUYUnknown0.09 KM
Northcote Road, London, SW11 £ 675,000BUY7 / 100.09 KM
Broomwood Road, SW11 £ 2,150,000BUY7 / 100.09 KM

Nearby Properties

AddressPriceDistance
166 Northcote Road £ 210,0000.04 KM
164 Northcote Road £ 170,0000.04 KM
162 Northcote Road £ 390,0000.04 KM
160 Northcote Road £ 275,0000.04 KM
21 Darley Road £ 793,0000.07 KM