Flat 6, Stibbe Lofts, 11 Newarke Street, Leicester, Leicestershire
By ANDERSON BRIGGS
£ 130,000
Reviews
2 out of 5 stars
ANDERSON BRIGGS says ..
STUNNING OPEN-PLAN APARTMENT - Whether it's getting onto the property ladder or a new investment opportunity, this spacious, open-plan one-bedroom apartment should hold something for you. It's located in Leicester City Centre's desired Stibbe Lofts development.
Property Oracle says ..
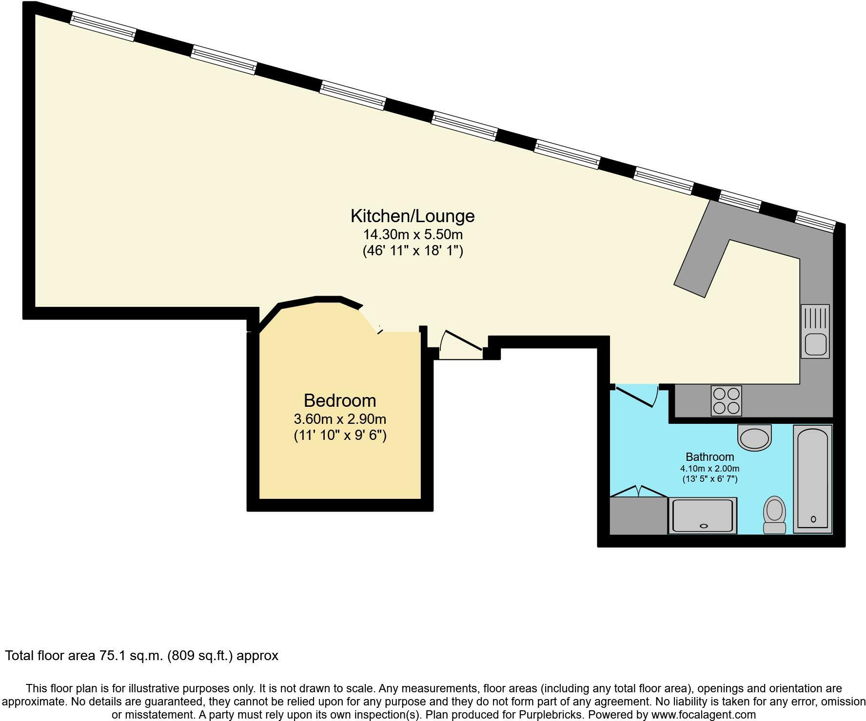
The property is a 1-bedroom, 1-bathroom flat located in Leicester, Leicestershire. The flat is situated in Stibbe Lofts, a converted building on Newarke Street. Based on the provided images, the property appears to be a modern conversion, with an open-plan living area and a well-equipped kitchen. The bathroom is relatively small but functional. The flooring throughout appears to be in good condition. The location is good, with nearby transportation links including Barrow-Upon-Soar train station (1.13km away). Several schools are within a reasonable distance, including Quorn Hall School (1.01km), which has an ‘Outstanding’ Ofsted rating. This suggests a family-friendly area with good amenities. However, the lack of plot size suggests no private outdoor space. The list price of £130,000 is considerably lower than the average property price in the area (£549,850). However, the average price per square foot is £436, and this property is significantly smaller than the average (808 sqft vs 1260 sqft). The lower price may reflect the smaller size and lack of outdoor space compared to other properties in the area. Further information on comparable properties would be beneficial for a more thorough price analysis.
Therefore, we give this property 5 / 10. *Disclaimer: This is our option and does constitute a recommendation or financial advice. Do your own research. *
- Price
- 6
- Condition
- 8
- Location
- 7
- Land
- 1
- Bedrooms
- 1
- Bathrooms
- 1
- Sqft (est)
- 808.37
The heatmap indicates the level of crime in the area. The color of the heatmap indicates the crime severity and recency.
Metrics Year-on-Year
- Average area value
- 607,500.00 £Increased by 4.15 %
- Est sale value
- 730,766.48 £Increased by 164.33 %
- Average area rental value
- 1,328.00 £/moDecreased by 13.15 %
- Est letting value
- 808.37 £/mo
- Est rental Yield
- 2.62 %Decreased by 16.83 %
- Crime Rate
- 0.00 %
Agent Activity
ANDERSON BRIGGS created the listing.
Nearby Schools
| Name | Type | Ofsted | Distance |
|---|---|---|---|
| Quorn Hall School | Other Independent Special School | Outstanding | 1.01 KM |
| Homefield College | Special Post 16 Institution | Good | 1.11 KM |
| Christ Church & Saint Peter'S Cofe Primary School | Academy Sponsor Led | Good | 1.50 KM |
| Barrow Hall Orchard Church Of England Primary School | Academy Converter | Good | 1.54 KM |
| Mountsorrel Sure Start Children'S Centre | Children's Centre | 1.71 KM |
Images
Nearby Streets
| Name | Average Price | Average Sqft | Distance |
|---|---|---|---|
| The Homestead | £ 0 | 0 | 0.00 KM |
| Darby Close | £ 0 | 0 | 0.00 KM |
| Hawthorn Road | £ 205,000 | 0 | 0.00 KM |
| Salters Lane | £ 0 | 0 | 0.00 KM |
| Swallow Close | £ 0 | 0 | 0.00 KM |
Nearby Transport
| Name | NLC | TLC | Distance |
|---|---|---|---|
| Barrow-Upon-Soar | 1903 | BWS | 1.13 KM |
| Sileby | 1902 | SIL | 3.52 KM |
| Loughborough | 1897 | LBO | 7.49 KM |
| Syston | 1900 | SYS | 8.22 KM |
Nearby Listings
| Address | Price | Type | Score | Distance |
|---|---|---|---|---|
| Aria Apartments, Chatham Street, Leicester | £ 140,000 | BUY | 8 / 10 | 0.00 KM |
| Nelson Court, 4A Rutland Street, Leicester, Leicestershire, LE1 | £ 100,000 | BUY | 6 / 10 | 0.00 KM |
| Aria Apartments, Chatham Street, Leicester | £ 200,000 | BUY | 5 / 10 | 0.00 KM |
| Flat 6, Stibbe Lofts, 11 Newarke Street, Leicester, Leicestershire | £ 130,000 | BUY | 5 / 10 | 0.00 KM |
| The Moorings, Sileby Road, Barrow upon Soar | £ 800,000 | BUY | Unknown | 0.70 KM |
Nearby Properties
| Address | Price | Distance |
|---|---|---|
| 7 The Pastures | £ 190,000 | 0.71 KM |
| 8 The Pastures | £ 265,000 | 0.71 KM |
| 1 The Pastures | £ 168,000 | 0.71 KM |
| 3 The Pastures | £ 190,000 | 0.71 KM |
| 10 The Pastures | £ 462,000 | 0.71 KM |