High Park Road, Ryde, PO33 1BX
By Seafields Estates
£ 490,000
Reviews
3 out of 5 stars
Seafields Estates says ..
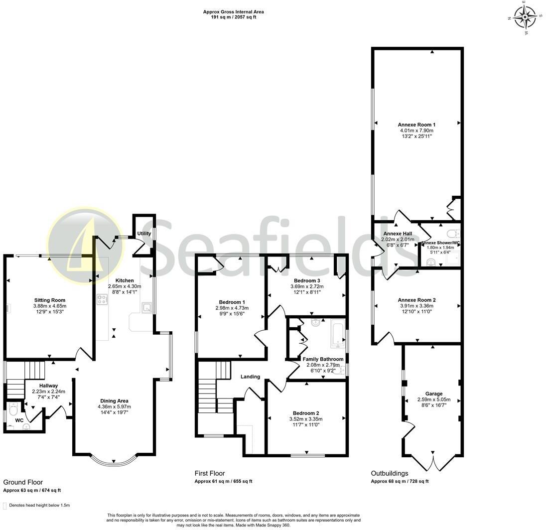
FABULOUS VERSATILITY WITHIN HOME PLUS ANNEXE! Situated in a large private plot within the highly desirable High Park Road area on Ryde outskirts, here is an amazing opportunity for those requiring a smart DETACHED FAMILY HOME plus separate ANNEXE (the latter offering excellent guest/fam...
Property Oracle says ..
This is a detached property located on High Park Road, Ryde, Isle of Wight. The property boasts five bedrooms and two bathrooms, with a generous square footage of 2,057 sqft. The property includes a garden and off-street parking. Ryde is a desirable location with good transport links and local amenities. The property is in good condition and appears to have been modernised. The asking price is £490,000.
Therefore, we give this property 7 / 10. *Disclaimer: This is our option and does constitute a recommendation or financial advice. Do your own research. *
- Price
- 7
- Condition
- 8
- Location
- 7
- Land
- 7
- Bedrooms
- 5
- Bathrooms
- 2
- Sqft (est)
- 2,057.00
The heatmap indicates the level of crime in the area. The color of the heatmap indicates the crime severity and recency.
Metrics Year-on-Year
- Average area value
- 431,250.00 £Increased by 5.19 %
- Est sale value
- 890,681.00 £Increased by 65.90 %
- Average area rental value
- 1,300.00 £/moDecreased by 23.48 %
- Est letting value
- 2,057.00 £/moUnchanged by 0.00 %
- Est rental Yield
- 3.62 %Decreased by 27.16 %
- Crime Rate
- 0.00 %
Agent Activity
Seafields Estates created the listing.
Nearby Schools
| Name | Type | Ofsted | Distance |
|---|---|---|---|
| Oakfield Church Of England Aided Primary School, Ryde | Voluntary Aided School | Requires improvement | 0.61 KM |
| St Mary'S Catholic Primary School | Voluntary Aided School | Requires improvement | 0.87 KM |
| Dover Park Primary School | Community School | Good | 1.30 KM |
| Ryde Children'S Centre | Children's Centre | 1.72 KM | |
| Haylands Primary School | Community School | Good | 2.01 KM |
Images
Nearby Streets
| Name | Average Price | Average Sqft | Distance |
|---|---|---|---|
| Sutton Close | £ 0 | 0 | 0.00 KM |
| Applewood Place | £ 0 | 0 | 0.00 KM |
| Nicholson Road | £ 0 | 0 | 0.00 KM |
| Holly Bush Close | £ 0 | 0 | 0.00 KM |
| St Johns Place | £ 189,950 | 0 | 0.00 KM |
Nearby Transport
| Name | NLC | TLC | Distance |
|---|---|---|---|
| Ryde St Johns Road | 5543 | RYR | 0.94 KM |
| Smallbrook Junction | 5494 | SAB | 1.03 KM |
| Ryde Esplanade | 5542 | RYD | 1.86 KM |
| Ryde Pier Head | 5541 | RYP | 2.49 KM |
| Brading | 5530 | BDN | 4.71 KM |
Nearby Listings
| Address | Price | Type | Score | Distance |
|---|---|---|---|---|
| High Park Road, Ryde, PO33 1BX | £ 490,000 | BUY | 7 / 10 | 0.00 KM |
| ELMFIELD, RYDE | £ 525,000 | BUY | 7 / 10 | 0.04 KM |
| High Park Road, Ryde | £ 115,000 | BUY | 6 / 10 | 0.07 KM |
| Tynedale, High Park Road, Ryde | £ 500,000 | BUY | 7 / 10 | 0.07 KM |
| Victoria Crescent, Ryde, Isle of Wight, PO33 | £ 375,000 | BUY | Unknown | 0.15 KM |
Nearby Properties
| Address | Price | Distance |
|---|---|---|
| 52 High Park Road | £ 296,950 | 0.09 KM |
| 48 High Park Road | £ 249,950 | 0.09 KM |
| 69 High Park Road | £ 220,000 | 0.09 KM |
| 44 High Park Road | £ 290,000 | 0.09 KM |
| 66 High Park Road | £ 205,000 | 0.09 KM |