Woodlands Court, Woodwell Road, Shirehampton, Bristol
By Ocean
£ 175,000
Reviews
3 out of 5 stars
Ocean says ..
A ground floor apartment in a sought after location close to both Shirehampton village and The Cotswold Estate with no onward chain.
Property Oracle says ..
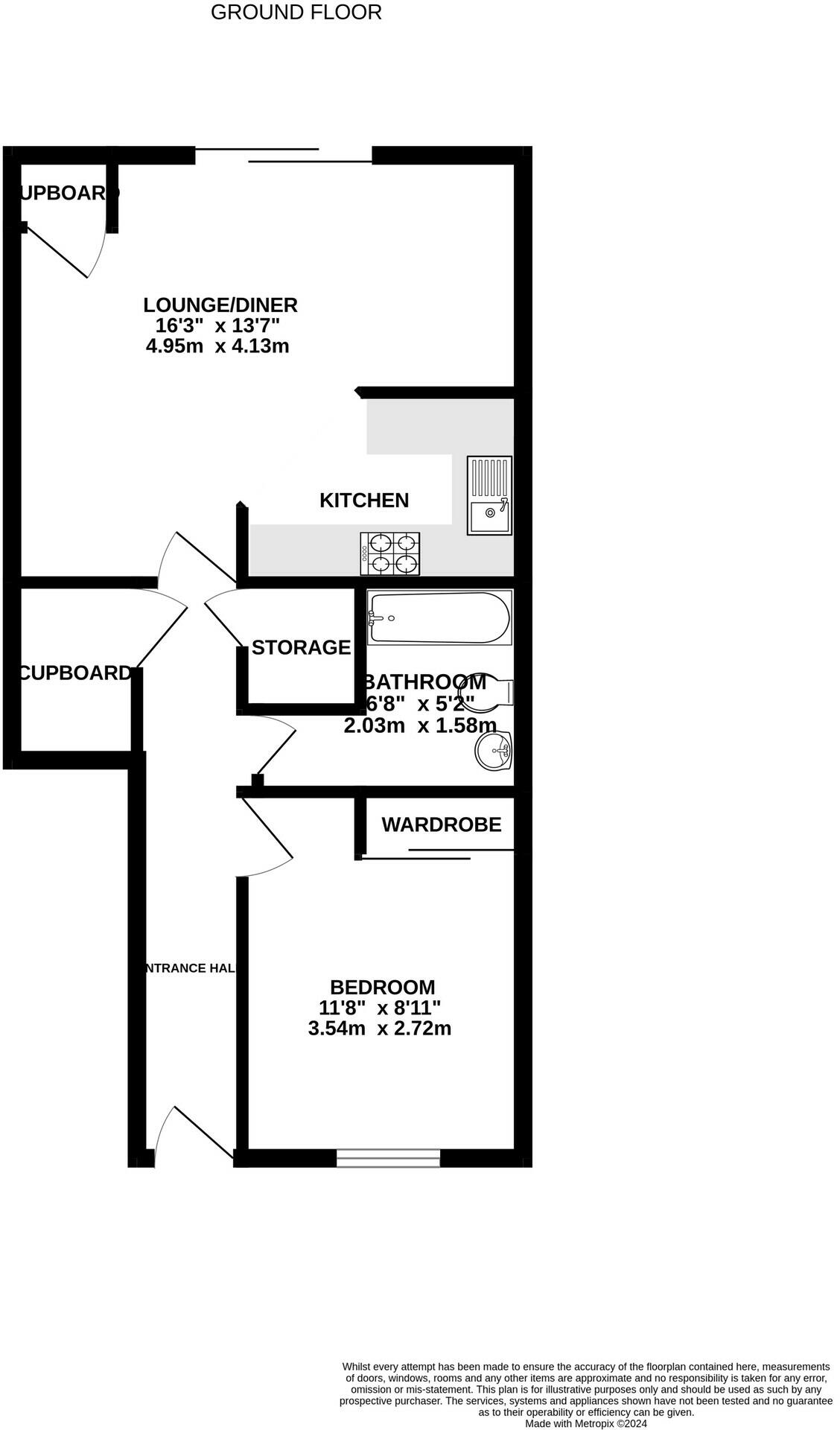
This one-bedroom ground-floor apartment located in Woodlands Court, Shirehampton, Bristol, offers a practical and relatively convenient living space. The property is situated in a quiet location yet benefits from reasonable access to transportation links via Shirehampton train station, located approximately 0.77km away. For families, there are several well-regarded schools within a reasonable distance, including Oasis Academy Brightstowe and Shirehampton Primary School. The property itself is a brick-built flat, appearing well-maintained from the exterior photographs. The interior photographs, however, show an interior that might benefit from some modernisation, particularly in the kitchen and bathroom. The kitchen appears functional but somewhat dated, and the bathroom is similarly in need of updating. The property also offers a small garden area, which is a positive aspect for a flat, though it’s not expansive. In terms of value, the list price seems reasonable in the context of the local property market; however, a precise calculation of price per square foot is difficult due to the lack of definitive square footage data in nearby listings. Overall, this property is a sound investment option that presents a good starting point for potential buyers and those looking for a low-maintenance yet practical flat in a relatively well-connected part of Bristol. However, prospective buyers should factor in potential modernisation costs to the asking price.
Therefore, we give this property 6 / 10. *Disclaimer: This is our option and does constitute a recommendation or financial advice. Do your own research. *
- Price
- 7
- Condition
- 6
- Location
- 7
- Land
- 4
- Bedrooms
- 1
- Bathrooms
- 1
- Sqft (est)
- 671.02
The heatmap indicates the level of crime in the area. The color of the heatmap indicates the crime severity and recency.
Metrics Year-on-Year
- Average area value
- 314,285.00 £Decreased by 23.82 %
- Est sale value
- 230,830.88 £Increased by 13.53 %
- Average area rental value
- 1,470.00 £/moIncreased by 11.20 %
- Est letting value
- 671.02 £/mo
- Est rental Yield
- 5.61 %Increased by 45.71 %
- Crime Rate
- 1.00 %Unchanged by 0.00 %
Agent Activity
Ocean marked this listing as sold.
Ocean created the listing.
Nearby Schools
| Name | Type | Ofsted | Distance |
|---|---|---|---|
| Oasis Academy Brightstowe | Academy Sponsor Led | Good | 0.66 KM |
| Shirehampton Primary School | Community School | Good | 1.16 KM |
| Long Cross Children'S Centre | Children's Centre | 1.40 KM | |
| Oasis Academy Long Cross | Academy Sponsor Led | Good | 1.42 KM |
| St Katherine'S School | Academy Converter | Requires improvement | 1.43 KM |
Images
Nearby Streets
| Name | Average Price | Average Sqft | Distance |
|---|---|---|---|
| Stroud Road | £ 0 | 0 | 0.00 KM |
| Woodview Close | £ 0 | 0 | 0.00 KM |
| Hart Close | £ 545,000 | 0 | 0.00 KM |
| Saint Tecla Close | £ 196,975 | 0 | 0.00 KM |
| Watchhouse Road | £ 325,000 | 0 | 0.00 KM |
Nearby Transport
| Name | NLC | TLC | Distance |
|---|---|---|---|
| Shirehampton | 3206 | SHH | 0.77 KM |
| Sea Mills | 3254 | SML | 2.55 KM |
| Avonmouth | 3200 | AVN | 3.43 KM |
| St Andrews Road | 3252 | SAR | 4.04 KM |
| Clifton Down | 3202 | CFN | 7.09 KM |
Nearby Listings
| Address | Price | Type | Score | Distance |
|---|---|---|---|---|
| Woodlands Court, Woodwell Road, Shirehampton, Bristol | £ 185,000 | BUY | 7 / 10 | 0.01 KM |
| Portway, Shirehampton, Bristol | £ 525,000 | BUY | 6 / 10 | 0.08 KM |
| Stroud Road, Shirehampton | £ 415,000 | BUY | 6 / 10 | 0.13 KM |
| Charbury Walk, Shirehampton, Bristol | £ 290,000 | BUY | 8 / 10 | 0.15 KM |
| St Bernards Road, Shirehampton, Bristol | £ 365,000 | BUY | 6 / 10 | 0.19 KM |
Nearby Properties
| Address | Price | Distance |
|---|---|---|
| 61 Woodwell Road | £ 107,000 | 0.08 KM |
| Rose Cottage | £ 170,000 | 0.08 KM |
| Fir Tree Lodge | £ 530,000 | 0.08 KM |
| 5 Stroud Road | £ 188,000 | 0.13 KM |
| 159 Dursley Road | £ 375,000 | 0.14 KM |