Bidston Road, Oxton
BR

Bidston Road, Oxton

By Brennan Ayre O'Neill

£ 450,000

Reviews

4 out of 5 stars

Brennan Ayre O'Neill says ..

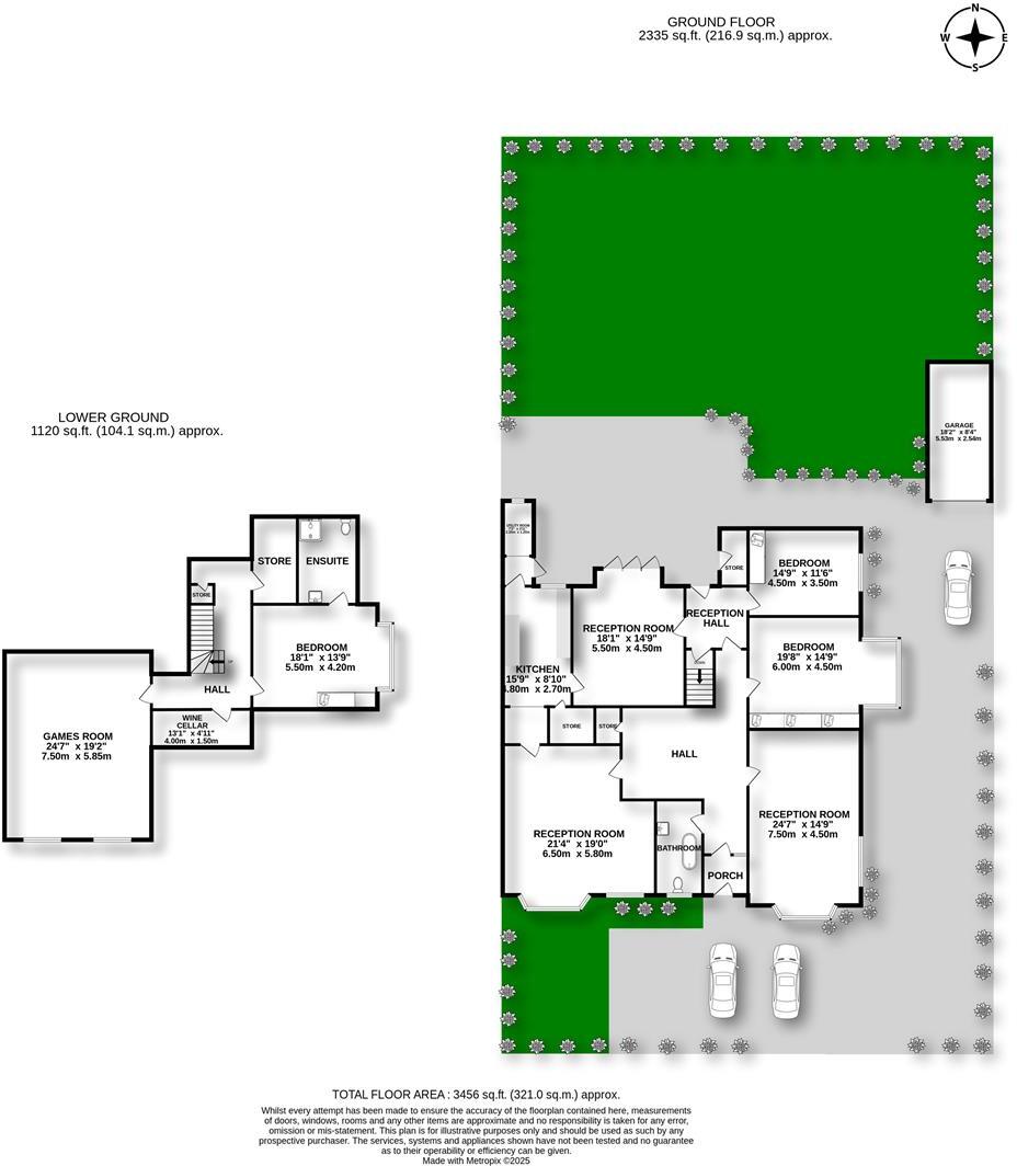
This is, in our view at least, nothing less than a glorious 'Mansion Flat'; a very rare property type for age, (late Victorian), for its size (some 3,300 square feet of accommodation) and for that in fact being the largest apartment within Oxton we've had the pleasure to view never mind list for...

Property Oracle says ..

This property is a 3 bedroom, 2 bathroom apartment located on Bidston Road in Oxton, Wirral. The apartment is part of a larger property, which is evident from the photos. It benefits from a substantial garden and off-street parking. The property is in good condition and appears to have been recently renovated or updated in parts. The location is desirable, being close to good schools and transport links. The price is above average for the area but may be justified given the size, condition, and desirable features of the property.

Therefore, we give this property 8 / 10. *Disclaimer: This is our option and does constitute a recommendation or financial advice. Do your own research. *

Price
7
Condition
8
Location
9
Land
8
Bedrooms
3
Bathrooms
2
Sqft (est)
2,718.00

The heatmap indicates the level of crime in the area. The color of the heatmap indicates the crime severity and recency.

Metrics Year-on-Year

Average area value
326,923.00 £
Increased by 8.27 %
from 301,961.00 £
Est sale value
905,094.00 £
Increased by 23.79 %
from 731,142.00 £
Average area rental value
756.00 £/mo
Increased by 3.42 %
from 731.00 £/mo
Est letting value
0.00 £/mo
from 0.00 £/mo
Est rental Yield
2.77 %
Decreased by 4.81 %
from 2.91 %
Crime Rate
3.00 %
Unchanged by 0.00 %
from 3.00 %

Agent Activity

  • Brennan Ayre O'Neill created the listing.

Nearby Schools

NameTypeOfstedDistance
Birkenhead SchoolOther Independent School0.38 KM
Birkenhead High School AcademyAcademy Sponsor LedOutstanding0.89 KM
Birkenhead Sixth Form CollegeAcademy 16-19 ConverterOutstanding1.03 KM
St Anselm'S CollegeAcademy ConverterGood1.10 KM
Wirral Hospitals' SchoolCommunity Special SchoolOutstanding1.16 KM

Images

DSC_0051.JPG DSC_0042.JPG DSC_0048.JPG DSC_0063.JPG DSC_0064.JPG DSC_0057.JPG DSC_0068.JPG DSC_0076.JPG DSC_0075.JPG DSC_0070.JPG DSC_0046.JPG DSC_0054.JPG DSC_0069.JPG DSC_0040.JPG DSC_0073.JPG DSC_0088.JPG DSC_0049.JPG DSC_0052.JPG DSC_0039.JPG DSC_0045.JPG DSC_0044.JPG DSC_0071.JPG DSC_0081.JPG DSC_0079.JPG DSC_0059.JPG DSC_0085.JPG DSC_0084.JPG DSC_0086.JPG DSC_0087.JPG DSC_0090.JPG DSC_0091.JPG DSC_0093.JPG DSC_0096.JPG DSC_0097.JPG DSC_0058.JPG DSC_0002.JPG DSC_0003.JPG DSC_0005.JPG DSC_0006.JPG

Nearby Streets

NameAverage PriceAverage SqftDistance
Budworth Road £ 000.00 KM
Saint Aidan's Terrace £ 50,00000.00 KM
St. Aidans Court £ 000.00 KM
Broom Hill £ 000.00 KM
Hargrave Avenue £ 155,00000.00 KM

Nearby Transport

NameNLCTLCDistance
Birkenhead North2145BKN2.01 KM
Birkenhead Park2220BKP2.44 KM
Upton (Merseyside)2141UPT2.87 KM
Bidston2136BID3.39 KM
Conway Park3624CNP4.00 KM

Nearby Listings

AddressPriceTypeScoreDistance
Bidston Road, Oxton £ 450,000BUY8 / 100.00 KM
Bidston Road, Oxton £ 399,000BUY7 / 100.03 KM
Fairlawn Court Bidston Road, Oxton £ 130,000BUY6 / 100.06 KM
Bidston Road, Prenton, Wirral £ 165,000BUY6 / 100.06 KM
Bidston Road, Oxton £ 165,000BUY7 / 100.07 KM

Nearby Properties

AddressPriceDistance
60 Bidston Road £ 375,0000.05 KM
22 Waterford Road £ 499,9990.21 KM
37 Bidston Road £ 665,0000.22 KM
6 Kingsmead Road North £ 250,0000.22 KM
16 Kingsmead Road North £ 533,0000.22 KM