High Street, Biggleswade, SG18
By Satchells Estate Agents
£ 650,000
Reviews
2 out of 5 stars
Satchells Estate Agents says ..
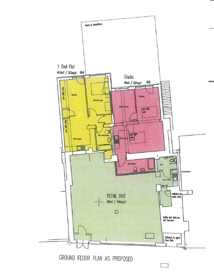
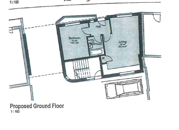
Asking price £650,000.For sale in central Biggleswade, the old Nat West Bank and land behind. The land to the rear has existing planning permission to build three apartments, two of two bedrooms and one, of one bedroom. The ground floor of the bank would lend itself to create four...
Property Oracle says ..
This property listing presents an opportunity for redevelopment rather than a sale of a finished property. The site comprises the old NatWest Bank building on High Street in Biggleswade and an adjacent plot of land. Pre-approved plans for three new apartments exist, two with two bedrooms and one with one bedroom. The ground floor of the existing building offers the potential for additional units, though the exact specifications aren’t detailed.
The existing building is situated on High Street in Biggleswade, providing convenient access to the town’s amenities, including shops, train station (0.55km), and several schools within a reasonable distance. The proximity to Biggleswade railway station is a significant advantage for commuters. The nearby schools include St Andrew’s Cofe VC Lower School (0.35km) and Biggleswade Academy (1.53km).
The listing price of £650,000 reflects the redevelopment potential of the land and the existing structure. The value proposition lies in the opportunity to develop three new apartments based on the approved plans. To assess the value accurately, a detailed cost analysis of construction and a projection of rental income or potential sale prices of the new units are needed. Comparing the final value of the completed development to the initial investment will allow a more precise evaluation of the financial viability of this project. Currently, the pricing appears reasonable based on the potential returns, but this is conditional on successful completion of the planned development within the projected budget.
Therefore, we give this property 5 / 10. *Disclaimer: This is our option and does constitute a recommendation or financial advice. Do your own research. *
- Price
- 6
- Condition
- 4
- Location
- 7
- Land
- 6
- Bedrooms
- 0
- Bathrooms
- 0
The heatmap indicates the level of crime in the area. The color of the heatmap indicates the crime severity and recency.
Metrics Year-on-Year
- Average area value
- 409,583.00 £Increased by 13.56 %
- Average area rental value
- 1,510.00 £/moIncreased by 7.02 %
- Est rental Yield
- 4.42 %Decreased by 5.76 %
- Crime Rate
- 69.00 %Unchanged by 0.00 %
Agent Activity
Satchells Estate Agents created the listing.
Nearby Schools
| Name | Type | Ofsted | Distance |
|---|---|---|---|
| St Andrew'S Cofe Vc Lower School | Voluntary Controlled School | Good | 0.35 KM |
| Biggleswade Children'S Centre | Children's Centre | 0.86 KM | |
| Lawnside Academy | Academy Converter | 1.00 KM | |
| Biggleswade Academy | Academy Converter | Good | 1.53 KM |
| Stratton Upper School | Academy Converter | Requires improvement | 1.71 KM |
Images
Nearby Streets
| Name | Average Price | Average Sqft | Distance |
|---|---|---|---|
| Elphick Court | £ 0 | 0 | 0.00 KM |
| Victoria Place | £ 165,000 | 0 | 0.00 KM |
| Crab Lane | £ 0 | 0 | 0.00 KM |
| Chestnut Avenue | £ 435,000 | 0 | 0.00 KM |
| National Cycle Route 12 | £ 205,000 | 0 | 0.00 KM |
Nearby Transport
| Name | NLC | TLC | Distance |
|---|---|---|---|
| Biggleswade | 6170 | BIW | 0.55 KM |
| Sandy | 6172 | SDY | 4.54 KM |
| Arlesey | 6171 | ARL | 6.78 KM |
Nearby Listings
| Address | Price | Type | Score | Distance |
|---|---|---|---|---|
| High Street, Biggleswade, SG18 | £ 160,000 | BUY | 5 / 10 | 0.01 KM |
| High Street, Biggleswade | £ 240,000 | BUY | 6 / 10 | 0.01 KM |
| High Street, Biggleswade | £ 270,000 | BUY | Unknown | 0.02 KM |
| Church Street, Biggleswade, Bedfordshire, SG18 | £ 160,000 | BUY | 5 / 10 | 0.07 KM |
| Church Street, Biggleswade, SG18 | £ 400,000 | BUY | Unknown | 0.09 KM |
Nearby Properties
| Address | Price | Distance |
|---|---|---|
| 5a High Street | £ 120,000 | 0.01 KM |
| 11d High Street | £ 225,000 | 0.01 KM |
| 11b High Street | £ 167,500 | 0.03 KM |
| 26a High Street | £ 150,000 | 0.07 KM |
| 25 Hitchin Street | £ 225,000 | 0.14 KM |