Jacobin Lane, Ross-On-Wye
By The Property Hub
£ 340,000
Reviews
4 out of 5 stars
The Property Hub says ..
A nearly new four-bedroom semi-detached family home, located within the sought-after St Mary's Garden Village. This beautifully presented property offers spacious, light-filled accommodation throughout, perfect for modern family living.
Property Oracle says ..
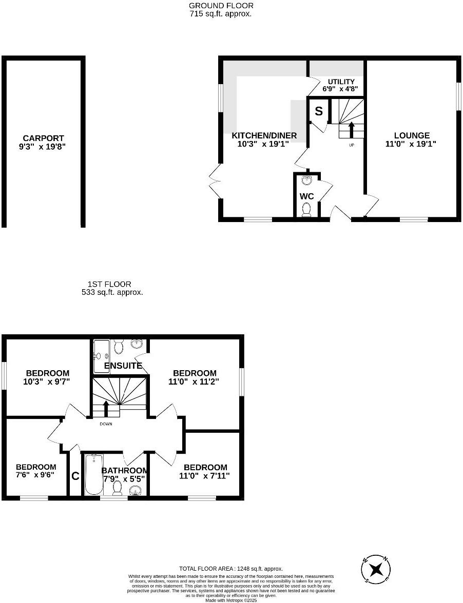
This property is a 4-bedroom, 2-bathroom semi-detached house located in Ross-on-Wye, Herefordshire. Based on the images provided, the property appears to be modern, well-maintained, and in excellent condition. The kitchen and bathrooms are modern and recently updated. The property benefits from a well-maintained garden with a patio area and a shed. There is also off-street parking. The location is relatively close to several schools with good Ofsted ratings, making it suitable for families. While the average price per square foot in the area is £304, this property is slightly above average, likely due to its modern condition and features. The list price of £340,000 seems reasonable given the property’s condition, location, and features.
Therefore, we give this property 8 / 10. *Disclaimer: This is our option and does constitute a recommendation or financial advice. Do your own research. *
- Price
- 8
- Condition
- 10
- Location
- 8
- Land
- 7
- Bedrooms
- 4
- Bathrooms
- 2
- Sqft (est)
- 1,040.13
- Lot (est)
- 1,248.00
The heatmap indicates the level of crime in the area. The color of the heatmap indicates the crime severity and recency.
Metrics Year-on-Year
- Average area value
- 381,990.00 £Increased by 18.26 %
- Est sale value
- 392,129.01 £Increased by 28.23 %
- Average area rental value
- 1,125.00 £/moIncreased by 12.61 %
- Est letting value
- 1,040.13 £/mo
- Est rental Yield
- 3.53 %Decreased by 4.85 %
- Crime Rate
- 0.00 %
Agent Activity
The Property Hub created the listing.
Nearby Schools
| Name | Type | Ofsted | Distance |
|---|---|---|---|
| John Kyrle High School And Sixth Form Centre Academy | Academy Converter | Good | 1.12 KM |
| Children'S Centre, Ross On Wye | Children's Centre | 1.50 KM | |
| Brampton Abbotts Cofe Primary School | Voluntary Aided School | Good | 1.59 KM |
| St Joseph'S Rc Primary School | Voluntary Aided School | Good | 2.63 KM |
| Ashfield Park Primary School | Community School | Good | 2.88 KM |
Images
Nearby Streets
| Name | Average Price | Average Sqft | Distance |
|---|---|---|---|
| Turbit Close | £ 82,500 | 0 | 0.00 KM |
| Horseman Close | £ 304,996 | 0 | 0.00 KM |
| Saxon Avenue | £ 325,000 | 0 | 0.00 KM |
| Skylark Lane | £ 0 | 0 | 0.00 KM |
| Swallow Road | £ 0 | 0 | 0.00 KM |
Nearby Listings
| Address | Price | Type | Score | Distance |
|---|---|---|---|---|
| Jacobin Lane, Ross-On-Wye | £ 340,000 | BUY | 8 / 10 | 0.00 KM |
| Jacobin Lane, Ross-On-Wye | £ 250,000 | BUY | 7 / 10 | 0.00 KM |
| Jacobin Lane, Ross-On-Wye | £ 250,000 | BUY | 7 / 10 | 0.05 KM |
| Turbit Close, Ross-On-Wye | £ 350,000 | BUY | 6 / 10 | 0.08 KM |
| Ross outskirts | £ 320,000 | BUY | Unknown | 0.08 KM |
Nearby Properties
| Address | Price | Distance |
|---|---|---|
| 5 The Walled Garden | £ 347,750 | 0.41 KM |
| 1 The Walled Garden | £ 358,000 | 0.41 KM |
| 4 The Walled Garden | £ 665,000 | 0.44 KM |
| 8 The Walled Garden | £ 352,500 | 0.44 KM |
| 17 Oak Tree Rise | £ 210,000 | 0.45 KM |