Bradleys says ..
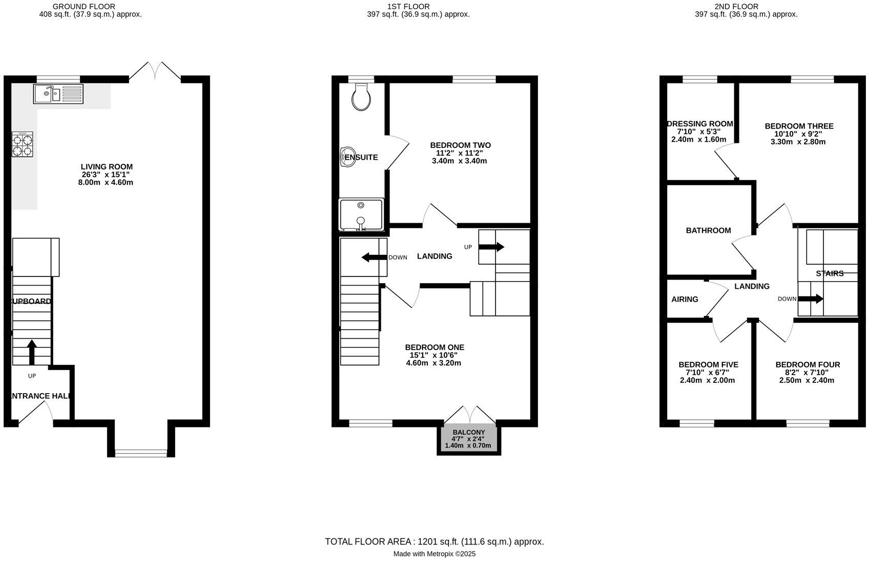
“A Five-Bedroom Masterpiece of Modern Living.” Spacious five-bedroom end-of-terrace townhouse arranged over three floors. Features a modern kitchen/diner, bright living spaces, en-suite to principal bedroom, private garden, and off-street parking. Ideally located near local ...
Property Oracle says ..
This is a 5-bedroom end-of-terrace house in Devonport, Plymouth, listed for £260,000. The property offers a modern interior with updated kitchen and bathrooms, but some rooms show signs of wear. The location is near transportation and schools, but the area has mixed Ofsted ratings. The property includes a small outdoor area. Given the size and location, the price appears reasonable, offering good value for money. The property is located close to schools such as St Joseph’s Catholic Primary School and Marlborough Primary Academy. Nearby train stations include Devonport and Dockyard (Devonport). Nearby properties include flats and terraced houses with prices ranging from £111,000 to £155,000.
Therefore, we give this property 5 / 10. *Disclaimer: This is our option and does constitute a recommendation or financial advice. Do your own research. *
- Price
- 7
- Condition
- 7
- Location
- 6
- Land
- 3
- Bedrooms
- 5
- Bathrooms
- 0
- Sqft (est)
- 1,201.25
The heatmap indicates the level of crime in the area. The color of the heatmap indicates the crime severity and recency.
Metrics Year-on-Year
- Average area value
- 177,475.00 £Decreased by 2.93 %
- Est sale value
- 235,445.00 £Decreased by 10.50 %
- Average area rental value
- 1,174.00 £/moIncreased by 51.48 %
- Est letting value
- 1,201.25 £/mo
- Est rental Yield
- 7.94 %Increased by 55.99 %
- Crime Rate
- 7.00 %Unchanged by 0.00 %
Agent Activity
Bradleys created the listing.
Nearby Schools
| Name | Type | Ofsted | Distance |
|---|---|---|---|
| Green Ark Children'S Centre | Children's Centre | 0.31 KM | |
| St Joseph'S Catholic Primary School | Academy Converter | Good | 0.33 KM |
| Marlborough Primary Academy | Academy Converter | Requires improvement | 0.38 KM |
| Mount Wise Community Primary School | Academy Converter | 0.43 KM | |
| Utc Plymouth | University Technical College | 0.67 KM |
Images
Nearby Streets
| Name | Average Price | Average Sqft | Distance |
|---|---|---|---|
| Ker St Ope | £ 0 | 0 | 0.00 KM |
| Gun Lane | £ 0 | 0 | 0.00 KM |
| Edinburgh Street | £ 60,000 | 0 | 0.00 KM |
| Bennett Street | £ 0 | 0 | 0.00 KM |
| Mount Street | £ 0 | 0 | 0.00 KM |
Nearby Transport
| Name | NLC | TLC | Distance |
|---|---|---|---|
| Devonport | 3579 | DPT | 1.04 KM |
| Dockyard (Devonport) | 3588 | DOC | 1.15 KM |
| Keyham | 3571 | KEY | 2.02 KM |
| St Budeaux Ferry Road | 3590 | SBF | 3.44 KM |
| St Budeaux Victoria Road | 3592 | SBV | 3.53 KM |
Nearby Listings
| Address | Price | Type | Score | Distance |
|---|---|---|---|---|
| Phelps Road, Plymouth, PL1 | £ 150,000 | BUY | Unknown | 0.00 KM |
| Phelps Road, Plymouth, PL1 | £ 155,000 | BUY | 6 / 10 | 0.00 KM |
| Phelps Road, Plymouth, Devon | £ 260,000 | BUY | 5 / 10 | 0.00 KM |
| Phelps Road, Plymouth, Devon, PL1 | £ 174,250 | BUY | 5 / 10 | 0.01 KM |
| Fore Street, Devonport, PLYMOUTH | £ 290,000 | BUY | 6 / 10 | 0.06 KM |
Nearby Properties
| Address | Price | Distance |
|---|---|---|
| 66 Phelps Road | £ 115,000 | 0.01 KM |
| 72 Phelps Road | £ 111,000 | 0.01 KM |
| 30 Phelps Road | £ 155,000 | 0.01 KM |
| 64 Phelps Road | £ 133,500 | 0.01 KM |
| 62 Phelps Road | £ 118,000 | 0.01 KM |