Havett Road, Dobwalls, Liskeard, Cornwall
By Bradleys
£ 200,000
Reviews
4 out of 5 stars
Bradleys says ..
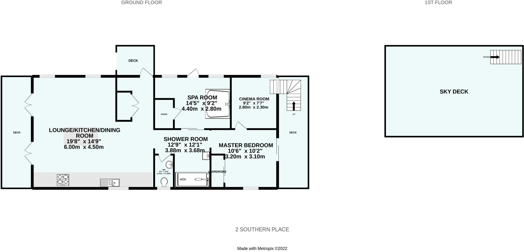
LUXURY LODGE ON GENEROUS PLOT WITH SPA, CINEMA ROOM & SKY DECK GUIDE PRICE £200,000 TO £225,000 This i-Spa luxury lodge located on the soughtafter Southern Halt development is a MUST to view. Set on a generous yet private plot, the lodge has a sky deck with views ov...
Property Oracle says ..
Location: The property is located in Dobwalls, Cornwall. While the provided data doesn’t offer detailed insights into the desirability of this specific location, the proximity to Dobwalls Community Primary School (0.74 km) is a positive factor for families. Additional schools are within a reasonable distance, though further analysis would be needed to determine the overall quality of local schooling. The presence of nearby train stations (Coombe Junction Halt, Liskeard, etc.) suggests convenient transportation links. However, without more information regarding local amenities and the overall character of the area, a comprehensive location assessment is difficult.
Condition: Based on the provided images, the property appears to be in excellent condition. It is modern, well-maintained, and shows no signs of needing repair or renovation. The finishes are contemporary, and the overall presentation is high-quality.
Land: The property includes a significant amount of land, as evidenced by the photos showing a substantial garden area. This is a desirable feature, adding to the overall appeal of the property.
Price: The list price of £200,000 is considerably lower than the average house price in the area (£468,178). However, the average price per square foot (£235) is not directly comparable due to the significant difference in the size of the properties (767 sqft vs 1992 sqft average). The subject property is much smaller. The lower price may reflect the smaller size and the fact that it is a lodge rather than a traditional house. Considering the property’s apparent excellent condition and the inclusion of land, the price may represent good value, although a more detailed comparison with similar properties in the area would be needed to confirm this.
Therefore, we give this property 8 / 10. *Disclaimer: This is our option and does constitute a recommendation or financial advice. Do your own research. *
- Price
- 8
- Condition
- 10
- Location
- 7
- Land
- 8
- Bedrooms
- 1
- Bathrooms
- 2
- Sqft (est)
- 767.04
The heatmap indicates the level of crime in the area. The color of the heatmap indicates the crime severity and recency.
Metrics Year-on-Year
- Average area value
- 380,500.00 £Decreased by 7.95 %
- Est sale value
- 233,947.20 £Increased by 0.66 %
- Average area rental value
- 1,550.00 £/moIncreased by 31.91 %
- Est letting value
- 767.04 £/mo
- Est rental Yield
- 4.89 %Increased by 43.40 %
- Crime Rate
- 28.00 %Unchanged by 0.00 %
Agent Activity
Bradleys created the listing.
Nearby Schools
| Name | Type | Ofsted | Distance |
|---|---|---|---|
| Dobwalls Community Primary School | Academy Converter | Requires improvement | 0.74 KM |
| Liskeard Hillfort Primary School | Academy Sponsor Led | Requires improvement | 4.62 KM |
| St Neot Community Primary School | Community School | Outstanding | 4.93 KM |
| Braddock Cofe Primary School | Academy Sponsor Led | Good | 5.45 KM |
| Taliesin Education Ltd | Other Independent Special School | Requires improvement | 5.45 KM |
Images
Nearby Streets
| Name | Average Price | Average Sqft | Distance |
|---|---|---|---|
| Newton Court | £ 259,938 | 0 | 0.00 KM |
| Chestnut Drive | £ 362,321 | 0 | 0.00 KM |
| Council Houses | £ 200,000 | 0 | 0.00 KM |
Nearby Transport
| Name | NLC | TLC | Distance |
|---|---|---|---|
| Coombe Junction Halt | 3570 | COE | 4.34 KM |
| Liskeard | 3573 | LSK | 5.59 KM |
| St Keyne Wishing Well Halt | 3572 | SKN | 7.35 KM |
| Causeland | 3568 | CAU | 8.37 KM |
Nearby Listings
| Address | Price | Type | Score | Distance |
|---|---|---|---|---|
| Havett Road, Dobwalls, Liskeard, Cornwall | £ 200,000 | BUY | 8 / 10 | 0.00 KM |
| Horizon View, Southern Halt, PL14 | £ 150,000 | BUY | 7 / 10 | 0.00 KM |
| Southern Halt, Dobwalls, Liskeard, Cornwall | £ 175,000 | BUY | Unknown | 0.01 KM |
| Lodge At Southern Halt, Dobwalls, PL14 | £ 200,000 | BUY | 7 / 10 | 0.01 KM |
| Havett Road, Dobwalls, Liskeard, Cornwall, PL14 | £ 250,000 | BUY | 7 / 10 | 0.01 KM |
Nearby Properties
| Address | Price | Distance |
|---|---|---|
| 5 Hawthorn Rise | £ 262,500 | 0.15 KM |
| 1 Havett Close | £ 145,000 | 0.28 KM |
| 26 Havett Close | £ 200,000 | 0.28 KM |
| 24 Havett Close | £ 139,000 | 0.28 KM |
| 3 Havett Close | £ 139,000 | 0.28 KM |