Mendip Road, Liverpool, Merseyside, L15
By Venmore
£ 260,000
Reviews
3 out of 5 stars
Venmore says ..
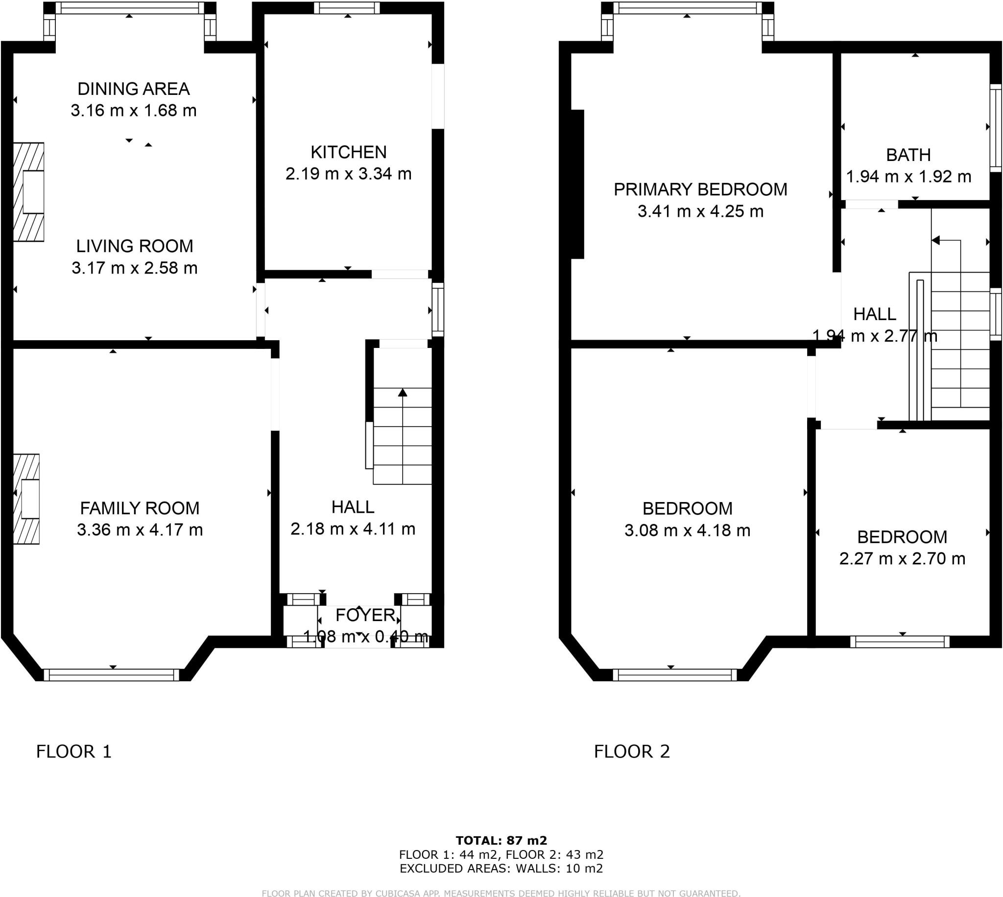
Spacious 3-Bedroom Semi-Detached Home with Generous Garden – Fantastic Family Location Located in a highly desirable and well-connected area, this three-bedroom semi-detached home offers an exciting opportunity for families or first-time buyers looking to create their dream home....
Property Oracle says ..
Therefore, we give this property 6 / 10. *Disclaimer: This is our option and does constitute a recommendation or financial advice. Do your own research. *
- Price
- 8
- Condition
- 4
- Location
- 7
- Land
- 6
- Bedrooms
- 3
- Bathrooms
- 1
- Sqft (est)
- 938.28
The heatmap indicates the level of crime in the area. The color of the heatmap indicates the crime severity and recency.
Metrics Year-on-Year
- Average area value
- 303,750.00 £Increased by 22.07 %
- Est sale value
- 344,348.76 £Increased by 56.84 %
- Average area rental value
- 963.00 £/moIncreased by 24.26 %
- Est letting value
- 938.28 £/mo
- Est rental Yield
- 3.80 %Increased by 1.60 %
- Crime Rate
- 1.00 %Unchanged by 0.00 %
from 248,830.00 £
from 219,557.52 £
from 775.00 £/mo
from 0.00 £/mo
from 3.74 %
from 1.00 %
Agent Activity
Venmore created the listing.
Nearby Schools
| Name | Type | Ofsted | Distance |
|---|---|---|---|
| The Blue Coat School | Academy Converter | Outstanding | 0.42 KM |
| Mosspits Lane Primary School | Community School | Good | 0.45 KM |
| Royal School For The Blind (Liverpool) | Non-maintained Special School | Outstanding | 0.52 KM |
| Wavertree Church Of England School | Voluntary Controlled School | Good | 0.86 KM |
| Our Lady Of Good Help Catholic Primary School | Voluntary Aided School | Good | 0.92 KM |
Images
Nearby Streets
| Name | Average Price | Average Sqft | Distance |
|---|---|---|---|
| Stradbroke Road | £ 185,000 | 0 | 0.00 KM |
| Lichfield Road | £ 240,000 | 0 | 0.00 KM |
| Beverley Road | £ 349,375 | 0 | 0.00 KM |
| Peterborough Road | £ 315,000 | 0 | 0.00 KM |
| Bristol Road | £ 550,000 | 0 | 0.00 KM |
Nearby Transport
| Name | NLC | TLC | Distance |
|---|---|---|---|
| Mossley Hill | 2171 | MSH | 1.64 KM |
| Wavertree Technology Park | 8589 | WAV | 1.76 KM |
| Broad Green | 2240 | BGE | 2.54 KM |
| West Allerton | 2266 | WSA | 2.77 KM |
| Aigburth | 2255 | AIG | 3.61 KM |
Nearby Listings
| Address | Price | Type | Score | Distance |
|---|---|---|---|---|
| Mendip Road, Liverpool, Merseyside, L15 | £ 260,000 | BUY | 6 / 10 | 0.00 KM |
| Mendip Road, Wavertree, L15 | £ 290,000 | BUY | 7 / 10 | 0.05 KM |
| Lichfield Road, Wavertree, L15 | £ 270,000 | BUY | 6 / 10 | 0.08 KM |
| Beverley Road, Wavertree, L15 | £ 350,000 | BUY | 6 / 10 | 0.08 KM |
| Charles Berrington Road, Wavertree, L15 | £ 290,000 | BUY | Unknown | 0.08 KM |
Nearby Properties
| Address | Price | Distance |
|---|---|---|
| 3 Mendip Road | £ 137,130 | 0.03 KM |
| 1 Mendip Road | £ 90,000 | 0.03 KM |
| 8 Mendip Road | £ 140,000 | 0.03 KM |
| 19 Mendip Road | £ 282,500 | 0.03 KM |
| 38 Lichfield Road | £ 105,000 | 0.12 KM |