St Cleer Drive, Wadebridge PL27
By Cole Rayment & White
£ 525,000
Reviews
4 out of 5 stars
Cole Rayment & White says ..
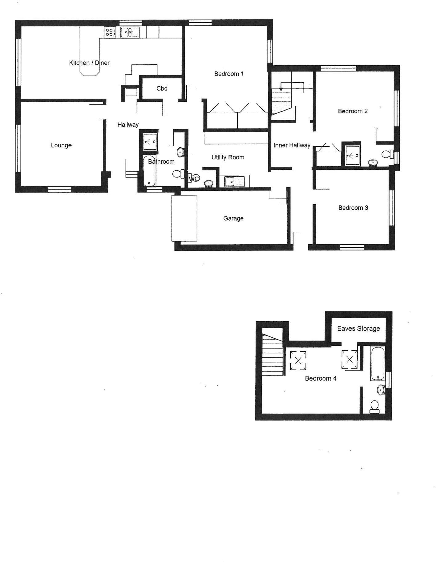
A spacious gas centrally heated detached 4 bedroom, 2 en suite bungalow situated in a great corner plot location with extremely versatile and adaptable accommodation. Freehold. Council Tax Band E. EPC rating C.
Property Oracle says ..
Therefore, we give this property 8 / 10. *Disclaimer: This is our option and does constitute a recommendation or financial advice. Do your own research. *
- Price
- 9
- Condition
- 8
- Location
- 8
- Land
- 7
- Bedrooms
- 4
- Bathrooms
- 3
- Sqft (est)
- 1,216.00
The heatmap indicates the level of crime in the area. The color of the heatmap indicates the crime severity and recency.
Metrics Year-on-Year
- Average area value
- 1,036,538.00 £Increased by 46.88 %
- Est sale value
- 949,696.00 £Increased by 37.74 %
- Average area rental value
- 1,192.00 £/moDecreased by 22.50 %
- Est letting value
- 0.00 £/moDecreased by 100.00 %
- Est rental Yield
- 1.38 %Decreased by 47.33 %
- Crime Rate
- 1.00 %Unchanged by 0.00 %
from 705,708.00 £
from 689,472.00 £
from 1,538.00 £/mo
from 1,216.00 £/mo
from 2.62 %
from 1.00 %
Agent Activity
Cole Rayment & White created the listing.
Nearby Schools
| Name | Type | Ofsted | Distance |
|---|---|---|---|
| Wadebridge Primary Academy | Academy Converter | Good | 0.46 KM |
| Wadebridge School | Academy Converter | Good | 0.46 KM |
| Wadebridge & Camelford Children'S Centre | Children's Centre | 1.40 KM | |
| St Breock Primary School | Academy Converter | Good | 1.97 KM |
| St Kew Ace Academy | Academy Converter | Good | 5.27 KM |
Images
Nearby Streets
| Name | Average Price | Average Sqft | Distance |
|---|---|---|---|
| Hill Park | £ 0 | 0 | 0.00 KM |
| Palmers Way | £ 355,000 | 0 | 0.00 KM |
| Trenant Gardens | £ 0 | 0 | 0.00 KM |
| West Park Estate | £ 220,000 | 0 | 0.00 KM |
| Hope Street | £ 0 | 0 | 0.00 KM |
Nearby Listings
| Address | Price | Type | Score | Distance |
|---|---|---|---|---|
| St Cleer Drive, Wadebridge PL27 | £ 525,000 | BUY | 8 / 10 | 0.00 KM |
| St. Cleer Drive, Wadebridge | £ 575,000 | BUY | 6 / 10 | 0.00 KM |
| St. Cleer Drive, Wadebridge, Cornwall, PL27 | £ 450,000 | BUY | 6 / 10 | 0.04 KM |
| St. Cleer Drive, WADEBRIDGE, Cornwall, PL27 | £ 475,000 | BUY | 6 / 10 | 0.04 KM |
| Trenant Vale, Wadebridge PL27 | £ 625,000 | BUY | 7 / 10 | 0.07 KM |
Nearby Properties
| Address | Price | Distance |
|---|---|---|
| 12 St Cleer Drive | £ 375,000 | 0.04 KM |
| 1 St Cleer Drive | £ 270,000 | 0.04 KM |
| 11 St Cleer Drive | £ 450,000 | 0.04 KM |
| 14 St Cleer Drive | £ 400,000 | 0.04 KM |
| 4 St Cleer Drive | £ 140,000 | 0.04 KM |