Sydney Road, London, W13
By Castle Residential
£ 899,950
Reviews
3 out of 5 stars
Castle Residential says ..
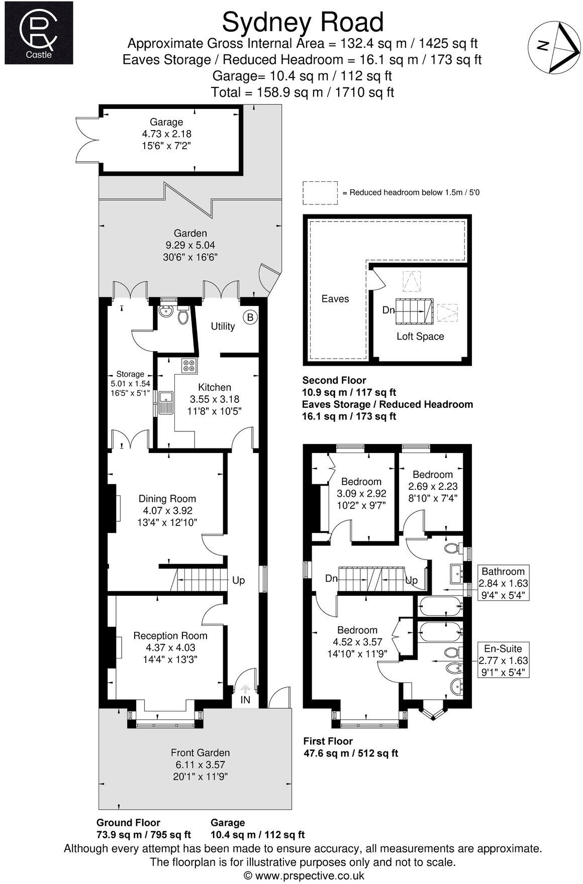
Detached four bedroom family home on quiet road in need of updating throughout, with the distinctive benefit of permission granted to extend and convert into two separate dwellings.
Property Oracle says ..
This property is a 4-bedroom, 3-bathroom detached house located on Sydney Road in Ealing, London. The property is in need of modernisation and some repairs, as evidenced by the images provided. The location is convenient, with several schools and transportation options nearby. The property has a garden, although it appears to require some maintenance. The list price of £899,950 is higher than the average price for the area (£736,069), but it is also significantly larger than the average property size (1,829 sqft vs 955 sqft). The price per sqft is higher than the average, but this is to be expected given the property type and size. More information on the condition of the property and the quality of the garden would be needed to determine a more precise assessment of value.
Therefore, we give this property 6 / 10. *Disclaimer: This is our option and does constitute a recommendation or financial advice. Do your own research. *
- Price
- 6
- Condition
- 4
- Location
- 8
- Land
- 6
- Bedrooms
- 4
- Bathrooms
- 3
- Sqft (est)
- 1,829.43
- Lot (est)
- 1,710.39
The heatmap indicates the level of crime in the area. The color of the heatmap indicates the crime severity and recency.
Metrics Year-on-Year
- Average area value
- 811,000.00 £Increased by 5.83 %
- Est sale value
- 925,691.58 £Decreased by 24.59 %
- Average area rental value
- 2,084.00 £/moDecreased by 2.53 %
- Est letting value
- 1,829.43 £/moUnchanged by 0.00 %
- Est rental Yield
- 3.08 %Decreased by 8.06 %
- Crime Rate
- 3.00 %Unchanged by 0.00 %
Agent Activity
Castle Residential created the listing.
Nearby Schools
| Name | Type | Ofsted | Distance |
|---|---|---|---|
| St John'S Primary School | Community School | Good | 0.57 KM |
| Jubilee Hall Children'S Centre | Children's Centre Linked Site | 0.67 KM | |
| Seva Special School | Other Independent Special School | 0.70 KM | |
| Fielding Primary School | Community School | Outstanding | 0.72 KM |
| Insights Independent School | Other Independent Special School | Good | 0.73 KM |
Images
Nearby Streets
| Name | Average Price | Average Sqft | Distance |
|---|---|---|---|
| Burns Road | £ 0 | 0 | 0.00 KM |
| Dean Villas | £ 0 | 0 | 0.00 KM |
| Aria Mews | £ 0 | 0 | 0.00 KM |
| Dane Road | £ 575,000 | 0 | 0.00 KM |
| Mayo Court | £ 739,950 | 0 | 0.00 KM |
Nearby Transport
| Name | NLC | TLC | Distance |
|---|---|---|---|
| West Ealing | 3188 | WEA | 0.81 KM |
| Drayton Green | 3099 | DRG | 1.31 KM |
| Hanwell | 3191 | HAN | 1.76 KM |
| Castle Bar Park | 3098 | CBP | 1.99 KM |
| Ealing Broadway | 3190 | EAL | 2.55 KM |
Nearby Listings
| Address | Price | Type | Score | Distance |
|---|---|---|---|---|
| Sydney Road, London, W13 | £ 899,950 | BUY | 6 / 10 | 0.00 KM |
| Sydney Road, Ealing, London | £ 635,000 | BUY | 6 / 10 | 0.04 KM |
| Sydney Road, Ealing, London | £ 625,000 | BUY | Unknown | 0.04 KM |
| Adelaide Road, London | £ 420,000 | BUY | 6 / 10 | 0.06 KM |
| Sydney Road, West Ealing | £ 950,000 | BUY | Unknown | 0.07 KM |
Nearby Properties
| Address | Price | Distance |
|---|---|---|
| 68 Sydney Road | £ 495,000 | 0.05 KM |
| 44 Sydney Road | £ 290,000 | 0.05 KM |
| 8 Sydney Road | £ 300,000 | 0.05 KM |
| 74a Sydney Road | £ 165,000 | 0.05 KM |
| 56 Sydney Road | £ 439,950 | 0.05 KM |