Earlswood Drive, Alderholt, SP6
By Carter & May
£ 300,000
Reviews
3 out of 5 stars
Carter & May says ..
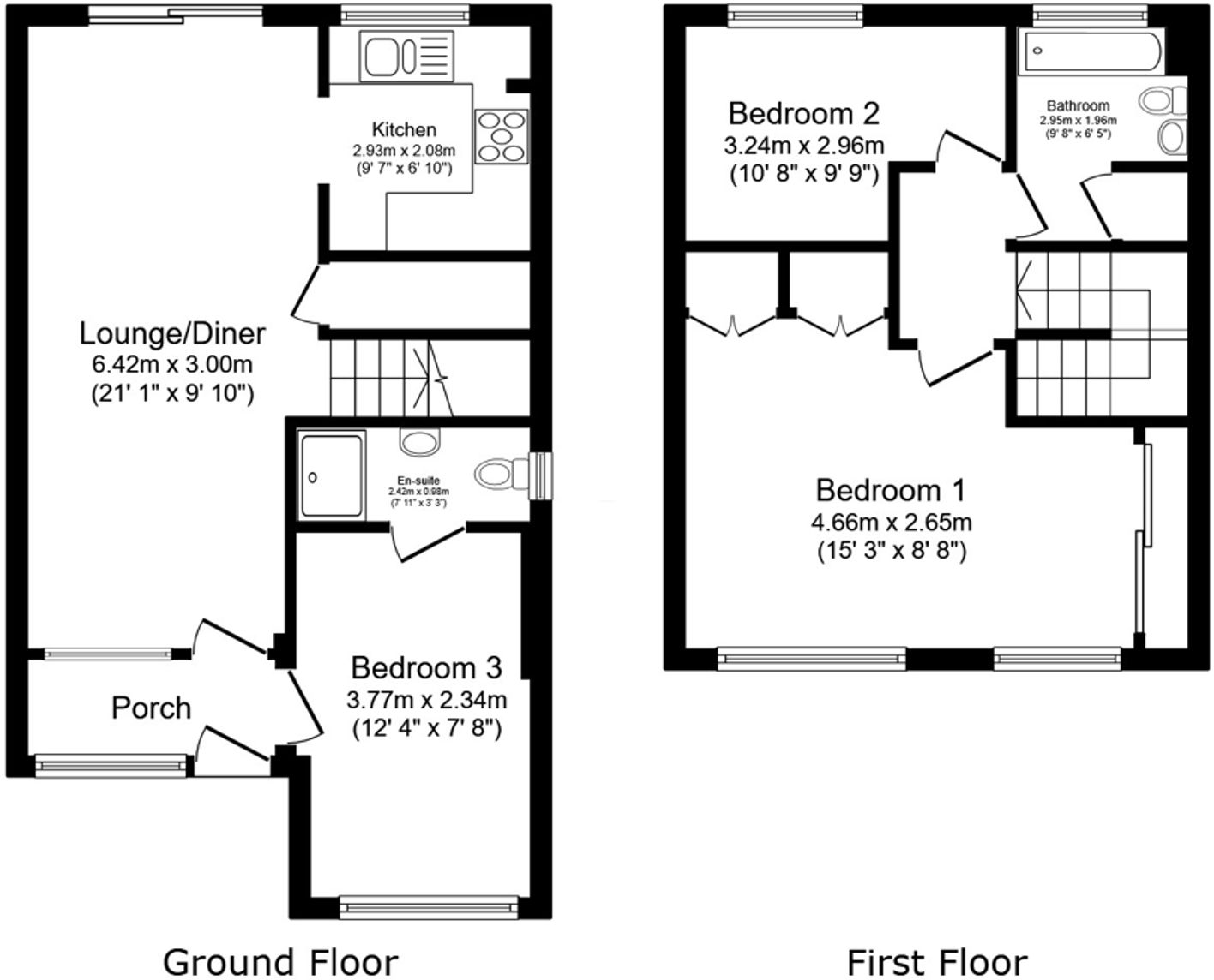
VENDOR SUITED- Carter and May are delighted to offer for sale this stunning 2/3 bedroom home situated in Alderholt. The property has been updated over recent years and is presented to a high standard throughout. The property boasts 2 double bedrooms, a stunning bathroom on the first floor and a...
Property Oracle says ..
Therefore, we give this property 7 / 10. *Disclaimer: This is our option and does constitute a recommendation or financial advice. Do your own research. *
- Price
- 7
- Condition
- 8
- Location
- 7
- Land
- 7
- Bedrooms
- 3
- Bathrooms
- 2
- Sqft (est)
- 687.06
The heatmap indicates the level of crime in the area. The color of the heatmap indicates the crime severity and recency.
Metrics Year-on-Year
- Average area value
- 397,000.00 £Decreased by 32.74 %
- Est sale value
- 178,635.60 £Decreased by 38.82 %
- Average area rental value
- 1,647.00 £/moIncreased by 11.06 %
- Est letting value
- 687.06 £/moUnchanged by 0.00 %
- Est rental Yield
- 4.98 %Increased by 65.45 %
- Crime Rate
- 102.00 %Unchanged by 0.00 %
from 590,278.00 £
from 292,000.50 £
from 1,483.00 £/mo
from 687.06 £/mo
from 3.01 %
from 102.00 %
Agent Activity
Carter & May created the listing.
Nearby Schools
| Name | Type | Ofsted | Distance |
|---|---|---|---|
| St James' Church Of England First School And Nursery, Alderholt | Academy Converter | Good | 0.21 KM |
| Forres Sandle Manor School | Other Independent School | 3.68 KM | |
| The Bridges And Pathways Children'S Centre | Children's Centre | 5.44 KM | |
| Fordingbridge Junior School | Community School | Good | 5.45 KM |
| Fordingbridge Infant School | Community School | Good | 5.45 KM |
Images
Nearby Streets
| Name | Average Price | Average Sqft | Distance |
|---|---|---|---|
| Beech Close | £ 450,000 | 0 | 0.00 KM |
| Hazel Close | £ 0 | 0 | 0.00 KM |
| Station Yard | £ 500,000 | 0 | 0.00 KM |
| Alderholt Road | £ 0 | 0 | 0.00 KM |
Nearby Listings
| Address | Price | Type | Score | Distance |
|---|---|---|---|---|
| Earlswood Drive, Alderholt, SP6 | £ 300,000 | BUY | 7 / 10 | 0.00 KM |
| Earlswood Drive, Alderholt, Fordingbridge | £ 375,000 | BUY | 7 / 10 | 0.05 KM |
| Alder Drive, Alderholt, SP6 | £ 375,000 | BUY | 7 / 10 | 0.07 KM |
| Pear Tree Close, Alderholt, SP6 | £ 260,000 | BUY | 6 / 10 | 0.09 KM |
| Pear Tree Close, Alderholt, SP6 | £ 250,000 | BUY | 6 / 10 | 0.09 KM |
Nearby Properties
| Address | Price | Distance |
|---|---|---|
| 37 Earlswood Drive | £ 192,500 | 0.05 KM |
| 54 Earlswood Drive | £ 263,750 | 0.05 KM |
| 10 Earlswood Drive | £ 190,000 | 0.05 KM |
| 17 Earlswood Drive | £ 193,600 | 0.05 KM |
| 38 Earlswood Drive | £ 171,000 | 0.05 KM |