Tunnel Avenue, Greenwich, SE10
By Madison Brook
£ 675,000
Reviews
3 out of 5 stars
Madison Brook says ..
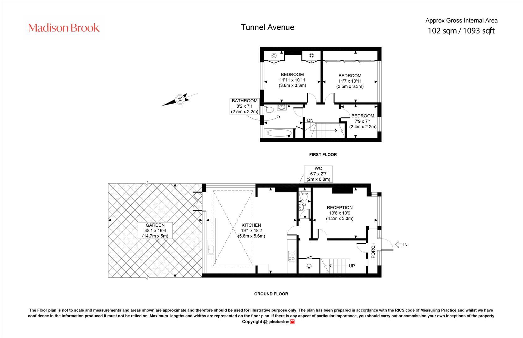
With approved planning permission for a loft conversion, this attractive mid-terraced period home offers over 1,090 sq. ft. of accommodation, off-street parking, and a generous garden. Ideally situated just 0.6 miles from Westcombe Park Station, it combines period character with modern comfort an...
Property Oracle says ..
This is a three-bedroom house located on Tunnel Avenue in Greenwich. The property offers a good amount of living space at 1,615.70 sqft and includes a garden. While the kitchen has been modernised, some other areas of the house could benefit from updating. The location is convenient, with nearby schools and transportation links. Considering the size and location, the asking price of £675,000 seems reasonable.
Therefore, we give this property 6 / 10. *Disclaimer: This is our option and does constitute a recommendation or financial advice. Do your own research. *
- Price
- 7
- Condition
- 6
- Location
- 7
- Land
- 7
- Bedrooms
- 3
- Bathrooms
- 1
- Sqft (est)
- 1,615.70
The heatmap indicates the level of crime in the area. The color of the heatmap indicates the crime severity and recency.
Metrics Year-on-Year
- Average area value
- 557,097.00 £Increased by 12.74 %
- Est sale value
- 1,137,452.80 £Increased by 22.65 %
- Average area rental value
- 2,359.00 £/moIncreased by 2.83 %
- Est letting value
- 3,231.40 £/moUnchanged by 0.00 %
- Est rental Yield
- 5.08 %Decreased by 8.80 %
- Crime Rate
- 5.00 %Unchanged by 0.00 %
Agent Activity
Madison Brook created the listing.
Nearby Schools
| Name | Type | Ofsted | Distance |
|---|---|---|---|
| Halstow Primary School | Academy Converter | Good | 0.49 KM |
| Millennium Primary School | Academy Converter | 0.56 KM | |
| Christ Church Church Of England Primary School | Voluntary Aided School | Good | 0.69 KM |
| Robert Owen Nursery School | Local Authority Nursery School | Outstanding | 0.70 KM |
| Robert Owen Early Years Centre | Children's Centre | 0.74 KM |
Images
Nearby Streets
| Name | Average Price | Average Sqft | Distance |
|---|---|---|---|
| Blackwall Tunnel Approach | £ 0 | 0 | 0.00 KM |
| Neal Street | £ 0 | 0 | 0.00 KM |
| Christchurch Way | £ 0 | 0 | 0.00 KM |
| Old School Close | £ 0 | 0 | 0.00 KM |
| Banning Street | £ 0 | 0 | 0.00 KM |
Nearby Transport
| Name | NLC | TLC | Distance |
|---|---|---|---|
| Westcombe Park | 5151 | WCB | 0.82 KM |
| Maze Hill | 5149 | MZH | 1.26 KM |
| Charlton | 5144 | CTN | 2.08 KM |
| Blackheath | 5095 | BKH | 2.58 KM |
| Greenwich | 5146 | GNW | 3.10 KM |
Nearby Listings
| Address | Price | Type | Score | Distance |
|---|---|---|---|---|
| Tunnel Avenue, Greenwich, SE10 | £ 675,000 | BUY | 6 / 10 | 0.00 KM |
| Tunnel Avenue, Greenwich, SE10 | £ 700,000 | BUY | 6 / 10 | 0.00 KM |
| Tunnel Avenue London SE10 | £ 500,000 | BUY | 5 / 10 | 0.07 KM |
| Fingal Street, Greenwich, London, SE10 | £ 800,000 | BUY | Unknown | 0.09 KM |
| Fingal Street, Greenwich, SE10 | £ 835,000 | BUY | 7 / 10 | 0.12 KM |
Nearby Properties
| Address | Price | Distance |
|---|---|---|
| 148 Tunnel Avenue | £ 277,500 | 0.06 KM |
| 140 Tunnel Avenue | £ 240,000 | 0.06 KM |
| 62a Tunnel Avenue | £ 39,000 | 0.06 KM |
| 96 Tunnel Avenue | £ 425,000 | 0.07 KM |
| 72 Tunnel Avenue | £ 210,000 | 0.07 KM |