Grace Farrant Road, Great Cornard
By Bychoice
£ 118,000
Reviews
3 out of 5 stars
Bychoice says ..
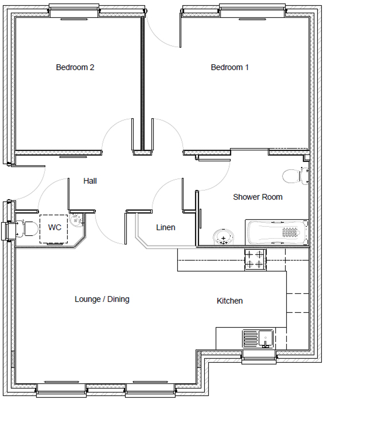
A rare opportunity to purchase this 2 bedroom shared ownership bungalow on the new Woodlands Rise development in Great Cornard, supplied by Havebury Housing. Call for more information. (Price quoted is 40% share).
Property Oracle says ..
This semi-detached bungalow is located on Grace Farrant Road in Great Cornard, Babergh, Suffolk. The property features 2 bedrooms and 1 bathroom within its 640 sqft layout. The location benefits from proximity to schools and transportation links. The interior photos suggest the property is in good, modern condition. The property includes a garden with a shed, offering outdoor space. Considering the average price per sqft in the area, the price appears to be very competitive.
Therefore, we give this property 7 / 10. *Disclaimer: This is our option and does constitute a recommendation or financial advice. Do your own research. *
- Price
- 9
- Condition
- 8
- Location
- 7
- Land
- 7
- Bedrooms
- 2
- Bathrooms
- 1
- Sqft (est)
- 640.00
The heatmap indicates the level of crime in the area. The color of the heatmap indicates the crime severity and recency.
Metrics Year-on-Year
- Average area value
- 354,375.00 £Increased by 7.35 %
- Est sale value
- 229,120.00 £Increased by 115.66 %
- Average area rental value
- 1,039.00 £/moIncreased by 4.95 %
- Est letting value
- 640.00 £/mo
- Est rental Yield
- 3.52 %Decreased by 2.22 %
- Crime Rate
- 1.00 %Unchanged by 0.00 %
Agent Activity
Bychoice created the listing.
Nearby Schools
| Name | Type | Ofsted | Distance |
|---|---|---|---|
| Thomas Gainsborough School | Academy Converter | Good | 1.04 KM |
| Wells Hall Primary School | Academy Sponsor Led | Good | 1.09 KM |
| Cornfields Children'S Centre | Children's Centre | 1.54 KM | |
| Pot Kiln Primary School | Community School | Good | 1.85 KM |
| Chalk Hill | Academy Alternative Provision Sponsor Led | 2.16 KM |
Images
Nearby Streets
| Name | Average Price | Average Sqft | Distance |
|---|---|---|---|
| Wakelin Close | £ 313,333 | 0 | 0.00 KM |
| Upper Tye Cottages | £ 675,000 | 0 | 0.00 KM |
| Church Field Road | £ 350,000 | 0 | 0.00 KM |
Nearby Transport
| Name | NLC | TLC | Distance |
|---|---|---|---|
| Sudbury (Suffolk) | 7098 | SUY | 3.10 KM |
| Bures | 7085 | BUE | 6.52 KM |
Nearby Listings
| Address | Price | Type | Score | Distance |
|---|---|---|---|---|
| Grace Farrant Road, Great Cornard | £ 118,000 | BUY | 7 / 10 | 0.00 KM |
| Marshall Drive, Great Cornard | £ 400,000 | BUY | 7 / 10 | 0.05 KM |
| Marshall Drive, Great Cornard | £ 390,000 | BUY | Unknown | 0.07 KM |
| Kilby Way, Great Cornard | £ 345,000 | BUY | 6 / 10 | 0.11 KM |
| Kilby Way, Great Cornard | £ 350,000 | BUY | 7 / 10 | 0.11 KM |
Nearby Properties
| Address | Price | Distance |
|---|---|---|
| 8 Brands Close | £ 178,000 | 0.27 KM |
| 11 Brands Close | £ 185,000 | 0.27 KM |
| 2 Brands Close | £ 278,000 | 0.27 KM |
| 10 Brands Close | £ 297,500 | 0.27 KM |
| 4 Brands Close | £ 372,500 | 0.27 KM |