Land to the rear of Maderia lodge, Drury Lane, Bicker, Boston, Lincolnshire, PE20
PY

Land to the rear of Maderia lodge, Drury Lane, Bicker, Boston, Lincolnshire, PE20

By Pygott & Crone

£ 375,000

Reviews

3 out of 5 stars

Pygott & Crone says ..

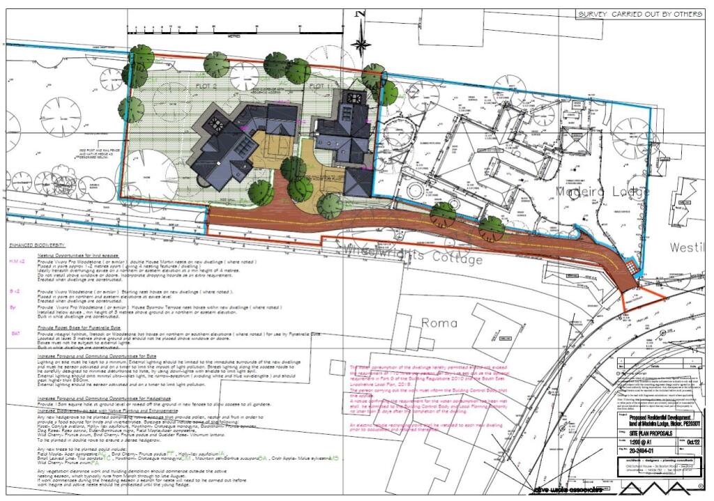
A rare and exciting opportunity to purchase a residential development site with full planning permission granted for up to 2 dwellings, all set within and included in the sale, an approximate just over 3.10 acre site, subject to survey.

Property Oracle says ..

This property presents a compelling investment opportunity in the desirable village of Bicker, Lincolnshire. The site encompasses over 3.1 acres of land and benefits from full planning permission for two dwellings. This eliminates the risks and uncertainties often associated with acquiring land requiring planning approvals, making it an attractive option for developers. The plans reveal a considered design intended to blend into the existing character of the village. The proximity to local amenities, including a good primary school, enhances the desirability of the development, though the lack of immediate access to larger towns or cities may be a consideration for potential residents. Given the land size and the existing planning permissions, the list price reflects a balanced value for the property, making it a particularly suitable choice for investors or developers, aiming for a residential development within this peaceful setting. The absence of key data points (house sqft and plot size in sqft) prevents a precise comparative market analysis. Future prices of the resultant buildings will be dictated by the prevailing market conditions, materials costs, and construction timelines.

Therefore, we give this property 7 / 10. *Disclaimer: This is our option and does constitute a recommendation or financial advice. Do your own research. *

Price
7
Condition
8
Location
7
Land
9
Bedrooms
0
Bathrooms
0

The heatmap indicates the level of crime in the area. The color of the heatmap indicates the crime severity and recency.

Metrics Year-on-Year

Average area value
642,000.00 £
Increased by 16.43 %
from 551,427.00 £
Average area rental value
1,065.00 £/mo
Decreased by 51.26 %
from 2,185.00 £/mo
Est rental Yield
1.99 %
Decreased by 58.11 %
from 4.75 %
Crime Rate
10.00 %
Unchanged by 0.00 %
from 10.00 %

Agent Activity

  • Pygott & Crone created the listing.

Nearby Schools

NameTypeOfstedDistance
Bicker Preparatory School And Early YearsOther Independent SchoolGood0.39 KM
The Thomas Cowley High SchoolAcademy ConverterGood2.53 KM
The Donington Cowley Endowed Primary SchoolVoluntary Controlled SchoolGood3.15 KM
Quadring Cowley & Brown'S Primary SchoolVoluntary Controlled SchoolGood3.30 KM
Swineshead And Holland FenChildren's Centre Linked Site4.13 KM

Images

Map Development Land (Bicker)-8 Map Development Land (Bicker)-2 Development Land (Bicker)-3 Development Land (Bicker)-4 Development Land (Bicker)-5 Development Land (Bicker)-6 Map Development Land (Bicker)-7 Map Development Land (Bicker)-1

Nearby Streets

NameAverage PriceAverage SqftDistance
Rookery Road £ 000.00 KM

Nearby Transport

NameNLCTLCDistance
Swineshead6228SWE5.63 KM

Nearby Listings

AddressPriceTypeScoreDistance
Land to the rear of Maderia lodge, Drury Lane, Bicker, Boston, Lincolnshire, PE20 £ 375,000BUY7 / 100.00 KM
Drury Lane, Bicker, Boston, PE20 £ 175,000BUY5 / 100.06 KM
62 Drury Lane, Bicker, Boston PE20 3DT £ 150,000BUY6 / 100.06 KM
Drury Lane, Bicker, PE20 £ 130,000BUY6 / 100.08 KM
Drury Lane, Bicker, Boston, Lincolnshire, PE20 £ 162,500BUY7 / 100.23 KM

Nearby Properties

AddressPriceDistance
37 Drury Lane £ 125,0000.06 KM
Four Winds £ 189,9500.06 KM
72 Drury Lane £ 210,0000.06 KM
66 Drury Lane £ 283,0000.06 KM
76 Drury Lane £ 209,9500.06 KM