Yopa says ..
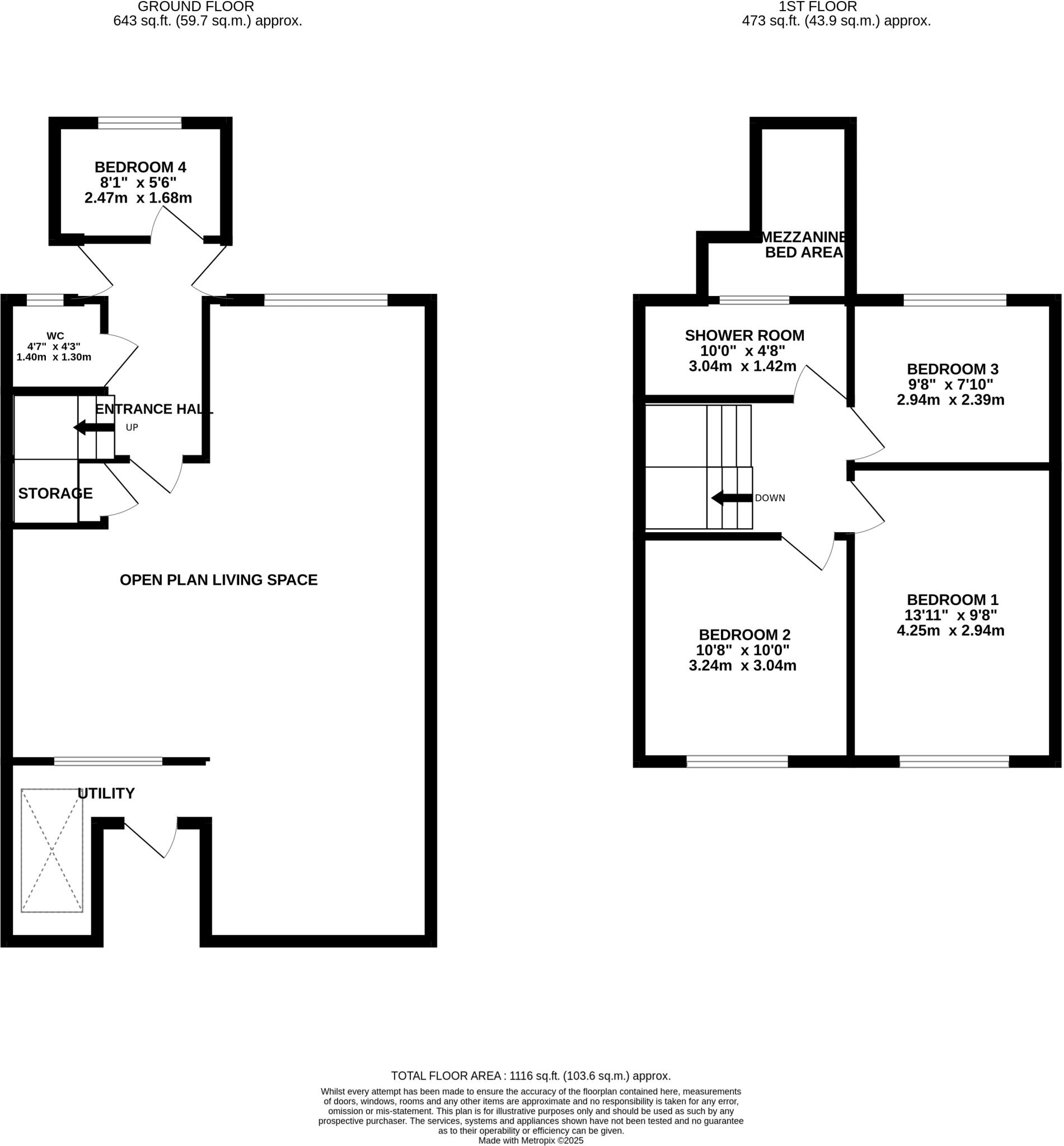
Yopa Plymouth proudly present this stunning four-bed extended family home. Immaculate and move-in ready with solid oak flooring, luxury kitchen with double Samsung ovens, Caple hob, and utility. Includes mezzanine guest room, three doubles with wardrobes, stylish shower room, and composite garden.
Property Oracle says ..
This is a terraced property in Moor View, Plymouth. The house has 4 bedrooms and 2 bathrooms. The property is in good condition, with modern fixtures and fittings. The kitchen and bathrooms appear to have been recently renovated. The property has a small outdoor decked area. The property is located close to Leigham Primary School, which has a good Ofsted rating. Plymouth train station is 5.87 KM away. The property is listed for £250,000, which is above the average price for the area.
Therefore, we give this property 6 / 10. *Disclaimer: This is our option and does constitute a recommendation or financial advice. Do your own research. *
- Price
- 6
- Condition
- 8
- Location
- 7
- Land
- 6
- Bedrooms
- 4
- Bathrooms
- 2
- Sqft (est)
- 432.45
The heatmap indicates the level of crime in the area. The color of the heatmap indicates the crime severity and recency.
Metrics Year-on-Year
- Average area value
- 225,707.00 £Decreased by 17.16 %
- Est sale value
- 110,274.75 £Increased by 0.39 %
- Average area rental value
- 1,211.00 £/moDecreased by 8.88 %
- Est letting value
- 432.45 £/moUnchanged by 0.00 %
- Est rental Yield
- 6.44 %Increased by 10.09 %
- Crime Rate
- 5.00 %Unchanged by 0.00 %
Agent Activity
Yopa created the listing.
Nearby Schools
| Name | Type | Ofsted | Distance |
|---|---|---|---|
| Leigham Primary School | Academy Converter | Good | 0.76 KM |
| D.E.L.L. Children'S Centre | Children's Centre | 0.97 KM | |
| Austin Farm Academy | Academy Sponsor Led | Requires improvement | 1.33 KM |
| Crownlands Children'S Centre | Children's Centre | 1.42 KM | |
| Plym Bridge Nursery And Day Care | Local Authority Nursery School | Good | 1.51 KM |
Images
Nearby Streets
| Name | Average Price | Average Sqft | Distance |
|---|---|---|---|
| Leigham Manor drive | £ 215,000 | 0 | 0.00 KM |
| Old Plymouth Road | £ 425,000 | 0 | 0.00 KM |
| Florida Gardens | £ 0 | 0 | 0.00 KM |
| Cardigan Road | £ 0 | 0 | 0.00 KM |
| Carisbrooke Road | £ 325,000 | 0 | 0.00 KM |
Nearby Transport
| Name | NLC | TLC | Distance |
|---|---|---|---|
| Plymouth | 3580 | PLY | 5.87 KM |
| Devonport | 3579 | DPT | 8.71 KM |
| Dockyard (Devonport) | 3588 | DOC | 9.18 KM |
| Keyham | 3571 | KEY | 9.46 KM |
Nearby Listings
| Address | Price | Type | Score | Distance |
|---|---|---|---|---|
| Dawlish Walk, Plymouth, PL6 | £ 250,000 | BUY | 6 / 10 | 0.00 KM |
| Dartmouth Walk, Plymouth | £ 155,000 | BUY | 6 / 10 | 0.08 KM |
| Dartmouth Walk, Plymouth, Devon | £ 160,000 | BUY | 5 / 10 | 0.16 KM |
| Dartmouth Walk, Plymouth | £ 220,000 | BUY | 6 / 10 | 0.16 KM |
| Dartmouth Walk, Plymouth | £ 200,000 | BUY | Unknown | 0.16 KM |
Nearby Properties
| Address | Price | Distance |
|---|---|---|
| 59 Dartmouth Walk | £ 112,000 | 0.07 KM |
| 57 Dartmouth Walk | £ 170,000 | 0.07 KM |
| 71 Dartmouth Walk | £ 22,950 | 0.07 KM |
| 83 Dartmouth Walk | £ 115,500 | 0.07 KM |
| 4 Chagford Walk | £ 46,500 | 0.08 KM |