Rolfe East says ..
A fantastic opportunity to purchase this three bedroom terrace family home, situated on this highly sought after road and brought to the market without any onward chain. This already lovely home has even more potential to extend to the rear or into the loft (subject to planning consents)...
Property Oracle says ..
The property is a three-bedroom house located on Haslemere Avenue in Northfield, Ealing, London. It benefits from its proximity to well-regarded schools and transportation links. However, the property is in need of significant renovation and modernisation. The garden requires attention. The asking price of £899,950 reflects the property’s location and size, but also its condition.
Therefore, we give this property 5 / 10. *Disclaimer: This is our option and does constitute a recommendation or financial advice. Do your own research. *
- Price
- 6
- Condition
- 3
- Location
- 7
- Land
- 6
- Bedrooms
- 3
- Bathrooms
- 1
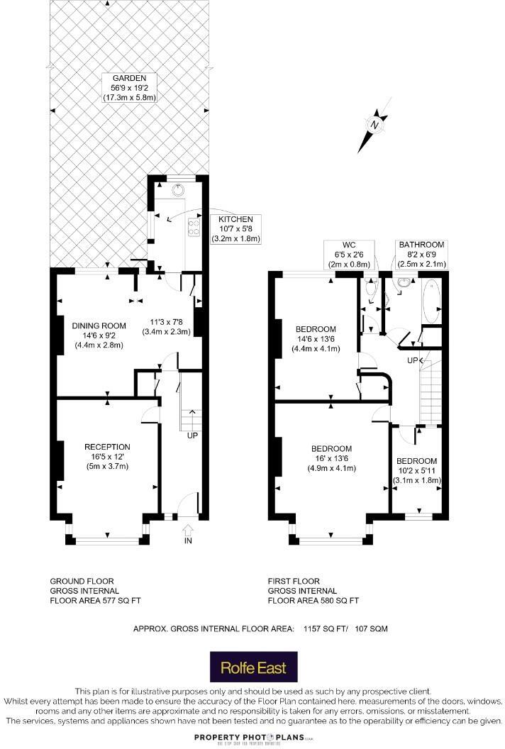
- Sqft (est)
- 1,157.00
The heatmap indicates the level of crime in the area. The color of the heatmap indicates the crime severity and recency.
Metrics Year-on-Year
- Average area value
- 448,325.00 £Decreased by 13.51 %
- Est sale value
- 597,012.00 £Increased by 0.98 %
- Average area rental value
- 1,480.00 £/moDecreased by 11.32 %
- Est letting value
- 1,157.00 £/moUnchanged by 0.00 %
- Est rental Yield
- 3.96 %Increased by 2.59 %
- Crime Rate
- 3.00 %Unchanged by 0.00 %
Agent Activity
Rolfe East created the listing.
Nearby Schools
| Name | Type | Ofsted | Distance |
|---|---|---|---|
| Fielding Primary School | Community School | Outstanding | 0.48 KM |
| Elthorne Park High School | Community School | Outstanding | 0.57 KM |
| Oaklands Primary School | Community School | Good | 0.99 KM |
| Log Cabin Children'S Centre | Children's Centre | 1.23 KM | |
| Gunnersbury Catholic School | Voluntary Aided School | Outstanding | 1.34 KM |
Images
Nearby Streets
| Name | Average Price | Average Sqft | Distance |
|---|---|---|---|
| Boston Manor Road | £ 0 | 0 | 0.00 KM |
| Burns Road | £ 0 | 0 | 0.00 KM |
| Mayo Court | £ 739,950 | 0 | 0.00 KM |
| Edinburgh Road | £ 799,950 | 0 | 0.00 KM |
| Rosedale Close | £ 0 | 0 | 0.00 KM |
Nearby Transport
| Name | NLC | TLC | Distance |
|---|---|---|---|
| West Ealing | 3188 | WEA | 1.67 KM |
| Syon Lane | 5609 | SYL | 1.94 KM |
| Drayton Green | 3099 | DRG | 2.04 KM |
| Hanwell | 3191 | HAN | 2.09 KM |
| Brentford | 5552 | BFD | 2.10 KM |
Nearby Listings
| Address | Price | Type | Score | Distance |
|---|---|---|---|---|
| Haslemere Avenue, London | £ 899,950 | BUY | 5 / 10 | 0.00 KM |
| Haslemere Avenue, Ealing, London | £ 650,000 | BUY | Unknown | 0.01 KM |
| Haslemere Avenue, London | £ 900,000 | BUY | 5 / 10 | 0.04 KM |
| Haslemere Avenue, London | £ 1,350,000 | BUY | 7 / 10 | 0.10 KM |
| Raymond Avenue, London | £ 1,000,000 | BUY | 7 / 10 | 0.17 KM |
Nearby Properties
| Address | Price | Distance |
|---|---|---|
| 53 Haslemere Avenue | £ 622,500 | 0.10 KM |
| 17 Haslemere Avenue | £ 775,000 | 0.10 KM |
| 35 Haslemere Avenue | £ 868,000 | 0.10 KM |
| 51 Haslemere Avenue | £ 800,000 | 0.10 KM |
| 43 Haslemere Avenue | £ 660,000 | 0.10 KM |