Tudor Drive, Kingston Upon Thames
By Gibson Lane
£ 1,050,000
Reviews
3 out of 5 stars
Gibson Lane says ..
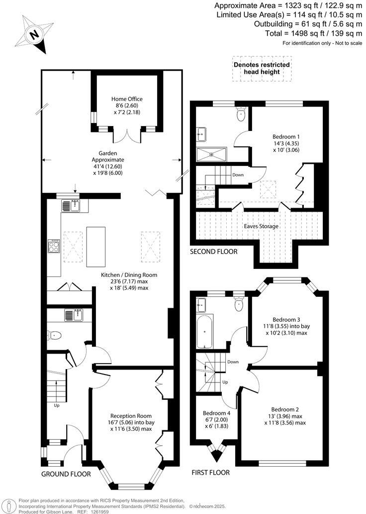
A beautifully presented home situated on this popular North Kingston road offers spacious accommodation across three floors totalling almost 1500sqft (including home office). The lovely property has been completed extended and modernised by the current owners to an extremely high specification, ...
Property Oracle says ..
This is a well-presented terraced house on Tudor Drive, Kingston Upon Thames. The property benefits from a modern interior, a well-maintained garden, and proximity to good schools and local amenities. The property offers four bedrooms and two bathrooms, making it suitable for families. The location is a major selling point, with excellent transport links and a desirable residential setting. The price is competitive for the area, considering the size and condition of the property.
Therefore, we give this property 7 / 10. *Disclaimer: This is our option and does constitute a recommendation or financial advice. Do your own research. *
- Price
- 7
- Condition
- 8
- Location
- 8
- Land
- 6
- Bedrooms
- 4
- Bathrooms
- 2
- Sqft (est)
- 1,157.12
The heatmap indicates the level of crime in the area. The color of the heatmap indicates the crime severity and recency.
Metrics Year-on-Year
- Average area value
- 668,750.00 £Decreased by 1.97 %
- Est sale value
- 717,414.40 £Decreased by 5.05 %
- Average area rental value
- 2,575.00 £/moDecreased by 1.83 %
- Est letting value
- 2,314.24 £/moUnchanged by 0.00 %
- Est rental Yield
- 4.62 %Increased by 0.22 %
- Crime Rate
- 1.00 %Unchanged by 0.00 %
Agent Activity
Gibson Lane created the listing.
Nearby Schools
| Name | Type | Ofsted | Distance |
|---|---|---|---|
| The Tiffin Girls' School | Academy Converter | Outstanding | 0.37 KM |
| The Kingston Academy | Free Schools | Outstanding | 0.46 KM |
| Fern Hill Primary School | Academy Converter | 0.54 KM | |
| North Kingston Children'S Centre | Children's Centre | 0.71 KM | |
| Latchmere School | Academy Converter | Good | 0.81 KM |
Images
Nearby Streets
| Name | Average Price | Average Sqft | Distance |
|---|---|---|---|
| Beech Row | £ 0 | 0 | 0.00 KM |
| St Albans Road | £ 1,350,000 | 0 | 0.00 KM |
| Studland Road | £ 1,650,000 | 0 | 0.00 KM |
| Barnfield Avenue | £ 0 | 0 | 0.00 KM |
| Wych Elm Close | £ 0 | 0 | 0.00 KM |
Nearby Transport
| Name | NLC | TLC | Distance |
|---|---|---|---|
| Kingston | 5565 | KNG | 1.63 KM |
| Hampton Wick | 5589 | HMW | 1.99 KM |
| Norbiton | 5568 | NBT | 2.44 KM |
| Teddington | 5572 | TED | 3.63 KM |
| Berrylands | 5581 | BRS | 3.81 KM |
Nearby Listings
| Address | Price | Type | Score | Distance |
|---|---|---|---|---|
| Tudor Drive, Kingston Upon Thames | £ 1,050,000 | BUY | 7 / 10 | 0.00 KM |
| Tudor Drive, Kingston Upon Thames, KT2 | £ 895,000 | BUY | 7 / 10 | 0.07 KM |
| Tudor Drive, Kingston Upon Thames | £ 925,000 | BUY | 7 / 10 | 0.07 KM |
| Tudor Drive, Kingston Upon Thames | £ 995,000 | BUY | 7 / 10 | 0.11 KM |
| Barnfield Avenue, Kingston Upon Thames | £ 975,000 | BUY | Unknown | 0.12 KM |
Nearby Properties
| Address | Price | Distance |
|---|---|---|
| 139 Tudor Drive | £ 389,950 | 0.05 KM |
| 123 Tudor Drive | £ 425,000 | 0.05 KM |
| 125 Tudor Drive | £ 250,000 | 0.05 KM |
| 111 Tudor Drive | £ 846,000 | 0.05 KM |
| 127 Tudor Drive | £ 219,250 | 0.05 KM |