10 Hyde Lane, Nash Mills, Hemel Hempstead, Hertfordshire, HP3 8RY
By Auction House London
£ 350,000
Reviews
2 out of 5 stars
Auction House London says ..
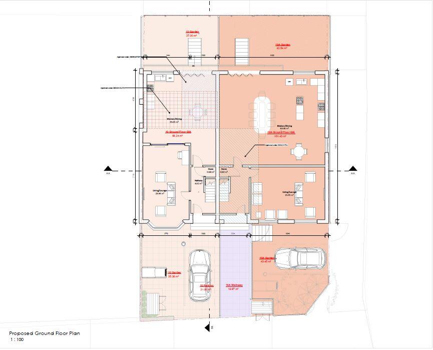
**For Sale By Public Auction 16th October 2025 09:30 AM To inspect the legal documents for this property go to our website to download the legal pack** A Vacant Three Bedroom Semi Detached House with a Detached Garage. Offered With Planning Permission for a Two Sto...
Property Oracle says ..
The property at 10 Hyde Lane, Nash Mills, is a semi-detached house requiring extensive renovation. While the location offers good access to schools and transportation, the property’s condition suggests a need for significant investment to modernize and update the interior and exterior. The presence of gardens is a positive feature, and the price reflects the renovation needs, presenting an opportunity for buyers looking to add value.
Therefore, we give this property 5 / 10. *Disclaimer: This is our option and does constitute a recommendation or financial advice. Do your own research. *
- Price
- 7
- Condition
- 3
- Location
- 7
- Land
- 5
- Bedrooms
- 3
- Bathrooms
- 0
- Sqft (est)
- 452.08
The heatmap indicates the level of crime in the area. The color of the heatmap indicates the crime severity and recency.
Metrics Year-on-Year
- Average area value
- 273,747.00 £Decreased by 7.23 %
- Est sale value
- 165,461.28 £Increased by 23.65 %
- Average area rental value
- 1,032.00 £/moDecreased by 0.77 %
- Est letting value
- 452.08 £/moUnchanged by 0.00 %
- Est rental Yield
- 4.52 %Increased by 6.86 %
- Crime Rate
- 5.00 %Unchanged by 0.00 %
Agent Activity
Auction House London created the listing.
Nearby Schools
| Name | Type | Ofsted | Distance |
|---|---|---|---|
| Abbot'S Hill School | Other Independent School | 0.70 KM | |
| Nash Mills Church Of England Primary School | Voluntary Aided School | Good | 1.29 KM |
| Kings Langley Primary School | Community School | Good | 1.33 KM |
| D10 Three Villages Family Centre | Children's Centre | 1.34 KM | |
| Chambersbury Primary School | Foundation School | Good | 1.71 KM |
Images
Nearby Streets
| Name | Average Price | Average Sqft | Distance |
|---|---|---|---|
| Red Lion Lane | £ 0 | 0 | 0.00 KM |
| Havelock Road | £ 0 | 0 | 0.00 KM |
| The Leas | £ 0 | 0 | 0.00 KM |
| The Glebe | £ 0 | 0 | 0.00 KM |
| The Warren | £ 0 | 0 | 0.00 KM |
Nearby Transport
| Name | NLC | TLC | Distance |
|---|---|---|---|
| Apsley | 1430 | APS | 2.09 KM |
| Kings Langley | 1392 | KGL | 2.10 KM |
| Hemel Hempstead | 1391 | HML | 5.34 KM |
| Watford North | 1403 | WFN | 8.20 KM |
| Garston (Hertfordshire) | 1559 | GSN | 8.24 KM |
Nearby Listings
| Address | Price | Type | Score | Distance |
|---|---|---|---|---|
| 10 Hyde Lane, Nash Mills, Hemel Hempstead, Hertfordshire, HP3 8RY | £ 350,000 | BUY | 5 / 10 | 0.00 KM |
| 10 Hyde Lane, Nash Mills, Hemel Hempstead, Hertfordshire, HP3 8RY | £ 350,000 | BUY | 5 / 10 | 0.00 KM |
| 10 Hyde Lane, Nash Mills, Hemel Hempstead, HP3 8RY | £ 325,000 | BUY | Unknown | 0.00 KM |
| 10 Hyde Lane, Nash Mills, Hemel Hempstead, Hertfordshire, HP3 8RY | £ 390,000 | BUY | 5 / 10 | 0.00 KM |
| Hyde Lane, Nash Mills, HP3 | £ 450,000 | BUY | 4 / 10 | 0.07 KM |
Nearby Properties
| Address | Price | Distance |
|---|---|---|
| 5 Woodlands Road | £ 385,000 | 0.09 KM |
| 6 Woodlands Road | £ 356,000 | 0.09 KM |
| 2 Woodlands Road | £ 191,000 | 0.09 KM |
| 15 Woodlands Road | £ 378,500 | 0.09 KM |
| 3 Woodlands Road | £ 470,000 | 0.09 KM |