Berryman's says ..
GUIDE PRICE £95,000 - £145,000
Property Oracle says ..
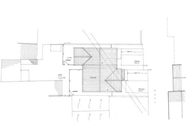
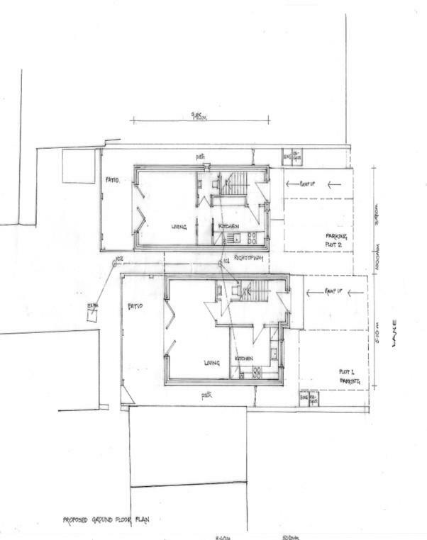
This property listing presents a development opportunity rather than a ready-to-move-in home. The listing showcases two garages situated on High Street, Burnham-on-Sea. The location offers proximity to amenities and transport links, including the Highbridge & Burnham train station. Several primary schools are within a reasonable distance.
The images depict two garages which appear to be structurally sound but in need of significant renovation. The property is being sold as a development opportunity. Detailed planning permission would be required prior to any work.
The asking price of £95,000 needs careful consideration. While there is a high demand for property in the area, this price should be viewed in conjunction with the considerable costs associated with transforming the garages into a habitable dwelling. Local comparable properties are higher in price, but they also include habitable space. The available information lacks detail on essential aspects such as planning permission, potential structural issues, and internal condition. Potential buyers should undertake a full structural survey and gain clarity on potential planning restrictions before proceeding.
Therefore, we give this property 4 / 10. *Disclaimer: This is our option and does constitute a recommendation or financial advice. Do your own research. *
- Price
- 6
- Condition
- 4
- Location
- 7
- Land
- 1
- Bedrooms
- 0
- Bathrooms
- 0
- Sqft (est)
- 430.00
The heatmap indicates the level of crime in the area. The color of the heatmap indicates the crime severity and recency.
Metrics Year-on-Year
- Average area value
- 277,658.00 £Decreased by 1.13 %
- Est sale value
- 124,700.00 £Increased by 4.32 %
- Average area rental value
- 942.00 £/moDecreased by 17.59 %
- Est letting value
- 0.00 £/moDecreased by 100.00 %
- Est rental Yield
- 4.07 %Decreased by 16.60 %
- Crime Rate
- 85.00 %Unchanged by 0.00 %
Agent Activity
Berryman's marked this listing as sold.
Berryman's created the listing.
Nearby Schools
| Name | Type | Ofsted | Distance |
|---|---|---|---|
| St Andrew'S Church Of England Voluntary Controlled Junior School | Voluntary Controlled School | Good | 0.35 KM |
| Burnham-On-Sea Building | Children's Centre Linked Site | 1.25 KM | |
| Burnham-On-Sea Community Infant School | Community School | Outstanding | 1.39 KM |
| The King Alfred School An Academy | Academy Sponsor Led | 1.71 KM | |
| Churchfield Church School | Academy Sponsor Led | Good | 2.56 KM |
Images
Nearby Streets
| Name | Average Price | Average Sqft | Distance |
|---|---|---|---|
| High Street | £ 365,000 | 0 | 0.00 KM |
| Ham Lane | £ 243,333 | 0 | 0.00 KM |
| South Street | £ 182,469 | 0 | 0.00 KM |
| Old Station Approach | £ 364,950 | 0 | 0.00 KM |
| College Street | £ 164,950 | 0 | 0.00 KM |
Nearby Transport
| Name | NLC | TLC | Distance |
|---|---|---|---|
| Highbridge And Burnham | 3314 | HIG | 3.29 KM |
Nearby Listings
| Address | Price | Type | Score | Distance |
|---|---|---|---|---|
| High Street, Burnham-on-Sea | £ 95,000 | BUY | 4 / 10 | 0.00 KM |
| High Street, Burnham-on-Sea | £ 85,000 | BUY | 5 / 10 | 0.00 KM |
| Abingdon Street, Burnham on Sea, Somerset, TA8 | £ 249,950 | BUY | 7 / 10 | 0.04 KM |
| Abingdon Street, Burnham-On-Sea | £ 205,995 | BUY | 6 / 10 | 0.07 KM |
| Adam Street, Burnham-on-Sea, Somerset, TA8 | £ 150,000 | BUY | 5 / 10 | 0.12 KM |
Nearby Properties
| Address | Price | Distance |
|---|---|---|
| 7 Abingdon Street | £ 96,000 | 0.04 KM |
| 5 Abingdon Street | £ 85,000 | 0.04 KM |
| 11a Abingdon Street | £ 99,000 | 0.04 KM |
| 30 Abingdon Street | £ 140,000 | 0.04 KM |
| 15 Abingdon Street | £ 123,000 | 0.04 KM |