Keystone says ..
Set right on the Ipswich Waterfront this immaculate two bedroom first floor apartment offers a great opportunity for a buyer looking for modern living with views over the Ipswich Marina.
Property Oracle says ..
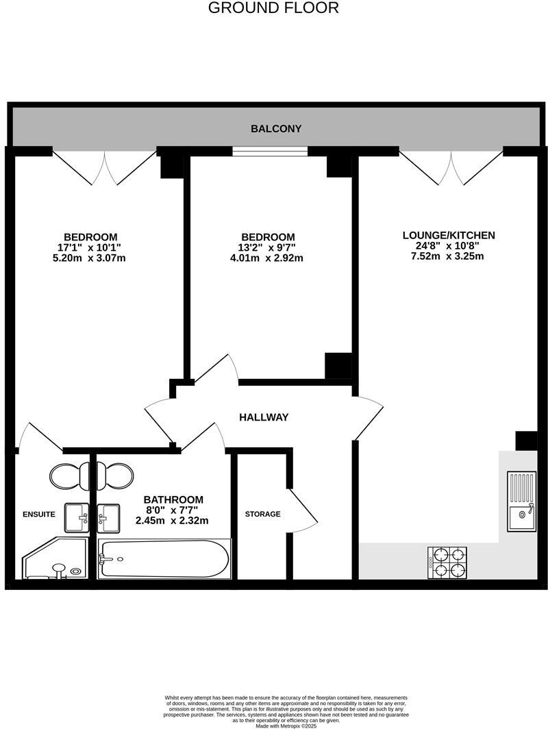
This property is a two bedroom, two bathroom apartment located in Ipswich, Suffolk. The apartment is modern and well-presented, with a stylish kitchen and bathrooms. The location is excellent, situated near the waterfront with views of the marina. There are several schools and transport links nearby. The apartment is on the smaller side at 846.80 sqft, and the lack of outdoor space is a drawback. Compared to the average price per sqft in the area (492.00), the list price of £249,950 seems reasonable, although slightly above average.
Therefore, we give this property 6 / 10. *Disclaimer: This is our option and does constitute a recommendation or financial advice. Do your own research. *
- Price
- 7
- Condition
- 9
- Location
- 9
- Land
- 1
- Bedrooms
- 2
- Bathrooms
- 2
- Sqft (est)
- 846.80
The heatmap indicates the level of crime in the area. The color of the heatmap indicates the crime severity and recency.
Metrics Year-on-Year
- Average area value
- 570,435.00 £Increased by 16.78 %
- Est sale value
- 486,063.20 £Increased by 21.35 %
- Average area rental value
- 1,562.00 £/moIncreased by 10.39 %
- Est letting value
- 846.80 £/moUnchanged by 0.00 %
- Est rental Yield
- 3.29 %Decreased by 5.46 %
- Crime Rate
- 5.00 %Unchanged by 0.00 %
Agent Activity
Keystone created the listing.
Nearby Schools
| Name | Type | Ofsted | Distance |
|---|---|---|---|
| University Of Suffolk | Higher Education Institutions | Requires improvement | 0.77 KM |
| Learning Support, Southern Area Education Office | Miscellaneous | 0.81 KM | |
| St Margaret'S Church Of England Voluntary Aided Primary School, Ipswich | Voluntary Aided School | Good | 0.88 KM |
| Suffolk New College | Further Education | Requires improvement | 0.95 KM |
| Hillside Primary School | Academy Sponsor Led | Requires improvement | 1.02 KM |
Images
Nearby Streets
| Name | Average Price | Average Sqft | Distance |
|---|---|---|---|
| Bridge Street | £ 0 | 0 | 0.00 KM |
| Vernon Street | £ 0 | 0 | 0.00 KM |
| Wingfield Street | £ 0 | 0 | 0.00 KM |
| Rose Lane | £ 800,000 | 0 | 0.00 KM |
| St. Peters Street | £ 0 | 0 | 0.00 KM |
Nearby Transport
| Name | NLC | TLC | Distance |
|---|---|---|---|
| Ipswich | 7217 | IPS | 1.35 KM |
| Derby Road (Ipswich) | 7212 | DBR | 2.90 KM |
| Westerfield | 7226 | WFI | 3.33 KM |
Nearby Listings
| Address | Price | Type | Score | Distance |
|---|---|---|---|---|
| Key Street, Ipswich | £ 249,950 | BUY | 6 / 10 | 0.00 KM |
| Key Street, Ipswich | £ 155,000 | BUY | Unknown | 0.02 KM |
| The Mill, College Street, Ipswich | £ 105,000 | BUY | Unknown | 0.03 KM |
| 809 Quayside, The Mill, College Street, Ipswich, Suffolk, IP4 1FT | £ 85,000 | BUY | 5 / 10 | 0.04 KM |
| 809 Quayside, The Mill, College Street, Ipswich, Suffolk, IP4 1FT | £ 46,000 | BUY | 5 / 10 | 0.04 KM |
Nearby Properties
| Address | Price | Distance |
|---|---|---|
| 98 Foundry Lane | £ 118,000 | 0.19 KM |
| 21 Lower Brook Street | £ 185,000 | 0.19 KM |
| 74 Foundry Lane | £ 113,333 | 0.19 KM |
| 108 Foundry Lane | £ 114,166 | 0.19 KM |
| 39 Lower Brook Street | £ 215,000 | 0.20 KM |