Wellington Avenue, Virginia Water, Surrey, GU25
WI

Wellington Avenue, Virginia Water, Surrey, GU25

By Winkworth

£ 1,995,000

Reviews

4 out of 5 stars

Winkworth says ..

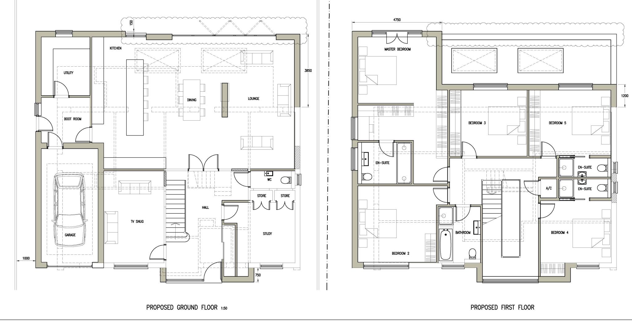
A magnificent brand new five bedroom detached residence situated on the fringes of the Wentworth Estate.

Property Oracle says ..

The property is located in Virginia Water, Surrey, an affluent area known for its good schools and proximity to Windsor Great Park. The property itself appears to be modern, well-maintained, and of high quality based on the provided images. While the plot size is not specified, the images suggest the presence of a garden. Compared to the average price per square foot in the area (£873), the list price of £1,995,000 for a 3,850 sq ft property (£518 per sq ft) seems relatively reasonable, especially considering the apparent high quality of construction and desirable location. However, a lack of specific details regarding the plot size and internal features prevents a more definitive assessment of value.

Therefore, we give this property 8 / 10. *Disclaimer: This is our option and does constitute a recommendation or financial advice. Do your own research. *

Price
8
Condition
9
Location
9
Land
7
Bedrooms
5
Bathrooms
4
Sqft (est)
3,850.00

The heatmap indicates the level of crime in the area. The color of the heatmap indicates the crime severity and recency.

Metrics Year-on-Year

Average area value
984,706.00 £
Decreased by 55.76 %
from 2,225,858.00 £
Est sale value
4,527,600.00 £
Increased by 1.20 %
from 4,473,700.00 £
Average area rental value
3,036.00 £/mo
Decreased by 44.87 %
from 5,507.00 £/mo
Est letting value
11,550.00 £/mo
Increased by 50.00 %
from 7,700.00 £/mo
Est rental Yield
3.70 %
Increased by 24.58 %
from 2.97 %
Crime Rate
0.00 %
from 0.00 %

Agent Activity

  • Winkworth created the listing.

Nearby Schools

NameTypeOfstedDistance
Trumps Green Infant SchoolCommunity SchoolOutstanding0.74 KM
St Ann'S Heath Junior SchoolCommunity SchoolGood2.16 KM
Acs Egham International SchoolOther Independent School2.48 KM
St Cuthbert'S Catholic Primary School, Englefield GreenVoluntary Aided SchoolOutstanding3.40 KM
St Peter'S CentrePupil Referral UnitOutstanding3.45 KM

Images

Picture No. 01 Picture No. 02 Picture No. 11 Picture No. 12 Picture No. 08 Picture No. 07 Picture No. 09 Picture No. 04 Picture No. 05 Picture No. 13 Picture No. 10 Picture No. 06 Picture No. 50 Picture No. 31 Picture No. 25 Picture No. 29 Picture No. 24 Picture No. 17 Picture No. 20 Picture No. 42 Picture No. 43 Picture No. 41 Picture No. 46 Picture No. 22 Picture No. 18 Picture No. 16 Picture No. 45 Picture No. 33 Picture No. 40 Picture No. 36 Picture No. 37 Picture No. 39 Picture No. 49 Picture No. 47 Picture No. 48 Picture No. 51

Nearby Streets

NameAverage PriceAverage SqftDistance
Fairway £ 3,000,00000.00 KM
East Drive £ 12,500,00000.00 KM
Beechwood Road £ 4,950,00000.00 KM
Friars Road £ 2,450,00000.00 KM
Trotsworth Court £ 361,66700.00 KM

Nearby Transport

NameNLCTLCDistance
Virginia Water5676VIR1.70 KM
Longcross5674LNG2.34 KM
Egham5669EGH5.09 KM
Sunningdale5671SNG6.38 KM
Chertsey5553CHY7.35 KM

Nearby Listings

AddressPriceTypeScoreDistance
Wellington Avenue, Virginia Water, Surrey, GU25 £ 1,995,000BUY8 / 100.00 KM
Wellington Avenue, Virginia Water, Surrey, GU25 £ 1,425,000BUYUnknown0.00 KM
Wellington Avenue, Virginia Water, Surrey, GU25 £ 1,795,000BUY7 / 100.05 KM
Virginia Water, Surrey, GU25 £ 695,000BUYUnknown0.13 KM
Wellington Avenue, Virginia Water, Surrey £ 1,000,000BUY7 / 100.15 KM

Nearby Properties

AddressPriceDistance
The Acorns £ 595,0000.04 KM
Oakdene £ 805,0000.04 KM
Sunford £ 1,050,0000.04 KM
Redruth £ 166,2480.04 KM
Cumberland House £ 1,100,0000.06 KM