BI
St. Chads Wharf, York YO23 1LX
By Bishops Personal Agents
£ 375,000
Reviews
3 out of 5 stars
Bishops Personal Agents says ..
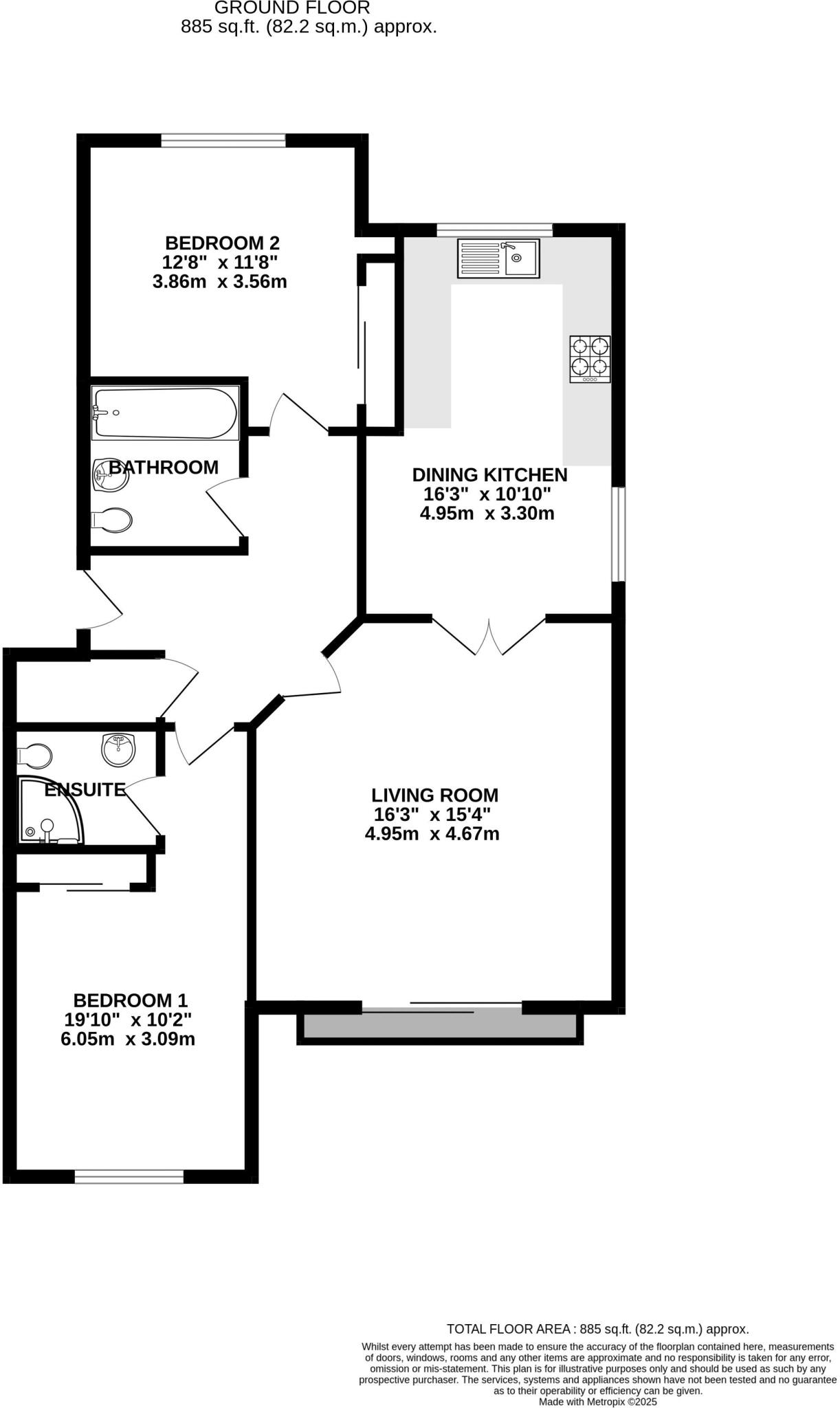
Bishops Personal Agents offer for sale a stylish two-bedroom, first floor apartment, situated in the very quiet location of St Chads Wharf, just off Bishopthorpe Road. Just a short stroll from the thriving "Bishy Road" high street, Rowntree Park, the Racecourse and river side walks to t...
Property Oracle says ..
Therefore, we give this property 7 / 10. *Disclaimer: This is our option and does constitute a recommendation or financial advice. Do your own research. *
- Price
- 7
- Condition
- 8
- Location
- 8
- Land
- 6
- Bedrooms
- 2
- Bathrooms
- 2
- Sqft (est)
- 885.00
The heatmap indicates the level of crime in the area. The color of the heatmap indicates the crime severity and recency.
Metrics Year-on-Year
- Average area value
- 542,496.00 £Increased by 34.28 %
- Est sale value
- 369,930.00 £Increased by 33.55 %
- Average area rental value
- 1,435.00 £/moIncreased by 6.30 %
- Est letting value
- 885.00 £/moUnchanged by 0.00 %
- Est rental Yield
- 3.17 %Decreased by 20.95 %
- Crime Rate
- 0.00 %
from 404,000.00 £
from 277,005.00 £
from 1,350.00 £/mo
from 885.00 £/mo
from 4.01 %
from 0.00 %
Agent Activity
Bishops Personal Agents created the listing.
Nearby Schools
| Name | Type | Ofsted | Distance |
|---|---|---|---|
| Knavesmire Children'S Centre | Children's Centre | 0.48 KM | |
| Knavesmire Primary School | Academy Converter | 0.48 KM | |
| York Steiner School | Other Independent School | Inadequate | 0.88 KM |
| Millthorpe School | Academy Converter | Good | 0.92 KM |
| Danesgate Community | Pupil Referral Unit | Good | 0.96 KM |
Images
Nearby Streets
| Name | Average Price | Average Sqft | Distance |
|---|---|---|---|
| Bishopthorpe Road | £ 0 | 0 | 0.00 KM |
| Drake Street | £ 180,000 | 0 | 0.00 KM |
| Bishopgate Street | £ 0 | 0 | 0.00 KM |
| Bishopthorpegate Street | £ 230,000 | 0 | 0.00 KM |
| Nunnery Lane | £ 0 | 0 | 0.00 KM |
Nearby Transport
| Name | NLC | TLC | Distance |
|---|---|---|---|
| York | 8263 | YRK | 1.94 KM |
| Poppleton | 8254 | POP | 7.93 KM |
Nearby Listings
| Address | Price | Type | Score | Distance |
|---|---|---|---|---|
| St Chads Wharf, York | £ 395,000 | BUY | 6 / 10 | 0.00 KM |
| St. Chads Wharf, York YO23 1LX | £ 375,000 | BUY | 7 / 10 | 0.00 KM |
| St. Chads Wharf, York | £ 400,000 | BUY | Unknown | 0.03 KM |
| St. Chads Wharf, Off Bishopthorpe Road | £ 400,000 | BUY | 8 / 10 | 0.03 KM |
| St. Chads Wharf, York | £ 400,000 | BUY | 5 / 10 | 0.03 KM |
Nearby Properties
| Address | Price | Distance |
|---|---|---|
| 10b St Chads Wharf | £ 320,000 | 0.01 KM |
| 16b St Chads Wharf | £ 221,000 | 0.01 KM |
| 6b St Chads Wharf | £ 275,000 | 0.01 KM |
| 18b St Chads Wharf | £ 207,500 | 0.01 KM |
| 4a St Chads Wharf | £ 249,995 | 0.01 KM |