The Mushroom Farm, Mansfield Road, Papplewick
By FHP Living
£ 695,000
Reviews
3 out of 5 stars
FHP Living says ..
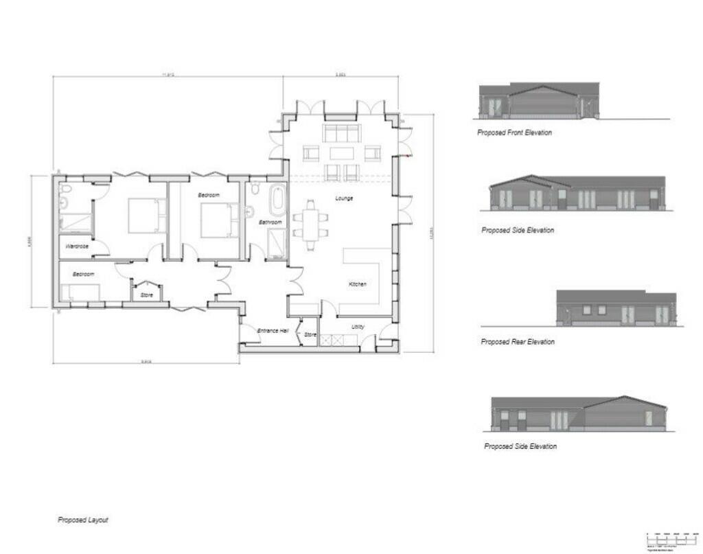
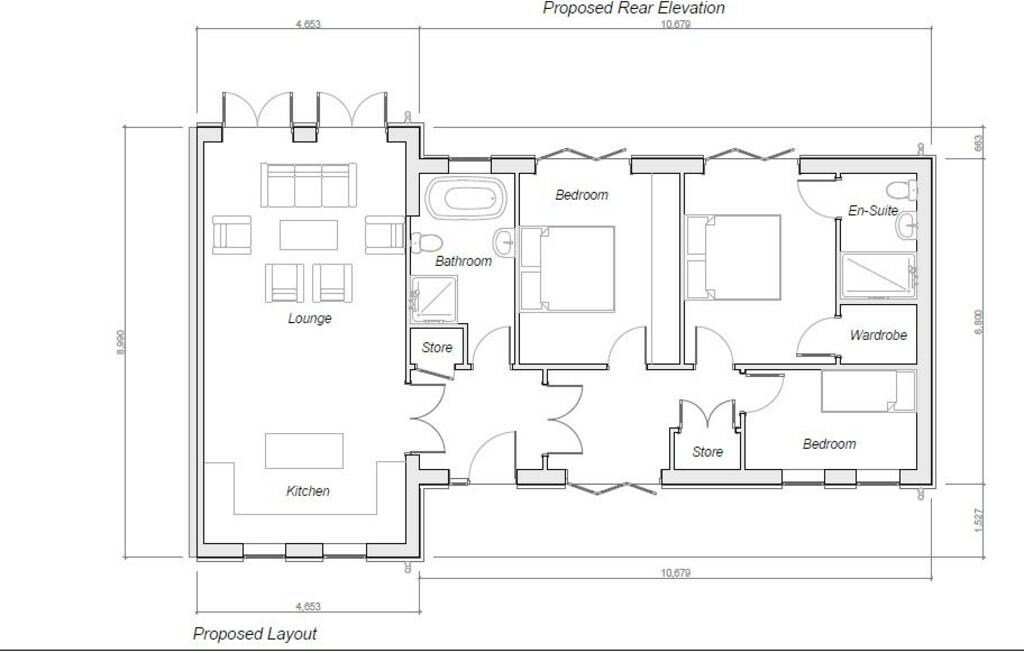
A Fantastic Development Opportunity! The Mushroom Farm, Papplewick, is currently operating as a commercial storage facility, generating a modest income, with potential for further significant improvement in its commercial advantages and possible expansion, subject to planning permission. The site...
Property Oracle says ..
This property at The Mushroom Farm, Mansfield Road, Papplewick, is presented as a development opportunity. The existing structures, currently used as commercial storage, appear functional but are likely destined for demolition and redevelopment. The property offers a substantial plot of land, indicated in the provided site plans. The proposed development plans show layouts for multiple properties, suggesting a potential for substantial returns if planning permission is granted and the project is successfully completed. However, the lack of crucial information such as precise plot size, final proposed build square footage, and the specifics around obtaining planning permission make a comprehensive valuation challenging. Nearby property prices show a range from under £200,000 to over £1.5 million, reflecting the variety of types of property and plot sizes in the area. The £695,000 asking price suggests a balance between land value and development risk. Buyers should proceed with due diligence and conduct their own thorough investigations, obtaining professional advice on planning permission and realistic build costs to assess the true financial potential and risk profile of this property. The successful development of this site would contribute to the local housing market and could provide much needed properties in the local area.
Therefore, we give this property 6 / 10. *Disclaimer: This is our option and does constitute a recommendation or financial advice. Do your own research. *
- Price
- 6
- Condition
- 4
- Location
- 7
- Land
- 8
- Bedrooms
- 0
- Bathrooms
- 0
The heatmap indicates the level of crime in the area. The color of the heatmap indicates the crime severity and recency.
Metrics Year-on-Year
- Average area value
- 470,714.00 £Increased by 13.53 %
- Average area rental value
- 1,033.00 £/moDecreased by 14.56 %
- Est rental Yield
- 2.63 %Decreased by 24.86 %
- Crime Rate
- 0.00 %
Agent Activity
FHP Living created the listing.
Nearby Schools
| Name | Type | Ofsted | Distance |
|---|---|---|---|
| Burntstump Seely Cofe Primary Academy | Academy Converter | Good | 2.47 KM |
| Abbey Gates Primary School | Community School | Outstanding | 2.74 KM |
| Ravenshead Cofe Primary School | Voluntary Controlled School | Good | 3.16 KM |
| Beardall Fields Primary And Nursery School | Community School | Good | 4.79 KM |
| Linby-Cum-Papplewick Cofe (Va) Primary School | Voluntary Aided School | Requires improvement | 5.19 KM |
Images
Nearby Transport
| Name | NLC | TLC | Distance |
|---|---|---|---|
| Hucknall | 1862 | HKN | 5.35 KM |
| Newstead | 1863 | NSD | 7.57 KM |
| Bulwell | 1865 | BLW | 8.39 KM |
Nearby Listings
| Address | Price | Type | Score | Distance |
|---|---|---|---|---|
| The Mushroom Farm, Mansfield Road, Papplewick | £ 695,000 | BUY | 6 / 10 | 0.00 KM |
| Mansfield Road, Papplewick, Nottinghamshire, NG15 8FL | £ 750,000 | BUY | 6 / 10 | 0.08 KM |
| Mansfield Road, Papplewick, Nottinghamshire | £ 329,950 | BUY | Unknown | 0.15 KM |
| Mansfield Road, Papplewick, Nottingham | £ 475,000 | BUY | 7 / 10 | 0.39 KM |
| Mansfield Road, Nottingham | £ 625,000 | BUY | 7 / 10 | 0.55 KM |
Nearby Properties
| Address | Price | Distance |
|---|---|---|
| 187 Mansfield Road | £ 188,000 | 0.02 KM |
| 149 Mansfield Road | £ 640,000 | 0.02 KM |
| 177 Mansfield Road | £ 362,500 | 0.02 KM |
| 143 Mansfield Road | £ 255,000 | 0.02 KM |
| 191 Mansfield Road | £ 290,000 | 0.04 KM |