326 Liverpool Road South, Maghull, Liverpool, L31 7DU
By McCarthy & Stone - North West
£ 232,500
Reviews
3 out of 5 stars
McCarthy & Stone - North West says ..
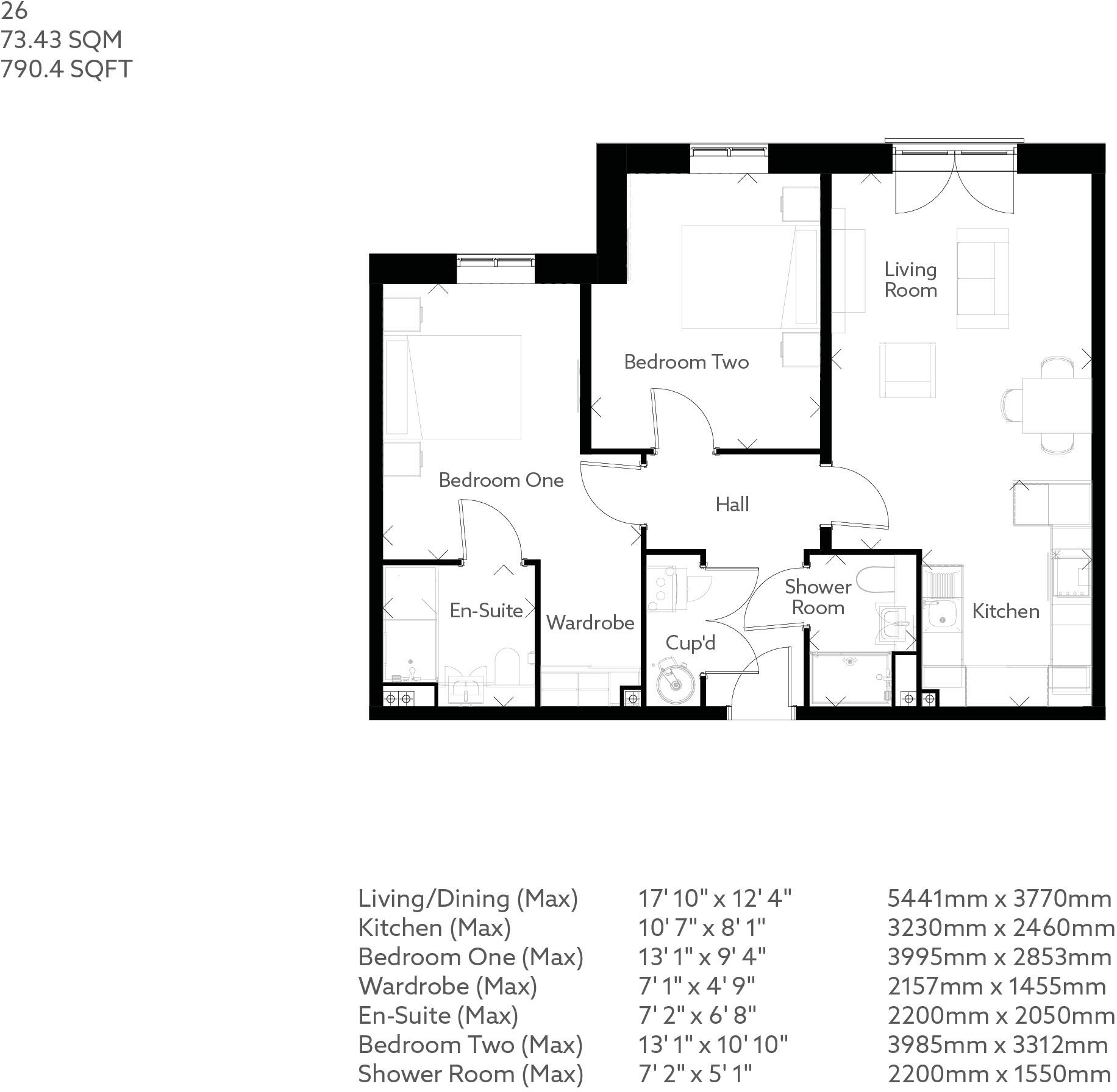
In a peaceful setting with views over lush, landscaped gardens, Apartment 26 is a beautiful apartment. This lovely property is designed with comfort and independence in mind with clever features to support you as you age.
Property Oracle says ..
This is a well-presented retirement property located on Liverpool Road South in Maghull. The property benefits from communal garden areas and is located within a reasonable distance of local amenities, schools and transport links. The property appears to be in excellent condition and offers modern fixtures and fittings. The list price of £232,500 appears reasonable when compared to the average price in the area.
Therefore, we give this property 7 / 10. *Disclaimer: This is our option and does constitute a recommendation or financial advice. Do your own research. *
- Price
- 7
- Condition
- 9
- Location
- 7
- Land
- 6
- Bedrooms
- 2
- Bathrooms
- 0
- Sqft (est)
- 688.00
The heatmap indicates the level of crime in the area. The color of the heatmap indicates the crime severity and recency.
Metrics Year-on-Year
- Average area value
- 339,299.00 £Increased by 1.34 %
- Est sale value
- 250,432.00 £Increased by 25.52 %
- Average area rental value
- 1,364.00 £/moIncreased by 34.92 %
- Est letting value
- 688.00 £/mo
- Est rental Yield
- 4.82 %Increased by 33.15 %
- Crime Rate
- 10.00 %Unchanged by 0.00 %
Agent Activity
McCarthy & Stone - North West created the listing.
Nearby Schools
| Name | Type | Ofsted | Distance |
|---|---|---|---|
| Deyes High School | Academy Converter | Good | 0.61 KM |
| St Andrews Church Of England Primary School, Maghull | Academy Converter | 0.63 KM | |
| Maghull High School | Academy Converter | Requires improvement | 0.87 KM |
| St George'S Catholic Primary School | Voluntary Aided School | Good | 0.89 KM |
| Maricourt Catholic High School | Voluntary Aided School | Requires improvement | 0.96 KM |
Images
Nearby Streets
| Name | Average Price | Average Sqft | Distance |
|---|---|---|---|
| Red Lion Close | £ 145,000 | 0 | 0.00 KM |
| BuckinghamRoad | £ 357,000 | 0 | 0.00 KM |
| Buckingham Road | £ 0 | 0 | 0.00 KM |
| Westover Road | £ 0 | 0 | 0.00 KM |
| The Meadows | £ 0 | 0 | 0.00 KM |
Nearby Transport
| Name | NLC | TLC | Distance |
|---|---|---|---|
| Maghull | 2155 | MAG | 1.76 KM |
| Maghull North | 6576 | MNS | 2.73 KM |
| Old Roan | 2258 | ORN | 2.90 KM |
| Aintree | 2125 | AIN | 4.43 KM |
| Fazakerley | 2126 | FAZ | 4.91 KM |
Nearby Listings
| Address | Price | Type | Score | Distance |
|---|---|---|---|---|
| 326 Liverpool Road South, Maghull, Liverpool, L31 7DU | £ 320,000 | BUY | 7 / 10 | 0.00 KM |
| 326 Liverpool Road South, Maghull, Liverpool, L31 7DU | £ 240,000 | BUY | 7 / 10 | 0.00 KM |
| 326 Liverpool Road South, Maghull, Liverpool, L31 7DU | £ 150,000 | BUY | 7 / 10 | 0.00 KM |
| 326 Liverpool Road South, Maghull, Liverpool, L31 7DU | £ 240,000 | BUY | 7 / 10 | 0.00 KM |
| 326 Liverpool Road South, Maghull, Liverpool, L31 7DU | £ 145,000 | BUY | Unknown | 0.00 KM |
Nearby Properties
| Address | Price | Distance |
|---|---|---|
| 6 Red Lion Close | £ 86,000 | 0.06 KM |
| 1 Red Lion Close | £ 134,000 | 0.06 KM |
| 5 Red Lion Close | £ 107,000 | 0.06 KM |
| 13 Red Lion Close | £ 113,000 | 0.06 KM |
| 12 Red Lion Close | £ 101,500 | 0.06 KM |