HI
Eddington Avenue, Cambridge, CB3
By Hill Residential Limited
£ 474,950
Reviews
3 out of 5 stars
Hill Residential Limited says ..
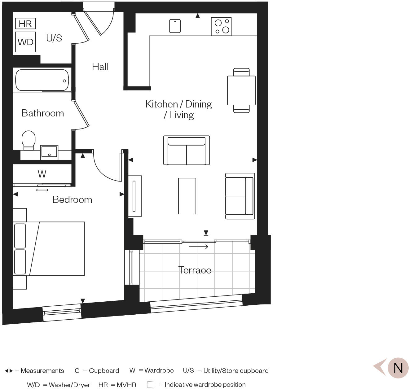
SAVE £13747* WITH STAMP DUTY CONTRIBUTION at The Icon, Knights Park. FIRST FLOOR APARTMENT with INTEGRATED APPLIANCES & FLOORING included. Abundance of amenities on your doorstep plus access to residents ROOFTOP GARDEN and SECURE underground PARKING - all just 12 MINUTES CYCLE from the city...
Property Oracle says ..
Therefore, we give this property 6 / 10. *Disclaimer: This is our option and does constitute a recommendation or financial advice. Do your own research. *
- Price
- 5
- Condition
- 9
- Location
- 8
- Land
- 3
- Bedrooms
- 1
- Bathrooms
- 0
- Sqft (est)
- 529.93
The heatmap indicates the level of crime in the area. The color of the heatmap indicates the crime severity and recency.
Metrics Year-on-Year
- Average area value
- 273,747.00 £Decreased by 7.23 %
- Est sale value
- 193,954.38 £Increased by 23.65 %
- Average area rental value
- 1,032.00 £/moDecreased by 0.77 %
- Est letting value
- 529.93 £/moUnchanged by 0.00 %
- Est rental Yield
- 4.52 %Increased by 6.86 %
- Crime Rate
- 82.00 %Unchanged by 0.00 %
from 295,097.00 £
from 156,859.28 £
from 1,040.00 £/mo
from 529.93 £/mo
from 4.23 %
from 82.00 %
Agent Activity
Hill Residential Limited created the listing.
Nearby Schools
| Name | Type | Ofsted | Distance |
|---|---|---|---|
| University Of Cambridge Primary School | Free Schools | Outstanding | 0.74 KM |
| Girton Glebe Primary School | Academy Converter | 2.08 KM | |
| The Cavendish School | Free Schools Special | 2.23 KM | |
| St John'S College School | Other Independent School | 2.32 KM | |
| Mayfield Primary School | Community School | Good | 2.40 KM |
Images
Nearby Streets
| Name | Average Price | Average Sqft | Distance |
|---|---|---|---|
| Rudduck Way | £ 1,000,000 | 0 | 0.00 KM |
| Ridgeway Corner | £ 0 | 0 | 0.00 KM |
| Market Square | £ 0 | 0 | 0.00 KM |
| Ridgeway | £ 0 | 0 | 0.00 KM |
| Stickfast Place | £ 0 | 0 | 0.00 KM |
Nearby Transport
| Name | NLC | TLC | Distance |
|---|---|---|---|
| Cambridge | 7022 | CBG | 6.23 KM |
| Cambridge North | 8001 | CMB | 7.88 KM |
| Shelford (Cambs) | 7043 | SED | 9.80 KM |
Nearby Listings
| Address | Price | Type | Score | Distance |
|---|---|---|---|---|
| Eddington Avenue, Cambridge, CB3 | £ 579,950 | BUY | 6 / 10 | 0.00 KM |
| Eddington Avenue, Cambridge, CB3 | £ 549,950 | BUY | 6 / 10 | 0.00 KM |
| Eddington Avenue, Cambridge, CB3 | £ 569,950 | BUY | 6 / 10 | 0.00 KM |
| Eddington Avenue, Cambridge, CB3 | £ 559,950 | BUY | 6 / 10 | 0.00 KM |
| Eddington Avenue, Cambridge, CB3 | £ 499,950 | BUY | 7 / 10 | 0.00 KM |
Nearby Properties
| Address | Price | Distance |
|---|---|---|
| Westchester | £ 1,100,000 | 0.50 KM |
| Thornton House | £ 544,000 | 0.63 KM |
| 16 Conduit Head Road | £ 1,005,000 | 0.65 KM |
| Field House | £ 1,100,000 | 0.65 KM |
| Cobbers | £ 1,211,137 | 0.65 KM |