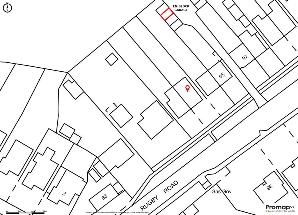
Rugby Road, Cubbington, Leamington Spa
CO

Rugby Road, Cubbington, Leamington Spa

By Complete Estate Agents

£ 485,000

Reviews

4 out of 5 stars

Complete Estate Agents says ..

A stone-built 1930s semi-detached property on Rugby Road in Cubbington, backing onto fields at the rear. The property has been extended on the ground floor and provides a modern living kitchen space with bi-folding doors and Velux remote control windows. Three bedrooms, living room, guest WC, Uti...

Property Oracle says ..

Therefore, we give this property 8 / 10. *Disclaimer: This is our option and does constitute a recommendation or financial advice. Do your own research. *

Price
9
Condition
7
Location
8
Land
8
Bedrooms
3
Bathrooms
1
Sqft (est)
1,283.60

The heatmap indicates the level of crime in the area. The color of the heatmap indicates the crime severity and recency.

Metrics Year-on-Year

Average area value
897,750.00 £
Increased by 73.43 %
from 517,637.00 £
Est sale value
1,391,422.40 £
Increased by 161.84 %
from 531,410.40 £
Average area rental value
1,500.00 £/mo
Decreased by 2.85 %
from 1,544.00 £/mo
Est letting value
1,283.60 £/mo
Unchanged by 0.00 %
from 1,283.60 £/mo
Est rental Yield
2.01 %
Decreased by 43.85 %
from 3.58 %
Crime Rate
5.00 %
Unchanged by 0.00 %
from 5.00 %

Agent Activity

  • Complete Estate Agents created the listing.

Nearby Schools

NameTypeOfstedDistance
Our Lady And St Teresa'S Catholic Primary SchoolVoluntary Aided SchoolGood0.13 KM
Telford Infant SchoolCommunity SchoolGood1.15 KM
Cubbington Cofe Primary SchoolVoluntary Controlled SchoolGood1.35 KM
Telford Junior SchoolCommunity SchoolRequires improvement1.38 KM
Lillington Children'S CentreChildren's Centre1.59 KM

Images

d1518cd7--4943-A469-A24BB31BFCD4-18204-0000071CA5A f2e9f4af--492A-852A-5D0F8F1B2022-18204-0000071DB2A overhead.jpg 5c6e6665--49B5-AAC1-EF8619B69119-18204-0000071CA1A 63abb7ba--4D17-ADA8-A511977A334C-18204-0000071DB59 78a7e16e--44ED-BF22-5E58E67583F2-18204-0000071DB87 cf0b845c--4354-8B54-E10785AA4771-18204-0000071DB82 b1852450--449F-A710-8DA4C8E89BAA-18204-0000071DB1C 3357e933--440A-86E1-245E43CDA45F-18204-0000071DB20 e0811894--4CD5-A843-31E2C75A4F58-18204-0000071DB52 1c0fb7ec--4F8F-91CB-E88A04FA6D1C-18204-0000071DB2F 971d3637--413D-8AD3-AEC264003433-18204-0000071EB8F 81f84836--4828-85B4-57A8E9E81F89-18204-0000071EB99 52d5b123--4F9B-9460-20D8DBA55D5E-18204-0000071EB77 423fdbc6--4A4B-A93A-B586FBE0AECA-18204-0000071DB46 995d5506--4057-9ABB-0E3373B7F947-18204-0000071DB4D 2f3c0961--4EAA-9584-794F128F6DC7-18204-0000071CA35 Promap-844419-939524-750400-1.jpg Promap-844419-939524-750400-0.jpg Promap-844419-939524-750400-2.jpg 0283685A-C0FC-46A1-B376-C514B77731EB.JPG 1decd76b--46FF-9182-C7C75C5FEB17-18204-0000071CA6B 3b718dc2--4902-B192-D38D20E3B59C-18204-0000071EB8A 3eb47af5--4770-B03C-D69265DF11D8-18204-0000071DB34 6c3bbc9c--41BC-9F2D-5E1E8112631E-18204-0000071CA45 7e4a7297--43AC-843F-E6FB1AD4AFDA-18204-0000071DB71 91c959af--41EA-88B5-0664C080ED7C-18204-0000071C9F9 55ca3330--43D5-A3ED-A128B9F3790A-18204-0000071CA2D f799f805--42AA-9B73-4C92FD9A0696-18204-0000071C9FD 897417ae--42DC-B8B3-592BAEF45290-18204-0000071DB6C 426d56fb--4E58-997D-1564D5D74B99-18204-0000071DB67 2b9ac583--40A8-A82C-2EF4C7756124-18204-0000071DB3F ae1b9bcc--46D5-99F0-E2A46CBFF2DA-18204-0000071CA40 c18e46e9--4E0A-B528-A67232591E0A-18204-0000071CA4A d6e92e24--444A-83FC-F9390DBA7ED1-18204-0000071DB7C d8bce422--409B-A738-8B58707E4E51-18204-0000071DB78 d3150f15--493E-ADD6-97C0A8E17957-18204-0000071CA28 e7fc2142--493B-8B00-A440CFFC93EA-18204-0000071C9F4 72f68b5a--43EE-8B48-5C621B350369-18204-0000071CA05 40f05968--4160-86C9-B9ABDAE04EE5-18204-0000071CA0D 8736e9cf--41AB-8099-63F7DC7CFCE4-18204-0000071CA13 737276c3--4CE5-8147-29401F904D75-18204-0000071EB7C aaa4fb5d--456D-8A64-7925E447C20B-18204-0000071DB5F ad67c6df--492A-8EF8-06F51D1EFA2E-18204-0000071EB81 c92bf19d--4D98-B514-10C4609CD017-18204-0000071CA3B c8031634--44DE-86B8-6C28EA22DA8E-18204-0000071DB38 d788bb23--4A33-9E2B-500B6B0F5BD7-18204-0000071DB25 e2e28734--4B97-B0CB-1BFA24EF4F19-18204-0000071EB94

Nearby Streets

NameAverage PriceAverage SqftDistance
Blackberry Way £ 511,66500.00 KM
Woodland Way £ 285,00000.00 KM
Apple Tree Close £ 399,95000.00 KM
Sandwell Road £ 000.00 KM
Roman Way £ 425,00000.00 KM

Nearby Transport

NameNLCTLCDistance
Leamington Spa4597LMS4.49 KM
Kenilworth7985KNW7.92 KM
Warwick4600WRW8.73 KM
Coventry1030COV9.79 KM

Nearby Listings

AddressPriceTypeScoreDistance
Rugby Road, Cubbington, Leamington Spa £ 485,000BUY8 / 100.00 KM
Rugby Road, Cubbington, Leamington Spa £ 600,000BUY6 / 100.03 KM
Kenilworth Road, Cubbington, Leamington Spa £ 589,950BUY7 / 100.24 KM
Windmill Hill, Leamington Spa £ 950,000BUY7 / 100.26 KM
Stonehouse Close, Leamington Spa, Warwickshire, CV32 £ 325,000BUY7 / 100.27 KM

Nearby Properties

AddressPriceDistance
87 Rugby Road £ 390,0000.08 KM
123a Rugby Road £ 460,0000.08 KM
99 Rugby Road £ 229,9500.08 KM
103 Rugby Road £ 421,0000.08 KM
91 Rugby Road £ 427,5000.08 KM