Watsons says ..
A tastefully converted and charming Chapel dating from 1909 with a number of period features and sea views ideal as a permanent residence or holiday home in this popular North Norfolk village just 2.5 miles from Mundesley.
Property Oracle says ..
This property is a charming, tastefully converted chapel located in the village of Trimingham, North Norfolk. The property benefits from a good-sized garden and appears to be in good condition based on the provided photos. While the list price is slightly below the average price for the area, the lack of square footage data for comparable properties makes a definitive price comparison difficult. The location in Trimingham offers a peaceful coastal setting, relatively close to Mundesley, and within reach of several schools, although the distances may require car travel. The property may appeal to those seeking a unique home in a tranquil coastal location.
Therefore, we give this property 7 / 10. *Disclaimer: This is our option and does constitute a recommendation or financial advice. Do your own research. *
- Price
- 6
- Condition
- 8
- Location
- 7
- Land
- 7
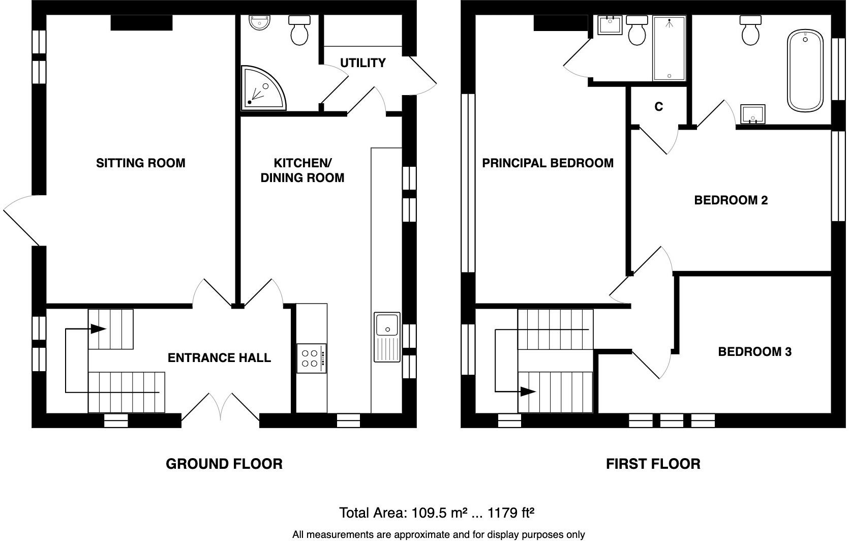
- Bedrooms
- 3
- Bathrooms
- 3
- Sqft (est)
- 1,150.00
- Lot (est)
- 1,179.00
The heatmap indicates the level of crime in the area. The color of the heatmap indicates the crime severity and recency.
Metrics Year-on-Year
- Average area value
- 686,107.00 £Decreased by 13.94 %
- Est sale value
- 402,500.00 £Decreased by 55.13 %
- Average area rental value
- 2,042.00 £/moDecreased by 7.18 %
- Est letting value
- 1,150.00 £/moDecreased by 50.00 %
- Est rental Yield
- 3.57 %Increased by 7.85 %
- Crime Rate
- 93.00 %Unchanged by 0.00 %
Agent Activity
Watsons created the listing.
Nearby Schools
| Name | Type | Ofsted | Distance |
|---|---|---|---|
| Sidestrand Hall School | Foundation Special School | Good | 3.97 KM |
| Mundesley Infant School | Community School | Good | 4.86 KM |
| Mundesley Junior School | Community School | Good | 4.86 KM |
| Mundesleysurestart Children'S Centre | Children's Centre | 5.03 KM | |
| Antingham And Southrepps Primary School | Academy Sponsor Led | Special Measures | 5.29 KM |
Images
Nearby Streets
| Name | Average Price | Average Sqft | Distance |
|---|---|---|---|
| School Lane | £ 0 | 0 | 0.00 KM |
| Windmill Road | £ 525,000 | 0 | 0.00 KM |
Nearby Transport
| Name | NLC | TLC | Distance |
|---|---|---|---|
| Gunton | 7299 | GNT | 5.68 KM |
| North Walsham | 7308 | NWA | 8.78 KM |
Nearby Listings
| Address | Price | Type | Score | Distance |
|---|---|---|---|---|
| Middle Street, Trimingham, Norwich | £ 325,000 | BUY | Unknown | 0.00 KM |
| Trimingham | £ 350,000 | BUY | 7 / 10 | 0.00 KM |
| Mundesley Road, Trimingham, North Norfolk, NR11 | £ 350,000 | BUY | 7 / 10 | 0.15 KM |
| Mundesley Road, Trimingham, Norwich, Norfolk, NR11 | £ 250,000 | BUY | 6 / 10 | 0.21 KM |
| Middle Street, Trimingham, Norwich | £ 290,000 | BUY | 7 / 10 | 0.27 KM |
Nearby Properties
| Address | Price | Distance |
|---|---|---|
| The Gables | £ 250,000 | 0.21 KM |
| 34 Mundesley Road | £ 295,000 | 0.21 KM |
| 31 Mundesley Road | £ 139,000 | 0.21 KM |
| 33 Mundesley Road | £ 277,000 | 0.21 KM |
| Greystones | £ 485,750 | 0.21 KM |