Russell Cope says ..
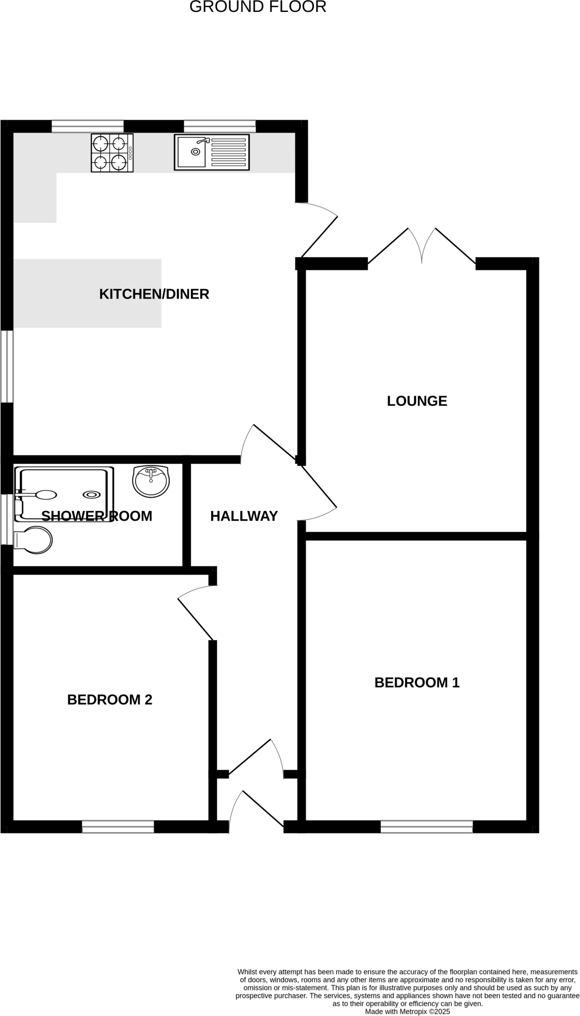
***READY TO MOVE IN ON RENISON ROAD***IMMACULATELY PRESENTED EXTENDED SEMI DETACHED BUNGALOW***OFFERED WITH NO ONWARD CHAIN***In brief the property comprises; entrance hall, two double bedrooms to the front, shower room, living room to the rear, with a newly fitted 'Howdens Kitchen' in the kitche...
Property Oracle says ..
This semi-detached bungalow in Bedworth is listed at £240,000. The property boasts a modern kitchen and bathroom, and benefits from a garden. The location is convenient, with nearby schools and transportation links. However, the property is smaller than average for the area at 480 sqft, compared to the average of 1016 sqft. The average house price in the area is considerably higher at £366,228, and the average price per sqft is £360. While the property has been modernised, its smaller size and lower price point may appeal to first-time buyers or those seeking a more affordable option in a desirable location.
Therefore, we give this property 7 / 10. *Disclaimer: This is our option and does constitute a recommendation or financial advice. Do your own research. *
- Price
- 7
- Condition
- 9
- Location
- 8
- Land
- 6
- Bedrooms
- 2
- Bathrooms
- 1
- Sqft (est)
- 480.00
The heatmap indicates the level of crime in the area. The color of the heatmap indicates the crime severity and recency.
Metrics Year-on-Year
- Average area value
- 358,479.00 £Decreased by 2.93 %
- Est sale value
- 202,560.00 £Increased by 20.57 %
- Average area rental value
- 1,595.00 £/moIncreased by 2.84 %
- Est letting value
- 480.00 £/moUnchanged by 0.00 %
- Est rental Yield
- 5.34 %Increased by 5.95 %
- Crime Rate
- 13.00 %Unchanged by 0.00 %
Agent Activity
Russell Cope created the listing.
Nearby Schools
| Name | Type | Ofsted | Distance |
|---|---|---|---|
| Bedworth Heath Nursery School | Local Authority Nursery School | Outstanding | 0.30 KM |
| Goodyers End Primary School | Community School | Good | 0.39 KM |
| Exhall Junior School | Community School | Requires improvement | 0.85 KM |
| Newdigate Primary And Nursery School | Community School | Good | 1.70 KM |
| Exhall Cedars Infant School | Community School | Requires improvement | 1.72 KM |
Images
Nearby Streets
| Name | Average Price | Average Sqft | Distance |
|---|---|---|---|
| Heath Road | £ 261,667 | 0 | 0.00 KM |
| The Elms | £ 0 | 0 | 0.00 KM |
| Florence Close | £ 0 | 0 | 0.00 KM |
| Lavender Close | £ 525,000 | 0 | 0.00 KM |
| Primrose Drive | £ 0 | 0 | 0.00 KM |
Nearby Transport
| Name | NLC | TLC | Distance |
|---|---|---|---|
| Coventry Arena | 7416 | CAA | 2.80 KM |
| Bedworth | 1165 | BEH | 3.05 KM |
| Bermuda Park | 6543 | BEP | 4.00 KM |
| Nuneaton | 1077 | NUN | 6.83 KM |
| Coventry | 1030 | COV | 8.30 KM |
Nearby Listings
| Address | Price | Type | Score | Distance |
|---|---|---|---|---|
| Renison Road, Bedworth | £ 240,000 | BUY | 7 / 10 | 0.00 KM |
| Martins Road, Bedworth | £ 240,000 | BUY | 7 / 10 | 0.07 KM |
| Martins Road, Bedworth | £ 240,000 | BUY | Unknown | 0.07 KM |
| Smorrall Lane, Bedworth, Warwickshire, CV12 | £ 260,000 | BUY | 7 / 10 | 0.10 KM |
| Smith Street, Bedworth, CV12 0DA | £ 195,000 | BUY | 7 / 10 | 0.11 KM |
Nearby Properties
| Address | Price | Distance |
|---|---|---|
| 22 Renison Road | £ 218,000 | 0.00 KM |
| 28 Renison Road | £ 110,000 | 0.00 KM |
| 25 Renison Road | £ 145,000 | 0.00 KM |
| 3 Renison Road | £ 245,000 | 0.00 KM |
| 12 Renison Road | £ 215,000 | 0.00 KM |