Modern Move says ..
2 Bedrooms - Garden - Off road parking for 1 car - Chain free - Possibility to extend (STP) - Gas central heating - Upvc double glazing - Council tax band B - Locality clause applies - EPC D
Property Oracle says ..
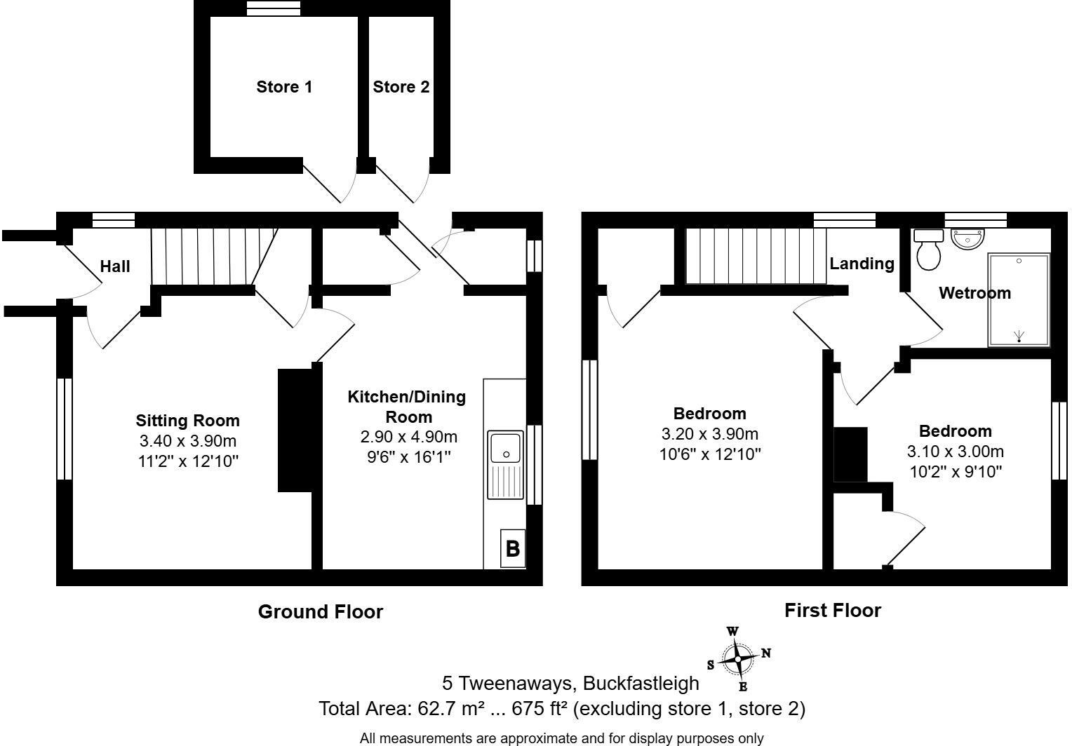
The property is a 2-bedroom semi-detached house located in Buckfastleigh, Devon, with a list price of £210,000. The property has a total area of 674.90 sqft and is situated on a plot of 0.00 sqft. The property’s location in Buckfastleigh places it within reasonable proximity to several primary schools, including Buckfastleigh Primary School (0.84km) and St Mary’s Catholic Primary School (2.01km). While there is a lack of readily available information regarding nearby transportation, the presence of schools suggests a family-friendly area. Further investigation into local transportation links would be beneficial. Based on the provided images, the property appears to be in need of some modernisation and updating. The kitchen and bathrooms show signs of wear and tear, and the interior requires refreshing. The property does however benefit from having a garden. Considering the average house price in the area is £437,660 and the average price per sqft is £329, the list price of £210,000 for this 674.90 sqft property seems significantly lower. However, the condition of the property and the relatively small plot size must be taken into account. The lower price may reflect the need for modernisation and the lack of a large garden. More detailed information on comparable properties in similar conditions would be needed to provide a more definitive assessment of the price.
Therefore, we give this property 5 / 10. *Disclaimer: This is our option and does constitute a recommendation or financial advice. Do your own research. *
- Price
- 7
- Condition
- 4
- Location
- 6
- Land
- 5
- Bedrooms
- 2
- Bathrooms
- 1
- Sqft (est)
- 674.90
The heatmap indicates the level of crime in the area. The color of the heatmap indicates the crime severity and recency.
Metrics Year-on-Year
- Average area value
- 347,013.00 £Decreased by 8.81 %
- Est sale value
- 190,321.80 £Increased by 12.35 %
- Average area rental value
- 940.00 £/moIncreased by 0.53 %
- Est letting value
- 0.00 £/mo
- Est rental Yield
- 3.25 %Increased by 10.17 %
- Crime Rate
- 30.00 %Unchanged by 0.00 %
Agent Activity
Modern Move created the listing.
Nearby Schools
| Name | Type | Ofsted | Distance |
|---|---|---|---|
| Buckfastleigh Primary School | Academy Converter | Requires improvement | 0.84 KM |
| Abc Ashburton And Buckfastleigh Children'S Centre | Children's Centre | 1.00 KM | |
| St Mary'S Catholic Primary School, Buckfast | Academy Converter | Good | 2.01 KM |
| Ashburton Primary School | Academy Converter | Good | 5.69 KM |
| Sands School | Other Independent School | 5.73 KM |
Images
Nearby Streets
| Name | Average Price | Average Sqft | Distance |
|---|---|---|---|
| Pioneer Terrace | £ 350,000 | 0 | 0.00 KM |
| New Road | £ 0 | 0 | 0.00 KM |
| Oaklands Close | £ 0 | 0 | 0.00 KM |
| Stormsdown Cottages | £ 0 | 0 | 0.00 KM |
| Higher Dean | £ 408,500 | 0 | 0.00 KM |
Nearby Listings
| Address | Price | Type | Score | Distance |
|---|---|---|---|---|
| Tweenaways, Buckfastleigh | £ 210,000 | BUY | 5 / 10 | 0.00 KM |
| Tweenaways, Buckfastleigh | £ 230,000 | BUY | 5 / 10 | 0.03 KM |
| Fairy Lane, Buckfastleigh, Devon | £ 240,000 | BUY | 6 / 10 | 0.07 KM |
| Fairy Lane, Buckfastleigh, Devon, TQ11 | £ 160,750 | BUY | Unknown | 0.07 KM |
| Buckfastleigh, Devon | £ 265,000 | BUY | Unknown | 0.12 KM |
Nearby Properties
| Address | Price | Distance |
|---|---|---|
| 6 Tweenaways | £ 167,500 | 0.03 KM |
| 29 Tweenaways | £ 160,000 | 0.03 KM |
| 38 Tweenaways | £ 135,000 | 0.03 KM |
| 41 Tweenaways | £ 140,000 | 0.03 KM |
| 39 Tweenaways | £ 165,000 | 0.03 KM |