Winkworth says ..
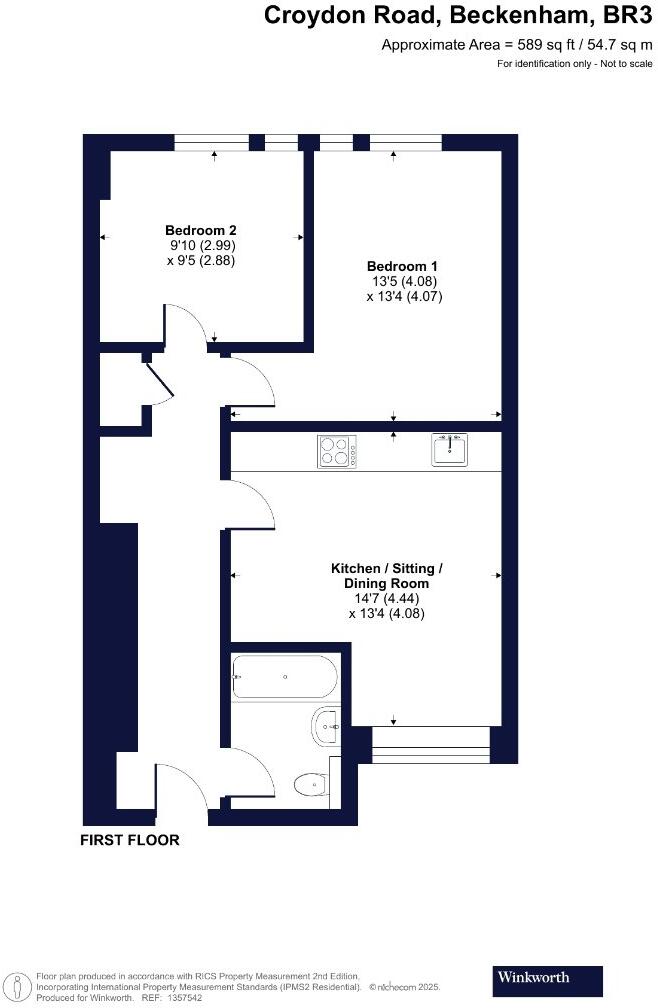
Occupying the first floor of a well-maintained development, this bright and spacious apartment offers contemporary living with a stylish open-plan kitchen and reception room, complete with sleek cabinetry, integrated appliances, and elegant wood flooring. Two double bedrooms are finished in calmi...
Property Oracle says ..
This is a two-bedroom apartment located on Croydon Road in Beckenham. The property appears to be in good condition, with modern fixtures and fittings. The apartment benefits from its proximity to local schools and transportation links. The asking price is slightly below the average price per square foot for the area, making it a potentially attractive purchase.
Therefore, we give this property 6 / 10. *Disclaimer: This is our option and does constitute a recommendation or financial advice. Do your own research. *
- Price
- 7
- Condition
- 9
- Location
- 7
- Land
- 4
- Bedrooms
- 2
- Bathrooms
- 1
- Sqft (est)
- 588.79
The heatmap indicates the level of crime in the area. The color of the heatmap indicates the crime severity and recency.
Metrics Year-on-Year
- Average area value
- 750,000.00 £Increased by 5.57 %
- Est sale value
- 326,778.45 £Increased by 5.71 %
- Average area rental value
- 1,775.00 £/moDecreased by 23.52 %
- Est letting value
- 588.79 £/moUnchanged by 0.00 %
- Est rental Yield
- 2.84 %Decreased by 27.55 %
- Crime Rate
- 3.00 %Unchanged by 0.00 %
Agent Activity
Winkworth created the listing.
Nearby Schools
| Name | Type | Ofsted | Distance |
|---|---|---|---|
| Kings London | Other Independent School | Good | 0.39 KM |
| Balgowan Primary School | Academy Converter | Good | 0.52 KM |
| Harris Primary Academy Beckenham | Free Schools | Outstanding | 0.80 KM |
| Harris Academy Beckenham | Academy Sponsor Led | Outstanding | 1.08 KM |
| Eden Park High School | Free Schools | 1.28 KM |
Images
Nearby Streets
| Name | Average Price | Average Sqft | Distance |
|---|---|---|---|
| Uplands | £ 950,000 | 0 | 0.00 KM |
| Fontaime Court | £ 0 | 0 | 0.00 KM |
| Waterside | £ 270,000 | 0 | 0.00 KM |
| Queen's Court | £ 275,000 | 0 | 0.00 KM |
| Chaffinch Road | £ 700,000 | 0 | 0.00 KM |
Nearby Transport
| Name | NLC | TLC | Distance |
|---|---|---|---|
| Clock House | 5048 | CLK | 0.84 KM |
| Beckenham Junction | 5046 | BKJ | 1.16 KM |
| New Beckenham | 5058 | NBC | 1.36 KM |
| Kent House | 5080 | KTH | 1.49 KM |
| Elmers End | 5049 | ELE | 1.83 KM |
Nearby Listings
| Address | Price | Type | Score | Distance |
|---|---|---|---|---|
| Croydon Road, Beckenham, BR3 | £ 315,000 | BUY | 6 / 10 | 0.00 KM |
| Croydon Road, Beckenham, BR3 | £ 325,000 | BUY | 6 / 10 | 0.05 KM |
| Croydon Road, Beckenham, Kent, BR3 | £ 375,000 | BUY | 5 / 10 | 0.05 KM |
| Durban Road, Beckenham, BR3 | £ 825,000 | BUY | 7 / 10 | 0.13 KM |
| Cedars Road, Beckenham, BR3 | £ 1,700,000 | BUY | 8 / 10 | 0.14 KM |
Nearby Properties
| Address | Price | Distance |
|---|---|---|
| 364 Croydon Road | £ 85,000 | 0.03 KM |
| 346 Croydon Road | £ 395,000 | 0.03 KM |
| 348 Croydon Road | £ 675,000 | 0.03 KM |
| 394 Croydon Road | £ 335,000 | 0.03 KM |
| 400 Croydon Road | £ 660,000 | 0.03 KM |