Oakenden Lane, Chiddingstone Hoath, Edenbridge, Kent, TN8
By Jackson-Stops
£ 1,475,000
Reviews
3 out of 5 stars
Jackson-Stops says ..
A charming and characterful detached period cottage situated on a quiet private road with its own secluded woodland and set within countryside surroundings.
Property Oracle says ..
This property in Chiddingstone Hoath, Kent, presents a charming and spacious family home. The house itself displays features consistent with its location and boasts a well-maintained interior. The kitchen, living areas and bedrooms appear comfortable and updated. The exterior of the property is attractive and blends well with the surrounding landscape. The extensive garden with its mature trees and landscaping creates a private and idyllic setting. The lack of readily available comparable sales data in the immediate area makes a definite assessment of the overall value difficult. However, the combination of property size and location, alongside the garden space, suggests that this property has a potential buyer base seeking both space and a peaceful environment within commuting distance of major transport links. A lack of comparable market pricing information is a limitation when assessing the property’s overall value.
Therefore, we give this property 7 / 10. *Disclaimer: This is our option and does constitute a recommendation or financial advice. Do your own research. *
- Price
- 6
- Condition
- 7
- Location
- 7
- Land
- 8
- Bedrooms
- 4
- Bathrooms
- 2
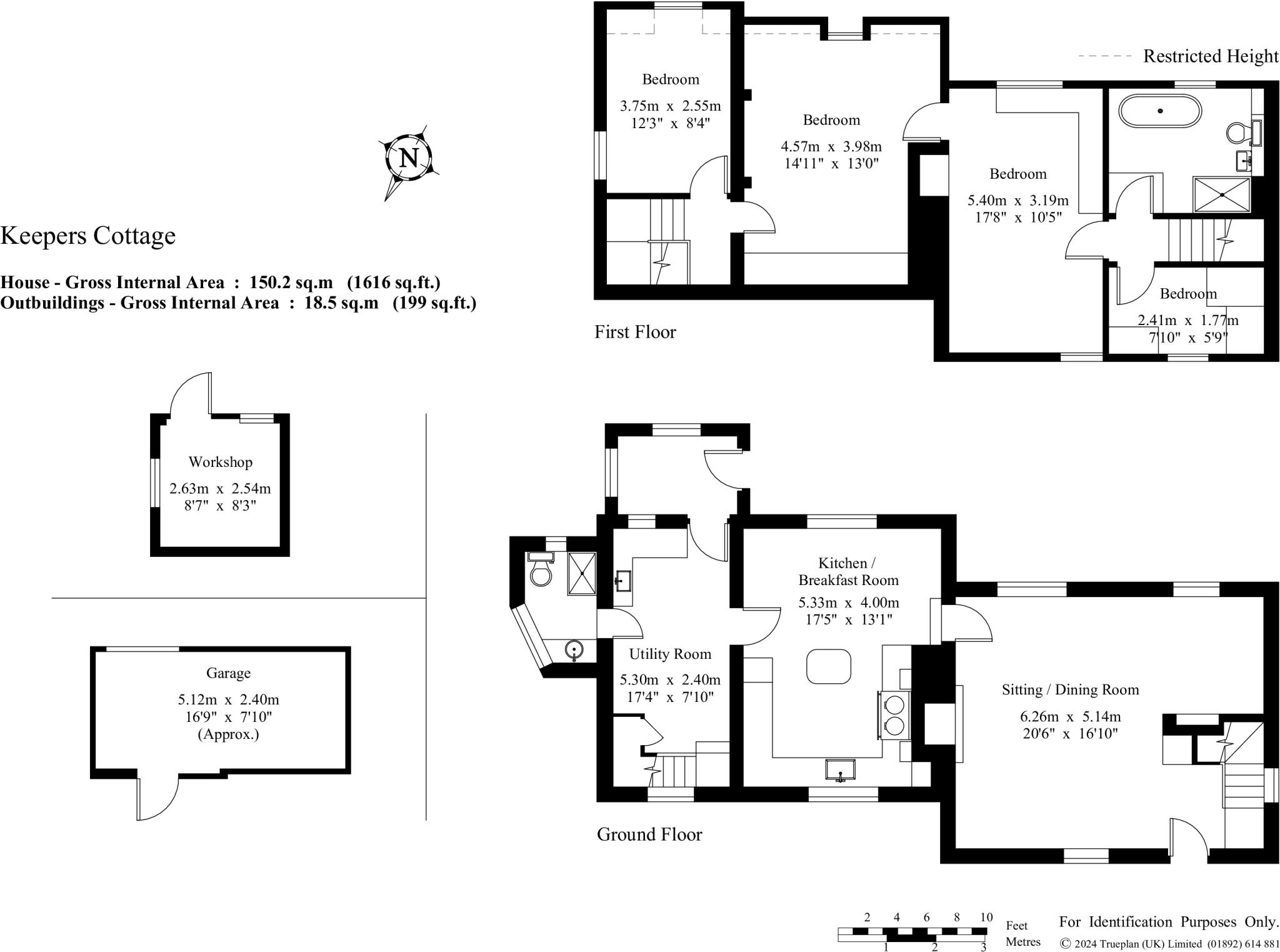
- Sqft (est)
- 1,616.00
The heatmap indicates the level of crime in the area. The color of the heatmap indicates the crime severity and recency.
Metrics Year-on-Year
- Average area value
- 1,145,000.00 £Increased by 51.85 %
- Est sale value
- 1,289,568.00 £Increased by 52.58 %
- Average area rental value
- 1,717.00 £/moDecreased by 6.07 %
- Est letting value
- 1,616.00 £/moUnchanged by 0.00 %
- Est rental Yield
- 1.80 %Decreased by 38.14 %
- Crime Rate
- 97.00 %Unchanged by 0.00 %
Agent Activity
Jackson-Stops created the listing.
Nearby Schools
| Name | Type | Ofsted | Distance |
|---|---|---|---|
| Chiddingstone Church Of England School | Academy Converter | Outstanding | 2.49 KM |
| Penshurst Church Of England Voluntary Aided Primary School | Voluntary Aided School | Good | 3.97 KM |
| Hever Church Of England Voluntary Aided Primary School | Voluntary Aided School | Requires improvement | 4.32 KM |
| Fordcombe Church Of England Primary School | Academy Converter | 4.64 KM | |
| St Michael'S Primary School | Community School | Good | 6.56 KM |
Images
Nearby Streets
| Name | Average Price | Average Sqft | Distance |
|---|---|---|---|
| Newtyehurst Cottages | £ 0 | 0 | 0.00 KM |
| SR546 | £ 0 | 0 | 0.00 KM |
| Grove Road | £ 1,375,000 | 0 | 0.00 KM |
| SR531 | £ 0 | 0 | 0.00 KM |
Nearby Transport
| Name | NLC | TLC | Distance |
|---|---|---|---|
| Cowden (Kent) | 5409 | CWN | 3.95 KM |
| Ashurst (Kent) | 5398 | AHS | 3.99 KM |
| Penshurst | 5477 | PHR | 4.91 KM |
| Hever | 5417 | HEV | 5.85 KM |
| Leigh (Kent) | 5294 | LIH | 8.00 KM |
Nearby Listings
| Address | Price | Type | Score | Distance |
|---|---|---|---|---|
| Hoath Corner, Chiddingstone Hoath | £ 320,000 | BUY | 5 / 10 | 0.70 KM |
| Hoath Corner, Chiddingstone Hoath | £ 375,000 | BUY | 5 / 10 | 0.70 KM |
| Truggers Lane, Chiddingstone Hoath | £ 800,000 | BUY | 7 / 10 | 0.72 KM |
| Grove Road, Penshurst, TN11 | £ 1,800,000 | BUY | 7 / 10 | 1.52 KM |
| Salmans Lane, Penshurst, Tonbridge, Kent | £ 2,250,000 | BUY | 9 / 10 | 1.91 KM |
Nearby Properties
| Address | Price | Distance |
|---|---|---|
| Keepers Cottage | £ 685,000 | 0.21 KM |
| The Barn | £ 630,000 | 0.21 KM |
| Puckden | £ 1,150,000 | 0.64 KM |
| Squirrels | £ 875,000 | 0.67 KM |
| Cherry Cottage | £ 815,000 | 0.68 KM |