15 Pinewood Road, Tunbridge Wells, Kent, TN2 3SH
By Auction House London
£ 600,000
Reviews
3 out of 5 stars
Auction House London says ..
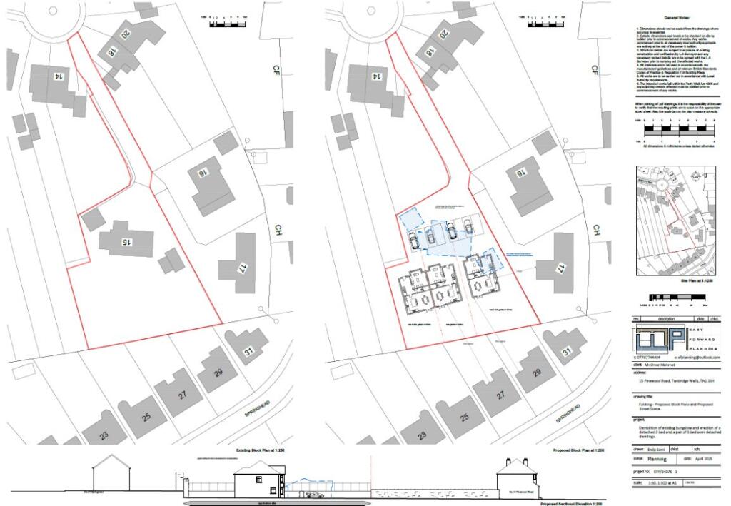
**For Sale By Public Auction 10th December 2025 09:30 AM To inspect the legal documents for this property go to our website to download the legal pack** A Vacant Three Bedroom Detached Bungalow Situated on a Plot of Land Measuring Approximately 1,270 sq m (13,665 s...
Property Oracle says ..
The property is a detached bungalow located in Tunbridge Wells, Kent. The property is in need of renovation and modernisation. The property has a good sized plot with a front and rear garden. There is also a garage and shed. The property is located close to local amenities and schools. The listing suggests that there is planning permission to demolish the existing bungalow and erect a pair of 4 bed detached dwellings. This would add value to the property.
Therefore, we give this property 6 / 10. *Disclaimer: This is our option and does constitute a recommendation or financial advice. Do your own research. *
- Price
- 5
- Condition
- 5
- Location
- 7
- Land
- 7
- Bedrooms
- 3
- Bathrooms
- 0
The heatmap indicates the level of crime in the area. The color of the heatmap indicates the crime severity and recency.
Metrics Year-on-Year
- Average area value
- 339,299.00 £Increased by 1.34 %
- Average area rental value
- 1,364.00 £/moIncreased by 34.92 %
- Est rental Yield
- 4.82 %Increased by 33.15 %
- Crime Rate
- 0.00 %
Agent Activity
Auction House London created the listing.
Nearby Schools
| Name | Type | Ofsted | Distance |
|---|---|---|---|
| Temple Grove Academy | Academy Sponsor Led | Good | 0.58 KM |
| Little Forest Children'S Centre | Children's Centre | 0.63 KM | |
| Beechwood School | Other Independent School | 0.79 KM | |
| St James' Church Of England Voluntary Aided Primary School | Voluntary Aided School | Outstanding | 0.98 KM |
| St Barnabas Cofe Va Primary School | Voluntary Aided School | Good | 1.25 KM |
Images
Nearby Streets
| Name | Average Price | Average Sqft | Distance |
|---|---|---|---|
| Grampian Close | £ 375,000 | 0 | 0.00 KM |
| Hilbert Road | £ 0 | 0 | 0.00 KM |
| Quantock Close | £ 0 | 0 | 0.00 KM |
| Squirrel Way | £ 0 | 0 | 0.00 KM |
| Gorse Road | £ 475,000 | 0 | 0.00 KM |
Nearby Transport
| Name | NLC | TLC | Distance |
|---|---|---|---|
| High Brooms | 5235 | HIB | 1.10 KM |
| Tunbridge Wells | 5230 | TBW | 2.32 KM |
| Frant | 5218 | FRT | 4.30 KM |
| Tonbridge | 5229 | TON | 5.80 KM |
| Wadhurst | 5231 | WAD | 8.23 KM |
Nearby Listings
| Address | Price | Type | Score | Distance |
|---|---|---|---|---|
| 15 Pinewood Road, Tunbridge Wells, Kent, TN2 3SH | £ 600,000 | BUY | 6 / 10 | 0.00 KM |
| Pinewood Road, Tunbridge Wells | £ 625,000 | BUY | Unknown | 0.06 KM |
| Pinewood Road, Tunbridge Wells | £ 220,000 | BUY | 7 / 10 | 0.06 KM |
| Springhead, Tunbridge Wells, Kent, TN2 | £ 500,000 | BUY | Unknown | 0.09 KM |
| Brendon Close, Tunbridge Wells, Kent, TN2 | £ 475,000 | BUY | 7 / 10 | 0.25 KM |
Nearby Properties
| Address | Price | Distance |
|---|---|---|
| 24 Pinewood Road | £ 160,000 | 0.06 KM |
| 34 Pinewood Road | £ 355,000 | 0.06 KM |
| 28 Pinewood Road | £ 138,500 | 0.06 KM |
| 20 Pinewood Road | £ 340,051 | 0.06 KM |
| 45 Springhead | £ 440,000 | 0.09 KM |