Hunters says ..
Presenting a period two-bedroom flat with a private section of garden in great location!
Property Oracle says ..
Therefore, we give this property 6 / 10. *Disclaimer: This is our option and does constitute a recommendation or financial advice. Do your own research. *
- Price
- 5
- Condition
- 6
- Location
- 7
- Land
- 7
- Bedrooms
- 2
- Bathrooms
- 1
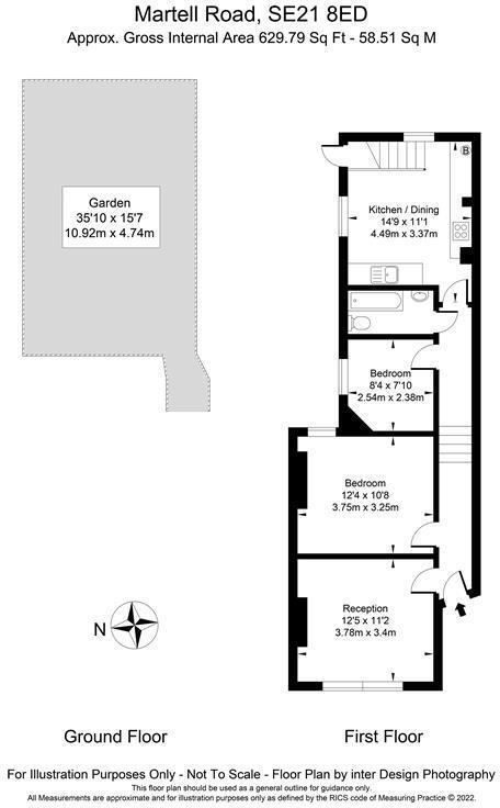
- Sqft (est)
- 629.79
- Lot (est)
- 553.22
The heatmap indicates the level of crime in the area. The color of the heatmap indicates the crime severity and recency.
Metrics Year-on-Year
- Average area value
- 455,829.00 £Decreased by 18.48 %
- Est sale value
- 313,635.42 £Decreased by 36.07 %
- Average area rental value
- 2,118.00 £/moDecreased by 3.99 %
- Est letting value
- 1,259.58 £/moDecreased by 33.33 %
- Est rental Yield
- 5.58 %Increased by 17.97 %
- Crime Rate
- 3.00 %Unchanged by 0.00 %
from 559,161.00 £
from 490,606.41 £
from 2,206.00 £/mo
from 1,889.37 £/mo
from 4.73 %
from 3.00 %
Agent Activity
Hunters created the listing.
Nearby Schools
| Name | Type | Ofsted | Distance |
|---|---|---|---|
| Elm Wood School | Community School | Good | 0.26 KM |
| Cherry Tree Children'S Centre | Children's Centre Linked Site | 0.51 KM | |
| Park Campus Academy | Academy Alternative Provision Converter | Good | 0.70 KM |
| Kingswood Primary School & Children'S Centre | Children's Centre | 0.76 KM | |
| Kingswood Primary School | Community School | Good | 0.80 KM |
Images
Nearby Streets
| Name | Average Price | Average Sqft | Distance |
|---|---|---|---|
| St Gothard Road | £ 0 | 0 | 0.00 KM |
| St Benards Close | £ 302,500 | 0 | 0.00 KM |
| Park Hall Road | £ 0 | 0 | 0.00 KM |
| Thurlow Park Road | £ 0 | 0 | 0.00 KM |
| Auckland Hill | £ 0 | 0 | 0.00 KM |
Nearby Transport
| Name | NLC | TLC | Distance |
|---|---|---|---|
| West Dulwich | 5086 | WDU | 0.90 KM |
| West Norwood | 5438 | WNW | 1.09 KM |
| Tulse Hill | 5390 | TUH | 1.43 KM |
| Gipsy Hill | 5363 | GIP | 1.49 KM |
| Sydenham Hill | 5085 | SYH | 1.52 KM |
Nearby Listings
| Address | Price | Type | Score | Distance |
|---|---|---|---|---|
| Martell Road, London, SE21 | £ 390,000 | BUY | 6 / 10 | 0.00 KM |
| Martell Road, London, SE5 | £ 425,000 | BUY | 6 / 10 | 0.01 KM |
| Martell Road, London, SE21 | £ 475,000 | BUY | Unknown | 0.02 KM |
| Martell Road, West Dulwich, London, SE21 | £ 650,000 | BUY | Unknown | 0.02 KM |
| Martell Road, West Dulwich, London, SE21 | £ 500,000 | BUY | Unknown | 0.03 KM |
Nearby Properties
| Address | Price | Distance |
|---|---|---|
| 35 Martell Road | £ 480,000 | 0.03 KM |
| 15 Martell Road | £ 1,225,000 | 0.03 KM |
| 43 Martell Road | £ 580,000 | 0.03 KM |
| 49a Martell Road | £ 201,000 | 0.03 KM |
| 25b Martell Road | £ 390,000 | 0.03 KM |