DOUBLE INVESTMENT OPPORTUNITY ON DOUGLAS ROAD, OLDBURY
By eXp UK
£ 375,000
Reviews
2 out of 5 stars
eXp UK says ..
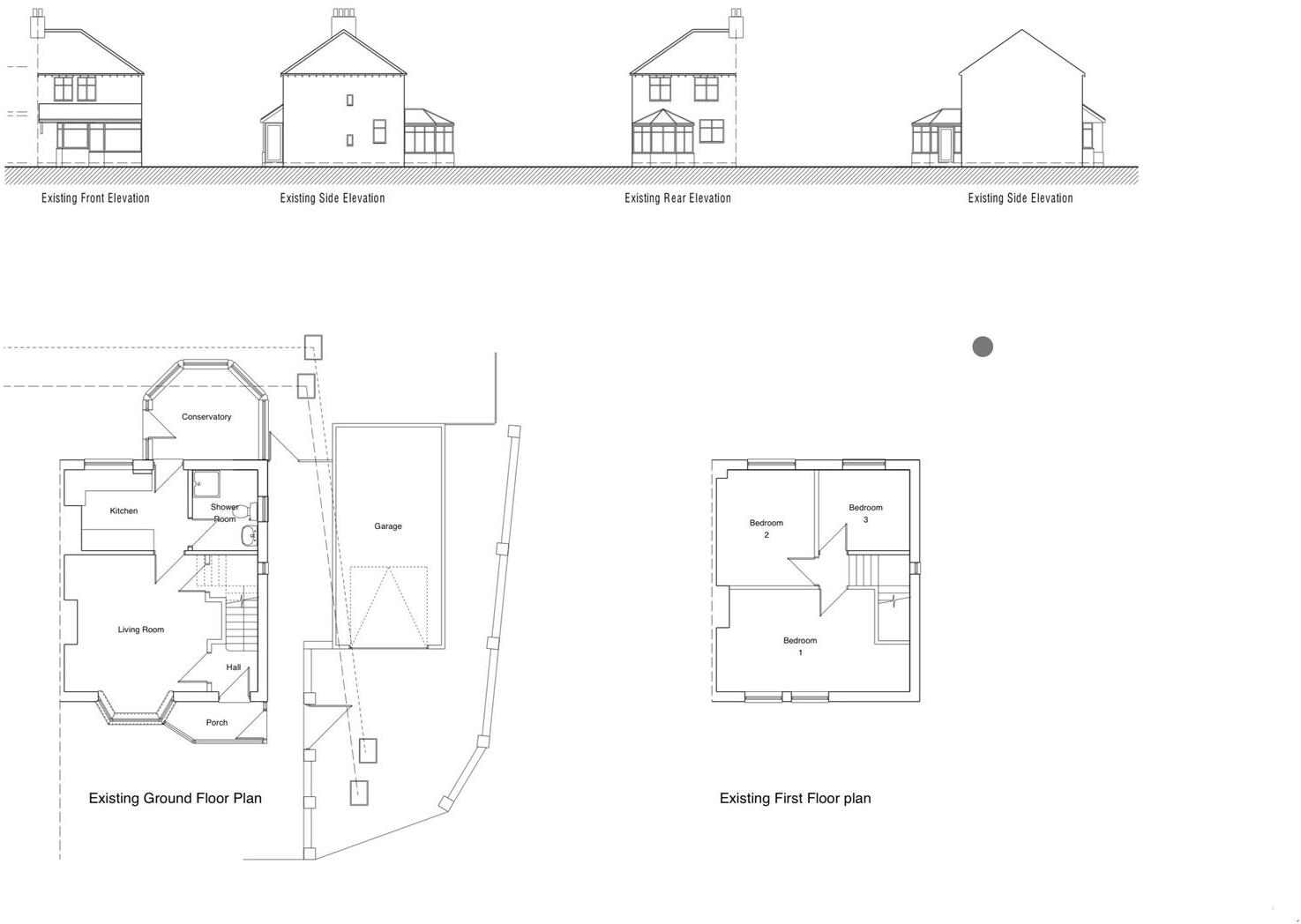
“DOUBLE OPPORTUNITY ON DOUGLAS ROAD” existing THREE BED SEMI DETACHED with planning for sale with the benefit of GRANTED PLANNING for NEW BUILD 3 BED 2 BATHROOM DETACHED WITH DETACHED REAR GARAGES, avaiable with NO UPWARD CHAIN been sold as vacant possession upon completion.
Property Oracle says ..
This property on Douglas Road, Oldbury, presents a double investment opportunity. The property is a semi-detached house with three bedrooms and one bathroom, offering 1,550 sq ft of living space. While the property requires some renovation, it offers a good amount of space and a decent-sized garden. The location is reasonable, with nearby schools and transportation links. The asking price of £375,000 seems fair given the size and location, but potential buyers should factor in the cost of renovations.
Therefore, we give this property 5 / 10. *Disclaimer: This is our option and does constitute a recommendation or financial advice. Do your own research. *
- Price
- 7
- Condition
- 4
- Location
- 6
- Land
- 6
- Bedrooms
- 3
- Bathrooms
- 1
- Sqft (est)
- 1,550.00
The heatmap indicates the level of crime in the area. The color of the heatmap indicates the crime severity and recency.
Metrics Year-on-Year
- Average area value
- 325,000.00 £Increased by 41.85 %
- Est sale value
- 463,450.00 £Increased by 32.30 %
- Average area rental value
- 473.00 £/moDecreased by 55.08 %
- Est letting value
- 0.00 £/moDecreased by 100.00 %
- Est rental Yield
- 1.75 %Decreased by 68.30 %
- Crime Rate
- 8.00 %Unchanged by 0.00 %
Agent Activity
eXp UK created the listing.
Nearby Schools
| Name | Type | Ofsted | Distance |
|---|---|---|---|
| Bristnall Hall Academy | Academy Converter | Good | 0.61 KM |
| Holly Lodge High School College Of Science | Foundation School | Good | 1.03 KM |
| Moat Farm Infant School | Community School | Good | 1.05 KM |
| Moat Farm Junior School | Foundation School | Good | 1.05 KM |
| Oldbury Sure Start Children'S Centre | Children's Centre | 1.09 KM |
Images
Nearby Streets
| Name | Average Price | Average Sqft | Distance |
|---|---|---|---|
| Douglas Road | £ 212,500 | 0 | 0.00 KM |
| Warley Road | £ 232,500 | 0 | 0.00 KM |
| St Johns Road | £ 0 | 0 | 0.00 KM |
| Francis Road | £ 220,000 | 0 | 0.00 KM |
| Primrose Hill | £ 0 | 0 | 0.00 KM |
Nearby Transport
| Name | NLC | TLC | Distance |
|---|---|---|---|
| Langley Green | 4607 | LGG | 1.50 KM |
| Smethwick Galton Bridge | 1114 | SGB | 1.86 KM |
| Smethwick Rolfe Street | 1150 | SMR | 2.49 KM |
| Sandwell And Dudley | 1149 | SAD | 3.02 KM |
| The Hawthorns | 4523 | THW | 3.56 KM |
Nearby Listings
| Address | Price | Type | Score | Distance |
|---|---|---|---|---|
| DOUBLE INVESTMENT OPPORTUNITY ON DOUGLAS ROAD, OLDBURY | £ 375,000 | BUY | 5 / 10 | 0.00 KM |
| Queens Road., SMETHWICK | £ 270,000 | BUY | 6 / 10 | 0.08 KM |
| Queens Road, Smethwick | £ 240,000 | BUY | 7 / 10 | 0.09 KM |
| Hayes Crescent, OLDBURY | £ 220,000 | BUY | 6 / 10 | 0.19 KM |
| Douglas Avenue, Oldbury, B68 | £ 250,000 | BUY | 6 / 10 | 0.19 KM |
Nearby Properties
| Address | Price | Distance |
|---|---|---|
| 23 Douglas Road | £ 152,000 | 0.01 KM |
| 13 Douglas Road | £ 120,000 | 0.01 KM |
| 4 Douglas Road | £ 123,000 | 0.01 KM |
| 24 Douglas Road | £ 170,000 | 0.01 KM |
| 3 Douglas Road | £ 120,000 | 0.01 KM |