Chingford Avenue, Farnborough, Hampshire, GU14
By Bridges Estate Agents
£ 650,000
Reviews
3 out of 5 stars
Bridges Estate Agents says ..
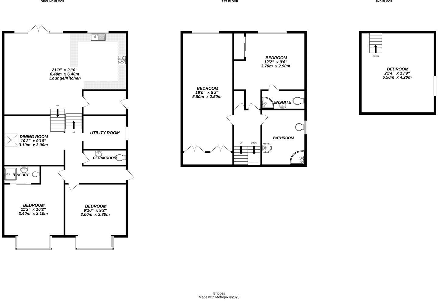
This beautifully renovated and truly unique four/five bedroom detached home is arranged over two split lever floors. Thoughtfully modernised throughout, the property combines contemporary design with flexible living space, perfect for growing families or those seeking versatility. The ...
Property Oracle says ..
This is a detached property located on Chingford Avenue, in a residential area of Farnborough. The property has four bedrooms and two bathrooms. The interior of the property appears to be in generally good condition, with a modern kitchen and bathrooms. However, some rooms appear dated and could benefit from some modernisation. The property has a good-sized garden, which appears to be well-maintained. The property is located within walking distance of North Farnborough Infant School (Ofsted: Outstanding) and close to Farnborough North train station. The property is listed for sale at £650,000. The average price for a detached property in Farnborough is £600,000. However, the average price per square foot in the area is £447, while this property is listed at £1,893 per square foot, which suggests that the property is overpriced for its size.
Therefore, we give this property 6 / 10. *Disclaimer: This is our option and does constitute a recommendation or financial advice. Do your own research. *
- Price
- 4
- Condition
- 7
- Location
- 7
- Land
- 8
- Bedrooms
- 4
- Bathrooms
- 2
- Sqft (est)
- 343.37
The heatmap indicates the level of crime in the area. The color of the heatmap indicates the crime severity and recency.
Metrics Year-on-Year
- Average area value
- 360,272.00 £Increased by 4.93 %
- Est sale value
- 153,486.39 £Increased by 9.29 %
- Average area rental value
- 1,439.00 £/moIncreased by 4.50 %
- Est letting value
- 343.37 £/moUnchanged by 0.00 %
- Est rental Yield
- 4.79 %Decreased by 0.42 %
- Crime Rate
- 2.00 %Unchanged by 0.00 %
Agent Activity
Bridges Estate Agents created the listing.
Nearby Schools
| Name | Type | Ofsted | Distance |
|---|---|---|---|
| North Farnborough Infant School | Community School | Outstanding | 0.05 KM |
| Henry Tyndale School | Community Special School | Outstanding | 0.36 KM |
| Farnborough Hill | Other Independent School | 0.80 KM | |
| St Patrick'S Catholic Primary School | Voluntary Aided School | Good | 0.80 KM |
| St Peter'S Church Of England Aided Junior School | Voluntary Aided School | Requires improvement | 0.92 KM |
Images
Nearby Streets
| Name | Average Price | Average Sqft | Distance |
|---|---|---|---|
| Coleford Bridge Road | £ 700,000 | 0 | 0.00 KM |
| Church Path | £ 0 | 0 | 0.00 KM |
| Firgrove Road | £ 0 | 0 | 0.00 KM |
| Kingsmead | £ 0 | 0 | 0.00 KM |
| Footpath 197 | £ 0 | 0 | 0.00 KM |
Nearby Transport
| Name | NLC | TLC | Distance |
|---|---|---|---|
| Farnborough North | 5688 | FNN | 0.34 KM |
| Farnborough (Main) | 5521 | FNB | 1.37 KM |
| Frimley | 5683 | FML | 1.47 KM |
| North Camp | 5636 | NCM | 2.93 KM |
| Ash Vale | 5547 | AHV | 3.85 KM |
Nearby Listings
| Address | Price | Type | Score | Distance |
|---|---|---|---|---|
| Chingford Avenue, Farnborough, Hampshire, GU14 | £ 650,000 | BUY | 6 / 10 | 0.00 KM |
| Chingford Avenue, Farnborough, Hampshire, GU14 | £ 585,000 | BUY | 7 / 10 | 0.06 KM |
| Chingford Avenue, Farnborough, Hampshire, GU14 | £ 600,000 | BUY | 7 / 10 | 0.07 KM |
| Rectory Road, Farnborough, GU14 | £ 585,000 | BUY | Unknown | 0.12 KM |
| Rectory Road, Farnborough, Hampshire | £ 600,000 | BUY | Unknown | 0.13 KM |
Nearby Properties
| Address | Price | Distance |
|---|---|---|
| 46 Chingford Avenue | £ 250,000 | 0.07 KM |
| 70 Chingford Avenue | £ 487,000 | 0.07 KM |
| 50 Chingford Avenue | £ 250,000 | 0.07 KM |
| 72 Chingford Avenue | £ 450,000 | 0.07 KM |
| 68 Chingford Avenue | £ 480,000 | 0.07 KM |