Wirksworth Road, Duffield, Belper
By Fletcher & Company
£ 400,000
Reviews
3 out of 5 stars
Fletcher & Company says ..
This is an exceptional, mixed-use investment opportunity, presenting the chance to acquire a tenanted portfolio situated in the highly desirable and sought-after village of Duffield. This charming property comprises a ground floor commercial unit which serves as a valuable retail or off...
Property Oracle says ..
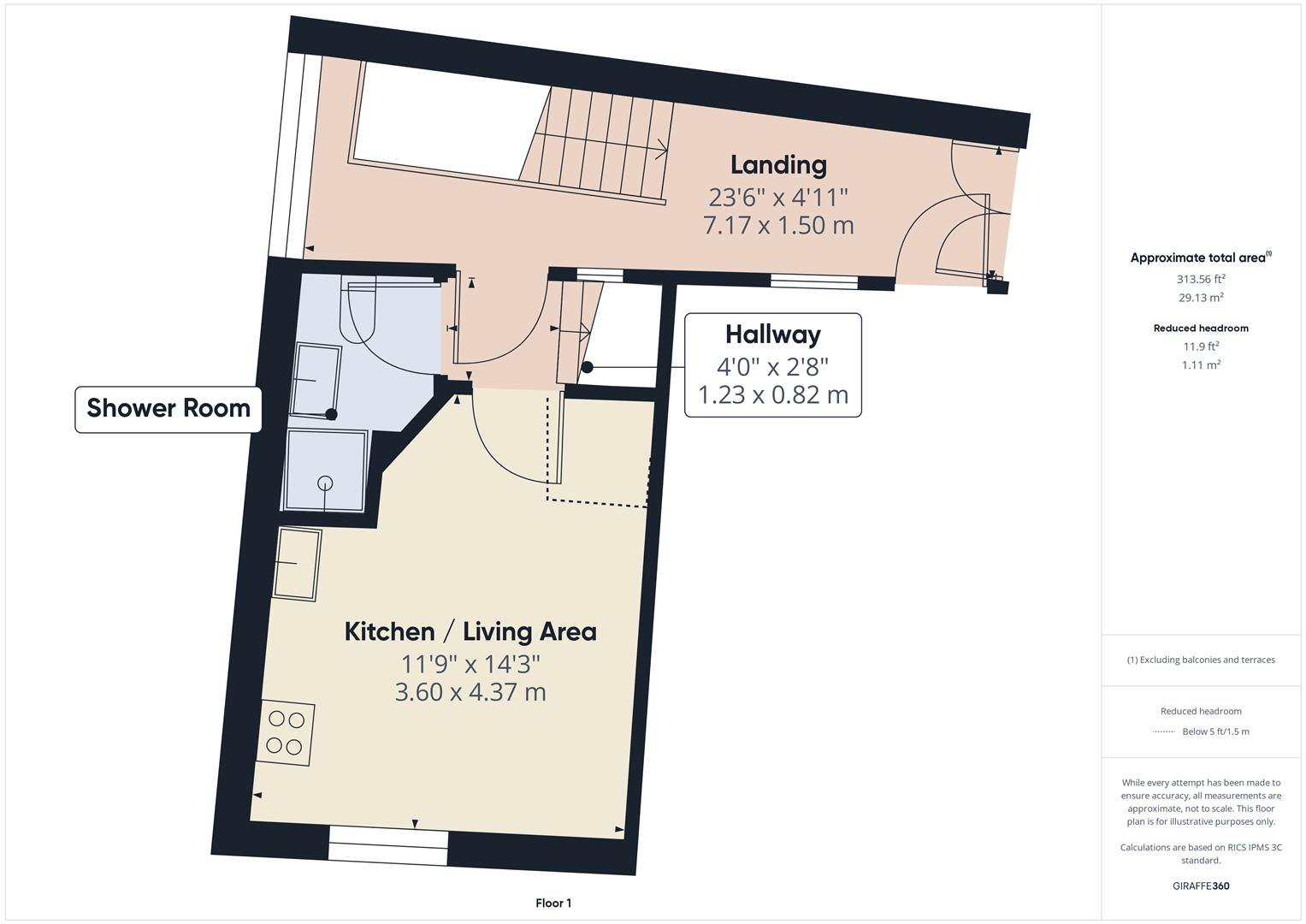
This property is located on Wirksworth Road in Duffield, Derbyshire, and is listed at £400,000. The property is a 2 bedroom, 3 bathroom house with 540.67 sqft of living space. The average house price in the area is £527,800, with an average price per sqft of £541. The property is situated close to The Ecclesbourne School (0.32km) and several other primary schools. Duffield train station is also within walking distance. Based on the images provided, the property appears to be in good condition and has been recently renovated. However, the property does not have a garden (plot size 0.00 sqft). Considering the location, condition, and lack of outdoor space, the list price of £400,000 is below the average for the area and could represent good value for money, especially considering the proximity to local amenities and schools.
Therefore, we give this property 6 / 10. *Disclaimer: This is our option and does constitute a recommendation or financial advice. Do your own research. *
- Price
- 7
- Condition
- 8
- Location
- 9
- Land
- 1
- Bedrooms
- 2
- Bathrooms
- 3
- Sqft (est)
- 540.67
The heatmap indicates the level of crime in the area. The color of the heatmap indicates the crime severity and recency.
Metrics Year-on-Year
- Average area value
- 383,980.00 £Decreased by 24.53 %
- Est sale value
- 284,392.42 £Increased by 6.26 %
- Average area rental value
- 1,505.00 £/moIncreased by 11.23 %
- Est letting value
- 1,081.34 £/moIncreased by 100.00 %
- Est rental Yield
- 4.70 %Increased by 47.34 %
- Crime Rate
- 95.00 %Unchanged by 0.00 %
Agent Activity
Fletcher & Company created the listing.
Nearby Schools
| Name | Type | Ofsted | Distance |
|---|---|---|---|
| The Ecclesbourne School | Academy Converter | 0.32 KM | |
| William Gilbert Endowed Church Of England Primary School | Academy Converter | 0.62 KM | |
| Duffield The Meadows Primary School | Community School | Good | 1.14 KM |
| Milford Primary School | Community School | Good | 2.11 KM |
| The Curzon Cofe Primary School | Voluntary Aided School | Good | 2.82 KM |
Images
Nearby Streets
| Name | Average Price | Average Sqft | Distance |
|---|---|---|---|
| Church Walk | £ 750,000 | 0 | 0.00 KM |
| Mayfair Court | £ 0 | 0 | 0.00 KM |
| Makeney Road | £ 0 | 0 | 0.00 KM |
| Springfield Drive | £ 0 | 0 | 0.00 KM |
| The Croft | £ 0 | 0 | 0.00 KM |
Nearby Transport
| Name | NLC | TLC | Distance |
|---|---|---|---|
| Duffield | 1691 | DFI | 0.38 KM |
| Belper | 1679 | BLP | 4.28 KM |
| Derby | 1823 | DBY | 8.16 KM |
| Ambergate | 1678 | AMB | 8.37 KM |
Nearby Listings
| Address | Price | Type | Score | Distance |
|---|---|---|---|---|
| Wirksworth Road, Duffield, Belper | £ 400,000 | BUY | 6 / 10 | 0.00 KM |
| Archway House, Duffield, Belper, Derbyshire | £ 239,950 | BUY | 6 / 10 | 0.09 KM |
| The Ferns, Town Street, Duffield, Belper, Derbyshire | £ 550,000 | BUY | 6 / 10 | 0.11 KM |
| Magnificent Home, Duffield, Belper, Derbyshire | £ 935,000 | BUY | 8 / 10 | 0.13 KM |
| Town Street, Duffield, Belper | £ 240,000 | BUY | 6 / 10 | 0.14 KM |
Nearby Properties
| Address | Price | Distance |
|---|---|---|
| 39 Town Street | £ 80,000 | 0.05 KM |
| 50 Town Street | £ 495,000 | 0.14 KM |
| 66 Town Street | £ 308,000 | 0.14 KM |
| 72 Town Street | £ 125,000 | 0.14 KM |
| 70 Town Street | £ 182,500 | 0.14 KM |