harveyrobinson says ..
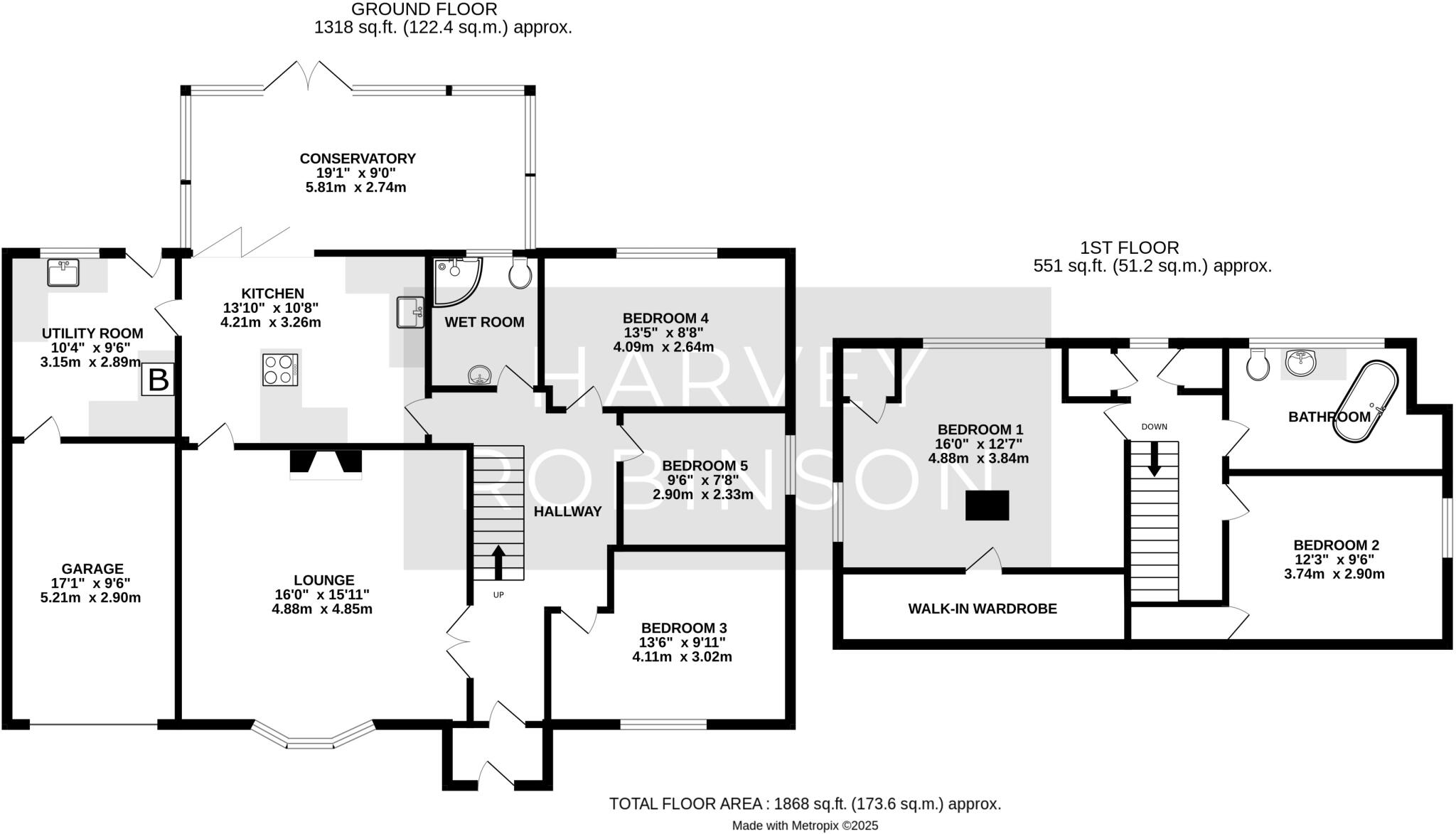
Harvey Robinson Estate Agents in Huntingdon are delighted to present this exceptionally well-presented five-bedroom detached chalet bungalow, located on the highly sought-after Arundel Road in Old Hartford, Huntingdon. Immaculately maintained by the current owners, this spacious home offers appro...
Property Oracle says ..
Therefore, we give this property 6 / 10. *Disclaimer: This is our option and does constitute a recommendation or financial advice. Do your own research. *
- Price
- 4
- Condition
- 8
- Location
- 7
- Land
- 7
- Bedrooms
- 5
- Bathrooms
- 2
- Sqft (est)
- 1,592.31
The heatmap indicates the level of crime in the area. The color of the heatmap indicates the crime severity and recency.
Metrics Year-on-Year
- Average area value
- 265,066.00 £Increased by 22.85 %
- Est sale value
- 692,654.85 £Increased by 59.34 %
- Average area rental value
- 1,330.00 £/moIncreased by 2.94 %
- Est letting value
- 3,184.62 £/moIncreased by 100.00 %
- Est rental Yield
- 6.02 %Decreased by 16.27 %
- Crime Rate
- 8.00 %Unchanged by 0.00 %
from 215,770.00 £
from 434,700.63 £
from 1,292.00 £/mo
from 1,592.31 £/mo
from 7.19 %
from 8.00 %
Agent Activity
harveyrobinson created the listing.
Nearby Schools
| Name | Type | Ofsted | Distance |
|---|---|---|---|
| Hartford Infant School | Academy Converter | 0.60 KM | |
| Hartford Junior School | Academy Sponsor Led | Good | 0.70 KM |
| Spring Common Academy | Academy Special Converter | Outstanding | 1.01 KM |
| Thongsley Fields Primary And Nursery School | Academy Sponsor Led | 1.02 KM | |
| St John'S Cofe Primary School | Academy Converter | Good | 1.76 KM |
Images
Nearby Streets
| Name | Average Price | Average Sqft | Distance |
|---|---|---|---|
| Hall Close | £ 0 | 0 | 0.00 KM |
| Mill Road | £ 0 | 0 | 0.00 KM |
| The Spinney | £ 0 | 0 | 0.00 KM |
| Mayfield Road | £ 215,000 | 0 | 0.00 KM |
| Harrier Close | £ 350,000 | 0 | 0.00 KM |
Nearby Transport
| Name | NLC | TLC | Distance |
|---|---|---|---|
| Huntingdon | 6108 | HUN | 3.27 KM |
Nearby Listings
| Address | Price | Type | Score | Distance |
|---|---|---|---|---|
| Arundel Road, Hartford | £ 500,000 | BUY | 6 / 10 | 0.00 KM |
| Arundel Road, Hartford, Huntingdon, Cambridgeshire, PE29 1YW | £ 325,000 | BUY | 6 / 10 | 0.06 KM |
| Desborough Road, Hartford, PE29 | £ 340,000 | BUY | Unknown | 0.07 KM |
| Desborough Road, Hartford, Huntingdon, Cambridgeshire, PE29 1RX | £ 400,000 | BUY | 7 / 10 | 0.07 KM |
| Arundel Road, Hartford, Huntingdon, PE29 | £ 375,000 | BUY | 6 / 10 | 0.10 KM |
Nearby Properties
| Address | Price | Distance |
|---|---|---|
| 35 Desborough Road | £ 192,000 | 0.08 KM |
| 32 Desborough Road | £ 284,000 | 0.08 KM |
| 43 Desborough Road | £ 180,000 | 0.08 KM |
| 24 Desborough Road | £ 305,000 | 0.08 KM |
| 31 Desborough Road | £ 330,000 | 0.08 KM |