Elvaston Road, Carleton, Lancashire, FY6
By The Square Room
£ 285,000
Reviews
3 out of 5 stars
The Square Room says ..
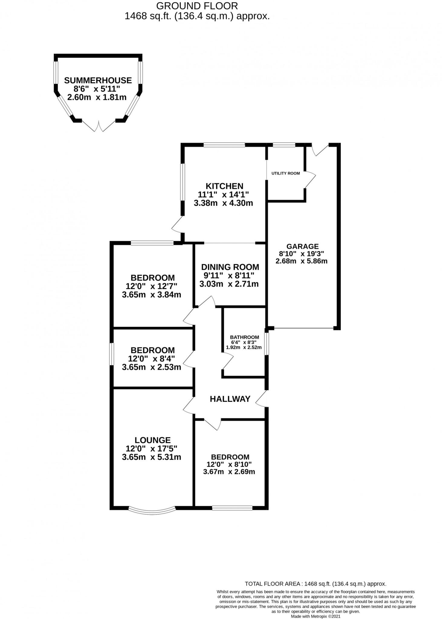
** NO ONWARD CHAIN ** DECEPTIVELY SPACIOUS AND EXTENDED THREE BEDROOM DETACHED BUNGALOW - BEAUTIFULLY PRESENTED THROUGHOUT - WITHIN WALKING DISTANCE TO POULTON CENTRE & TRAIN STATION - OPEN PLAN KITCHEN DINER - LOUNGE - THREE GENEROUS BEDROOMS - FOUR PIECE BATHROOM SUITE - FRONT GARDEN PROVID...
Property Oracle says ..
Therefore, we give this property 7 / 10. *Disclaimer: This is our option and does constitute a recommendation or financial advice. Do your own research. *
- Price
- 8
- Condition
- 8
- Location
- 7
- Land
- 7
- Bedrooms
- 3
- Bathrooms
- 1
- Sqft (est)
- 1,468.00
The heatmap indicates the level of crime in the area. The color of the heatmap indicates the crime severity and recency.
Metrics Year-on-Year
- Average area value
- 244,988.00 £Decreased by 26.94 %
- Est sale value
- 371,404.00 £Decreased by 0.78 %
- Average area rental value
- 1,075.00 £/moDecreased by 44.87 %
- Est letting value
- 1,468.00 £/moUnchanged by 0.00 %
- Est rental Yield
- 5.27 %Decreased by 24.50 %
- Crime Rate
- 3.00 %Unchanged by 0.00 %
from 335,327.00 £
from 374,340.00 £
from 1,950.00 £/mo
from 1,468.00 £/mo
from 6.98 %
from 3.00 %
Agent Activity
The Square Room created the listing.
Nearby Schools
| Name | Type | Ofsted | Distance |
|---|---|---|---|
| Poulton Le Fylde Children'S Centre | Children's Centre Linked Site | 0.09 KM | |
| Carleton Green Community Primary School | Community School | Good | 0.35 KM |
| Carleton St Hilda'S Church Of England Primary School | Voluntary Aided School | Good | 0.79 KM |
| Millfield Science & Performing Arts College | Community School | Good | 1.03 KM |
| Mckee College House | Pupil Referral Unit | Good | 1.49 KM |
Images
Nearby Streets
| Name | Average Price | Average Sqft | Distance |
|---|---|---|---|
| Daisy Hill Lane | £ 420,000 | 0 | 0.00 KM |
| Spring Lane | £ 0 | 0 | 0.00 KM |
| New Road | £ 189,950 | 0 | 0.00 KM |
| Rosebud Close | £ 0 | 0 | 0.00 KM |
| Parkstone Avenue | £ 195,000 | 0 | 0.00 KM |
Nearby Transport
| Name | NLC | TLC | Distance |
|---|---|---|---|
| Poulton-Le-Fylde | 2671 | PFY | 1.53 KM |
| Layton (Lancs) | 2669 | LAY | 3.96 KM |
| Blackpool North | 2739 | BPN | 6.56 KM |
| Blackpool South | 2740 | BPS | 8.33 KM |
| Blackpool Pleasure Beach | 2738 | BPB | 9.60 KM |
Nearby Listings
| Address | Price | Type | Score | Distance |
|---|---|---|---|---|
| Elvaston Road, Carleton, Lancashire, FY6 | £ 285,000 | BUY | 7 / 10 | 0.00 KM |
| Elvaston Road, Poulton-Le-Fylde, FY6 | £ 280,000 | BUY | Unknown | 0.04 KM |
| Arundel Drive, Poulton-le-Fylde, FY6 | £ 340,000 | BUY | 6 / 10 | 0.08 KM |
| No. 54, Arundel Drive, Carleton. | £ 445,000 | BUY | 7 / 10 | 0.09 KM |
| No. 10, Arundel Drive, Poulton - le -Fylde, Lancs FY6 7TF | £ 299,950 | BUY | 6 / 10 | 0.09 KM |
Nearby Properties
| Address | Price | Distance |
|---|---|---|
| 8 Arundel Drive | £ 274,500 | 0.08 KM |
| 22 Arundel Drive | £ 222,000 | 0.08 KM |
| 30 Arundel Drive | £ 200,000 | 0.08 KM |
| 44 Arundel Drive | £ 203,000 | 0.08 KM |
| 18 Arundel Drive | £ 223,000 | 0.08 KM |