NI
Blackstone Lane, Blackstone
By Nicholas James
£ 450,000
Reviews
2 out of 5 stars
Nicholas James says ..
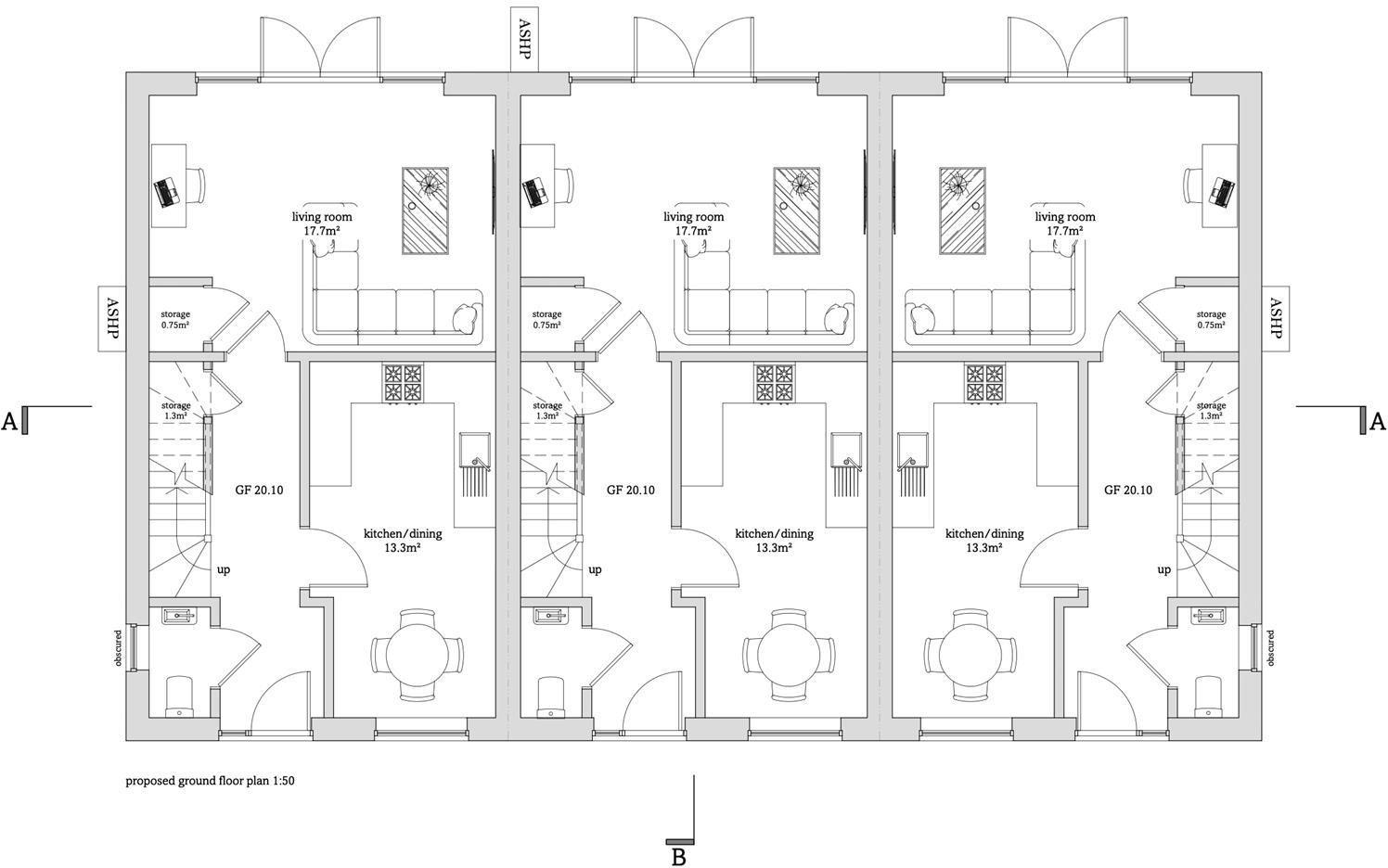
**Planning Approved** A freehold development site with planning approved under reference DC/25/0616 for 3 x 2 bedroom houses. Each house has the benefit of off-road parking and good-sized rear gardens with kitchen/diner and separate living room. There are currently 8 garages on the site which are...
Property Oracle says ..
Therefore, we give this property 5 / 10. *Disclaimer: This is our option and does constitute a recommendation or financial advice. Do your own research. *
- Price
- 7
- Condition
- 3
- Location
- 7
- Land
- 6
- Bedrooms
- 0
- Bathrooms
- 0
- Sqft (est)
- 355.75
The heatmap indicates the level of crime in the area. The color of the heatmap indicates the crime severity and recency.
Metrics Year-on-Year
- Average area value
- 575,000.00 £Decreased by 8.68 %
- Est sale value
- 264,678.00 £Increased by 43.08 %
- Average area rental value
- 3,275.00 £/moIncreased by 52.11 %
- Est letting value
- 1,423.00 £/moIncreased by 300.00 %
- Est rental Yield
- 6.83 %Increased by 66.59 %
- Crime Rate
- 98.00 %Unchanged by 0.00 %
from 629,653.00 £
from 184,990.00 £
from 2,153.00 £/mo
from 355.75 £/mo
from 4.10 %
from 98.00 %
Agent Activity
Nicholas James created the listing.
Nearby Schools
| Name | Type | Ofsted | Distance |
|---|---|---|---|
| Twineham Cofe Primary School | Voluntary Controlled School | Good | 4.28 KM |
| Lvs Hassocks | Other Independent Special School | 4.56 KM | |
| St Peter'S Cofe Primary School | Voluntary Aided School | Good | 5.13 KM |
| St Lawrence Cofe Primary School | Academy Converter | 6.11 KM | |
| Sussex Downs Children And Family Centre | Children's Centre | 6.61 KM |
Images
Nearby Transport
| Name | NLC | TLC | Distance |
|---|---|---|---|
| Hassocks | 5489 | HSK | 9.78 KM |
Nearby Listings
| Address | Price | Type | Score | Distance |
|---|---|---|---|---|
| Blackstone Lane, Blackstone | £ 450,000 | BUY | 5 / 10 | 0.00 KM |
| Blackstone Street, Blackstone, Henfield | £ 325,000 | BUY | 6 / 10 | 0.07 KM |
| Blackstone Lane, Blackstone, Henfield | £ 525,000 | BUY | 6 / 10 | 0.08 KM |
| Blackstone Lane, Blackstone, Henfield | £ 2,995,000 | BUY | Unknown | 0.92 KM |
| Truslers Hill Lane, Albourne, Hassocks, West Sussex | £ 625,000 | BUY | 6 / 10 | 1.13 KM |
Nearby Properties
| Address | Price | Distance |
|---|---|---|
| 2 Northview Cottages | £ 207,000 | 0.06 KM |
| 6 Blackstone Street | £ 315,000 | 0.07 KM |
| 7 Blackstone Street | £ 479,000 | 0.07 KM |
| 3 Blackstone Street | £ 187,500 | 0.07 KM |
| 2 Blackstone Street | £ 205,000 | 0.07 KM |