Adelaide Road, Andover, Hampshire, SP10
By Bournes Estate Agents Ltd
£ 180,000
Reviews
2 out of 5 stars
Bournes Estate Agents Ltd says ..
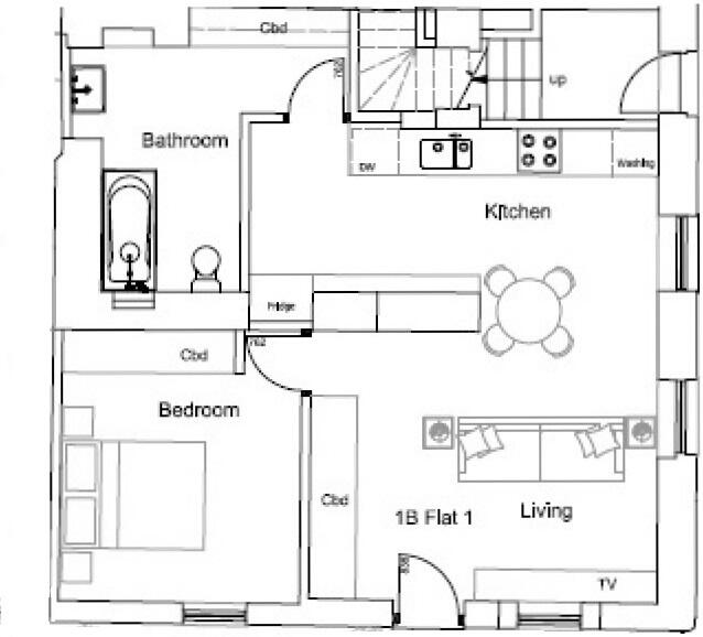
A one bedroom, ground floor flat with a modern bathroom and kitchen, close to the town centre, Vigo park and amenities. This property is being sold as a buy-to-let investment, with a tenant already in-situ and has a 999 year lease with a peppercorn ground rent and pro-rata maintenance fees.
Property Oracle says ..
This one-bedroom property in Andover, Hampshire, is a newly renovated ground floor flat. Its modern kitchen and bathroom are noteworthy and are presented in a contemporary and clean style. The location is positive. The nearness to Andover train station and several well-regarded schools makes it attractive. However, the property lacks a garden, a common feature desirable in many properties. The lack of sufficient data regarding the size and price of similar properties in the area makes a complete assessment of value difficult, but comparable properties on Adelaide Road indicate the property’s value is within the acceptable range for the area. The property seems suitable for a first-time buyer or investor, but the absence of outdoor space and the limited plot size might discourage buyers seeking more land or a garden. Further information on the property’s leasehold details would also influence the overall assessment, especially as many of the nearby properties are listed as buy-to-let investments, which is relevant information. The absence of specific details regarding size and other properties’ square footage means we cannot definitively assess value for money.
Therefore, we give this property 5 / 10. *Disclaimer: This is our option and does constitute a recommendation or financial advice. Do your own research. *
- Price
- 7
- Condition
- 8
- Location
- 7
- Land
- 1
- Bedrooms
- 1
- Bathrooms
- 0
- Sqft (est)
- 678.13
The heatmap indicates the level of crime in the area. The color of the heatmap indicates the crime severity and recency.
Metrics Year-on-Year
- Average area value
- 377,488.00 £Increased by 48.08 %
- Est sale value
- 522,160.10 £Increased by 148.39 %
- Average area rental value
- 1,008.00 £/moDecreased by 7.35 %
- Est letting value
- 1,356.26 £/moIncreased by 100.00 %
- Est rental Yield
- 3.20 %Decreased by 37.50 %
- Crime Rate
- 10.00 %Unchanged by 0.00 %
Agent Activity
Bournes Estate Agents Ltd created the listing.
Nearby Schools
| Name | Type | Ofsted | Distance |
|---|---|---|---|
| Andover Church Of England Primary School | Voluntary Controlled School | Good | 0.20 KM |
| Wolverdene Special School | Community Special School | Outstanding | 0.51 KM |
| The Mark Way School | Community Special School | Outstanding | 1.00 KM |
| Norman Gate School | Community Special School | Outstanding | 1.12 KM |
| Vigo Primary School | Community School | Requires improvement | 1.19 KM |
Images
Nearby Streets
| Name | Average Price | Average Sqft | Distance |
|---|---|---|---|
| Union Street | £ 0 | 0 | 0.00 KM |
| Weavers Close | £ 0 | 0 | 0.00 KM |
| St John's Road | £ 295,000 | 0 | 0.00 KM |
| Winchester Street | £ 0 | 0 | 0.00 KM |
| Pelican Court | £ 0 | 0 | 0.00 KM |
Nearby Transport
| Name | NLC | TLC | Distance |
|---|---|---|---|
| Andover | 5510 | ADV | 1.82 KM |
Nearby Listings
| Address | Price | Type | Score | Distance |
|---|---|---|---|---|
| Adelaide Mews, Andover | £ 245,000 | BUY | 7 / 10 | 0.00 KM |
| Adelaide Road, Andover, Hampshire, SP10 | £ 185,000 | BUY | 5 / 10 | 0.00 KM |
| Adelaide Road, Andover, Hampshire, SP10 | £ 140,000 | BUY | 5 / 10 | 0.00 KM |
| Adelaide Road, Andover, Hampshire, SP10 | £ 180,000 | BUY | 5 / 10 | 0.00 KM |
| Rack Close, Andover | £ 175,000 | BUY | 7 / 10 | 0.06 KM |
Nearby Properties
| Address | Price | Distance |
|---|---|---|
| 2 Adelaide Mews | £ 234,500 | 0.01 KM |
| 62 Adelaide Road | £ 215,000 | 0.01 KM |
| 18 Adelaide Road | £ 222,000 | 0.01 KM |
| 38 Adelaide Road | £ 225,000 | 0.01 KM |
| 42 Adelaide Road | £ 160,000 | 0.01 KM |